$132,000
FOR SALE

Detached Bungalow

Bedrooms: 1+1Bathrooms: 2Lot: 31.7 x 57.3 m

5031 48 Avenue
Girouxville, AB T0H 1S0

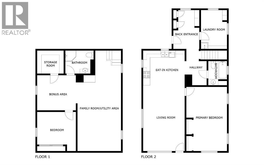
This 2 bedroom 2 bathroom home with a partially finished basement is situated on a large corner lot! The home is well set up with a mud room complete with built in storage, main level laundry room (with sink), large master bedroom and a spacious and functional eat in kitchen which is open to the living room. The exterior of the home features a covered deck, garden area and freshly planted apple and pear trees. The U shape driveway allows ample room for parking and easy access to to the large shop on the property. Recent upgrades include a new high efficiency furnace (with all new ducting), hot water tank and dishwasher. (id:47421)
Share
Listed By RE/MAX Northern Realty
Data Provided By Grande Prairie & Area Association of REALTORS®
MLS® Listing Number A2279797
Last Updated May 04, 2026
Property Summary
Property Type Detached

More like this:
Price History

Interested in obtaining the full price history for this property?
Contact us!Contact us! Our real estate professionals would be happy to provide a complete listing history with historical sold prices and dates.

Detailed Information
Bedrooms 1+1
Bathrooms 2
Lot 31.7 x 57.3 m
Amenities Nearby Park
Features See remarks
Listing Contract Date 2026-01-16
Municipal ID 0013808308
Ownership Type Freehold
# of Parking Spaces 10
Plan 1320HW
Property Type Single Family
Structures Deck
Transaction Type For sale
Zoning Description Residential
Building
Appliances Refrigerator, Dishwasher, Range, Oven - Built-In, Washer & Dryer
Architectural Style Bungalow
Basement Development Finished
Basement Type Partial (Finished)
Constructed Date 1947
Construction Style (Attachment) Detached
Cooling Type None
Exterior Finish Vinyl siding
Flooring Type Laminate, Linoleum
Foundation Type Poured Concrete
Heating Fuel Natural gas
Heating Type Forced air
Stories Total 1
Total Finished Area 1066 sqft
Type House
Rooms
Room Level Dimensions Notes
3pc BathroomLower level6.17 Ft x 7.67 Ft
BedroomLower level12.83 Ft x 11.25 Ft
StorageLower level6.17 Ft x 7.08 Ft
Family roomLower level11.50 Ft x 21.00 Ft
4pc BathroomMain level6.00 Ft x 6.83 Ft
Laundry roomMain level8.08 Ft x 11.58 Ft
OtherMain level11.50 Ft x 8.00 Ft
Eat in kitchenMain level14.00 Ft x 12.58 Ft
Living roomMain level17.50 Ft x 12.58 Ft
Primary BedroomMain level11.83 Ft x 20.67 Ft
Parking Spaces
Name Spaces
Detached Garage3
Land
Total Size 0.45 acres
Amenities Park
Fence Type Not fenced
Landscape Features Garden Area, Lawn
Size of Irregular Land 0.45

The information contained on this site is based in whole or in part on information that is provided under copyright by the Toronto Regional Real Estate Board (TRREB) or by members of The Canadian Real Estate Association (CREA), who are responsible for its accuracy. TRREB and CREA reproduce and distribute this information as a service for their members and assume no responsibility for its accuracy. All information displayed is believed to be accurate but is not guaranteed and should be independently verified. No warranties or representations of any kind are made with respect to the accuracy of such information.
The information provided herein must only be used by consumers that have a bona fide interest in the purchase, sale, or lease of real estate and may not be used for any commercial purpose or any other purpose.

FREE ESTIMATES ARE COMING

Reserve Your Spot To Be Notified
or

Coming soon to select cities
in North America

(We'll never share your details)