Welcome to Almond Gardens Mobile Home Park! This massive 1,680 sq ft home offers 3 bedrooms and 2 bathrooms, thoughtfully designed with comfort and accessibility in mind. Enjoy a spacious open-concept living area with a cozy gas fireplace, and walk-in closets in every bedroom for all your storage needs. The main bathroom features a convenient walk-in shower, while the master ensuite includes a luxurious walk-in jetted tub. A wheelchair ramp ensures easy access for seniors or anyone seeking added mobility. Step outside to a large covered deck, perfect for year-round enjoyment, along with a carport, paved driveway, and outdoor storage shed. The beautifully landscaped yard is filled with lush plants and shrubs, creating a serene and peaceful retreat. This home combines space, accessibility, and comfort in a quiet, welcoming community—don’t miss this opportunity! (id:47421)
Interested in obtaining the full price history for this property? Contact us!Contact us! Our real estate professionals would be happy to provide a complete listing history with historical sold prices and dates.
Refrigerator, Dryer, Range - Electric, Microwave, Washer
Basement Type
Crawl space
Constructed Date
2007
Cooling Type
Central air conditioning
Exterior Finish
Vinyl siding
Fire Protection
Smoke Detector Only
Fireplace Present
Yes
# of Fireplaces
1
Fireplace Type
Insert
Flooring Type
Laminate, Linoleum
Foundation Type
Block
Heating Type
Forced air, See remarks
Roof Material
Asphalt shingle
Roof Style
Unknown
Stories Total
1
Type
Manufactured Home
Utility Water
Well
Rooms
Room
Level
Dimensions
Notes
4pc Ensuite bath
Main level
Measurements not available
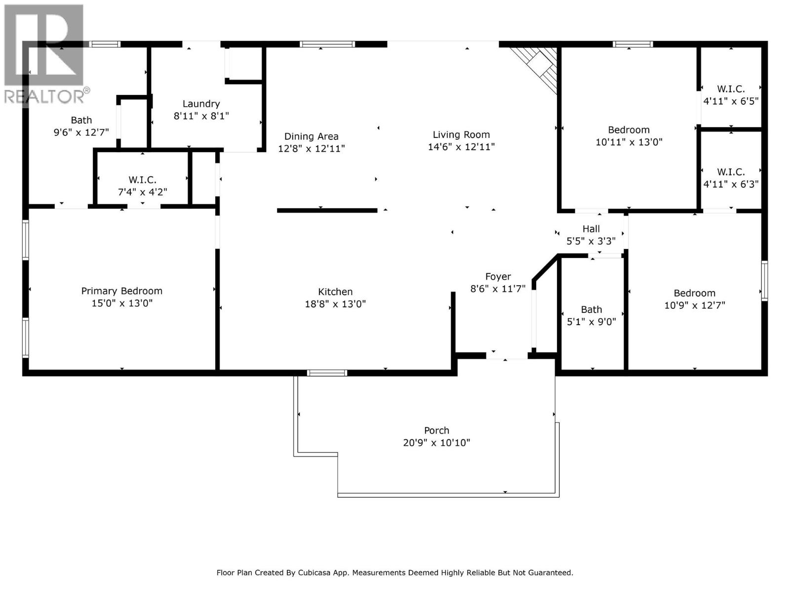
Primary Bedroom
Main level
15' x 13'
Laundry room
Main level
8'11'' x 8'1''
Bedroom
Main level
10'11'' x 13'
Bedroom
Main level
10'9'' x 12'7''
3pc Bathroom
Main level
Measurements not available
Kitchen
Main level
18'8'' x 13'
Dining room
Main level
12'8'' x 13'
Living room
Main level
14'6'' x 12'11''
Parking Spaces
Name
Spaces
Carport
Utilities
Type
Description
Cable
Available
Electricity
Available
Natural Gas
Available
Telephone
Available
Sewer
Available
Water
Available
Land
Total Size
under 1 acre
Access Type
Easy access
Fence Type
Not fenced
Landscape Features
Landscaped
Sewer
Septic tank
Terms of Use
Please review and agree to the following terms of use to access the listing content:
REALTOR®, REALTORS®, and the REALTOR® logo are certification marks that are owned by REALTOR® Canada Inc. and licensed exclusively to The Canadian Real Estate Association (CREA). These certification marks identify real estate professionals who are members of CREA and who must abide by CREA's By-Laws, Rules, and the REALTOR® Code. The MLS® trademark and the MLS® logo are owned by CREA and identify the quality of services provided by real estate professionals who are members of CREA;
The information contained on this site is based in whole or in part on information that is provided by members of CREA, who are responsible for its accuracy. CREA reproduces and distributes this information as a service for its members and assumes no responsibility for its accuracy;
This website is operated by a brokerage or salesperson who is a member of CREA;
The listing content on this website is protected by copyright and other laws, and is intended solely for the private, non-commercial use by individuals. Any other reproduction, distribution or use of the content, in whole or in part, is specifically forbidden. The prohibited uses include commercial use, "screen scraping", "database scraping", and any other activity intended to collect, store, reorganize or manipulate data on the pages produced by or displayed on this website.
The information contained on this site is based in whole or in part on information that is provided under copyright by the Toronto Regional Real Estate Board (TRREB) or by members of The Canadian Real Estate Association (CREA), who are responsible for its accuracy. TRREB and CREA reproduce and distribute this information as a service for their members and assume no responsibility for its accuracy. All information displayed is believed to be accurate but is not guaranteed and should be independently verified. No warranties or representations of any kind are made with respect to the accuracy of such information. The information provided herein must only be used by consumers that have a bona fide interest in the purchase, sale, or lease of real estate and may not be used for any commercial purpose or any other purpose.