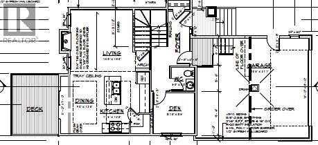
Welcome to this stunning new home in Riverstone, offering modern living at its finest! Featuring 1,735 sq.ft. of beautifully designed space, a double attached garage, $5,000 appliance allowance, and a 12x10 ft deck, this home blends comfort and style perfectly. The open-concept main floor includes a cozy electric fireplace, a bright kitchen with quartz countertops, and a main-floor den and powder room for added convenience. Upstairs, you’ll find a spacious primary suite with a walk-in closet and 5-piece ensuite, plus two additional bedrooms, a bonus room, full bath, and laundry. The basement offers a separate entry and awaits your personal touch. Situated on a generous lot in a family-friendly community close to schools, parks, shopping, and amenities, this home delivers modern elegance and everyday functionality. GST included in price with rebate to builder. (id:47421)
Interested in obtaining the full price history for this property? Contact us!Contact us! Our real estate professionals would be happy to provide a complete listing history with historical sold prices and dates.
Detailed Information
Bedrooms
3
Bathrooms
3
Lot
11 x 35 m
Amenities Nearby
Schools, Shopping
Listing Contract Date
2025-11-09
Municipal ID
0038637286
Ownership Type
Freehold
# of Parking Spaces
4
Plan
2021249
Property Type
Single Family
Structures
Deck
Transaction Type
For sale
Zoning Description
RS
Building
Appliances
None
Basement Development
Unfinished
Basement Type
Full (Unfinished)
Constructed Date
2025
Construction Material
Wood frame
Construction Style (Attachment)
Detached
Cooling Type
None
Exterior Finish
Vinyl siding
Fireplace Present
Yes
# of Fireplaces
1
Flooring Type
Carpeted, Vinyl Plank
Foundation Type
Poured Concrete
# of Half Bathrooms
1
Heating Fuel
Natural gas
Heating Type
Forced air
Stories Total
2
Total Finished Area
1735 sqft
Type
House
Rooms
Room
Level
Dimensions
Notes
Primary Bedroom
Second level
18.00 Ft x 13.50 Ft
Bedroom
Second level
10.83 Ft x 10.17 Ft
Bedroom
Second level
10.83 Ft x 10.25 Ft
5pc Bathroom
Second level
5.00 Ft x 8.17 Ft
3pc Bathroom
Second level
9.17 Ft x 5.00 Ft
2pc Bathroom
Main level
5.00 Ft x 5.00 Ft
Parking Spaces
Name
Spaces
Attached Garage
2
Land
Total Size
4143 square feet
Amenities
Schools, Shopping
Fence Type
Not fenced
Size of Irregular Land
4143.00
Terms of Use
Please review and agree to the following terms of use to access the listing content:
REALTOR®, REALTORS®, and the REALTOR® logo are certification marks that are owned by REALTOR® Canada Inc. and licensed exclusively to The Canadian Real Estate Association (CREA). These certification marks identify real estate professionals who are members of CREA and who must abide by CREA's By-Laws, Rules, and the REALTOR® Code. The MLS® trademark and the MLS® logo are owned by CREA and identify the quality of services provided by real estate professionals who are members of CREA;
The information contained on this site is based in whole or in part on information that is provided by members of CREA, who are responsible for its accuracy. CREA reproduces and distributes this information as a service for its members and assumes no responsibility for its accuracy;
This website is operated by a brokerage or salesperson who is a member of CREA;
The listing content on this website is protected by copyright and other laws, and is intended solely for the private, non-commercial use by individuals. Any other reproduction, distribution or use of the content, in whole or in part, is specifically forbidden. The prohibited uses include commercial use, "screen scraping", "database scraping", and any other activity intended to collect, store, reorganize or manipulate data on the pages produced by or displayed on this website.
The information contained on this site is based in whole or in part on information that is provided under copyright by the Toronto Regional Real Estate Board (TRREB) or by members of The Canadian Real Estate Association (CREA), who are responsible for its accuracy. TRREB and CREA reproduce and distribute this information as a service for their members and assume no responsibility for its accuracy. All information displayed is believed to be accurate but is not guaranteed and should be independently verified. No warranties or representations of any kind are made with respect to the accuracy of such information. The information provided herein must only be used by consumers that have a bona fide interest in the purchase, sale, or lease of real estate and may not be used for any commercial purpose or any other purpose.