Industrial
396 Station Road
Great Village, NS
B0M 1L0
| Listed By | Keller Williams Select Realty (Branch), Keller Williams Select Realty |
|---|---|
| Data Provided By | Nova Scotia Association of REALTORS® |
| MLS® Listing Number | 202519382 |
| Last Updated | May 26, 2026 |
| Property Type |
Industrial
More like this: |
|---|---|
| Community | Great Village |
Interested in obtaining the full price history for this property?
Contact us!Contact us! Our real estate professionals would be happy to provide a complete listing history with historical sold prices and dates.
| Listing Contract Date | 2025-08-01 |
|---|---|
| Location Description | If coming from Truro direction , take Highway 104, take Exit 11 Turn Left onto Station Road, Stay Left on Station Road # 396. If coming from Cobequid toll Pass, Take Exit 10 Turn right onto Station Road, Stay Left on Station Road # 396. |
| Municipal ID | 20294146 |
| Ownership Type | Freehold |
| Property Type | Industrial |
| Transaction Type | For sale |
| Business Type | Other |
|---|---|
| Business Subtype | Other |
| Constructed Date | 2016 |
|---|---|
| Flooring Type | Concrete |
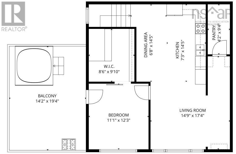
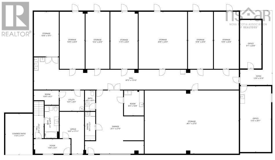
| Total Finished Area | 15014 sqft |
| Utility Water | Drilled Well |
| Total Size | 1.9877 acres |
|---|---|
| Acreage | Yes |
| Size of Irregular Land | 1.9877 |
The information contained on this site is based in whole or in part on information that is provided under copyright by the Toronto Regional Real Estate Board (TRREB) or by members of The Canadian Real Estate Association (CREA), who are responsible for its accuracy. TRREB and CREA reproduce and distribute this information as a service for their members and assume no responsibility for its accuracy. All information displayed is believed to be accurate but is not guaranteed and should be independently verified. No warranties or representations of any kind are made with respect to the accuracy of such information.
The information provided herein must only be used by consumers that have a bona fide interest in the purchase, sale, or lease of real estate and may not be used for any commercial purpose or any other purpose.
FREE ESTIMATES ARE COMING
Reserve Your Spot To Be Notified
Coming soon to select cities
in North America
(We'll never share your details)






























