Attention Tradespeople, Mechanics, Business Owners and Entrepreneurs, RA Zoned Property on 6 acres and 4 car lifts. This meticulously maintained property offers a rare blend of executive design and commercial versatility. With proper zoning already in place, its an ideal setup for entrepreneurs, tradespeople, or anyone looking to operate a business from home. The site features a massive 40' x 70' garage with 12-foot walls, providing ample space for operations, storage, or customization. An additional 35' x 40' attached garage at the rear further expands the possibilities, making it great opportunity to combine your business and home. The residence is equally impressive, measuring 40' x 60' and built with 12-foot ICF walls for superior insulation and durability. Inside, youll find two spacious bedrooms and two full bathrooms, complemented by a professionally designed mezzanine that serves as a stylish game room or flexible bonus space. The open-concept layout is thoughtfully crafted to accommodate endless possibilities, whether you're envisioning a modern family hub or a dynamic live-work environment. Attention to detail is evident throughout, With in-floor heating, mini-splits and pellet stove to ensure year-round comfort, to the robust 400 amp electrical entrance that supports both residential and commercial needs. This property is a standout opportunity combining high-end design, impeccable upkeep, and serious business potential in a prime location. (id:47421)
Interested in obtaining the full price history for this property? Contact us!Contact us! Our real estate professionals would be happy to provide a complete listing history with historical sold prices and dates.
Detailed Information
Location Description
Take route 132 towards Scoudouc, The property will be on the right shortly after Melanson Rd
Municipal ID
00927897
Ownership Type
Freehold
Property Type
Other
Structures
Shed
Transaction Type
For sale
Building
Constructed Date
2008
Cooling Type
Air Conditioned
Exterior Finish
Stucco
Heating Fuel
Pellet
Heating Type
In Floor Heating, Stove
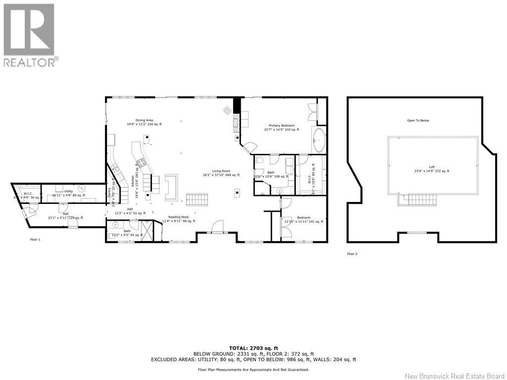
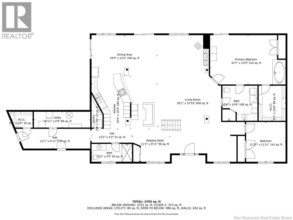
Total Finished Area
6600 sqft
Land
Total Size
6 acres
Access Type
Year-round access, Public Road
Acreage
Yes
Size of Irregular Land
6
Terms of Use
Please review and agree to the following terms of use to access the listing content:
REALTOR®, REALTORS®, and the REALTOR® logo are certification marks that are owned by REALTOR® Canada Inc. and licensed exclusively to The Canadian Real Estate Association (CREA). These certification marks identify real estate professionals who are members of CREA and who must abide by CREA's By-Laws, Rules, and the REALTOR® Code. The MLS® trademark and the MLS® logo are owned by CREA and identify the quality of services provided by real estate professionals who are members of CREA;
The information contained on this site is based in whole or in part on information that is provided by members of CREA, who are responsible for its accuracy. CREA reproduces and distributes this information as a service for its members and assumes no responsibility for its accuracy;
This website is operated by a brokerage or salesperson who is a member of CREA;
The listing content on this website is protected by copyright and other laws, and is intended solely for the private, non-commercial use by individuals. Any other reproduction, distribution or use of the content, in whole or in part, is specifically forbidden. The prohibited uses include commercial use, "screen scraping", "database scraping", and any other activity intended to collect, store, reorganize or manipulate data on the pages produced by or displayed on this website.
The information contained on this site is based in whole or in part on information that is provided under copyright by the Toronto Regional Real Estate Board (TRREB) or by members of The Canadian Real Estate Association (CREA), who are responsible for its accuracy. TRREB and CREA reproduce and distribute this information as a service for their members and assume no responsibility for its accuracy. All information displayed is believed to be accurate but is not guaranteed and should be independently verified. No warranties or representations of any kind are made with respect to the accuracy of such information. The information provided herein must only be used by consumers that have a bona fide interest in the purchase, sale, or lease of real estate and may not be used for any commercial purpose or any other purpose.