A Rare Project Home with Heart, History & Huge Potential. Set on just over half an acre, only five minutes to the Glenora Ferry, this former schoolhouse-turned-residence offers a unique opportunity for someone with vision to restore and transform this property. With easy access to Prince Edward County's wineries, beaches & charm via the ferry, and a convenient commute toward Napanee, Kingston or the 401, the location truly delivers the best of both worlds. This isn't a simple handyman job, it's a major renovation project perfect for those who dream big and love character. Inside you'll find two bedrooms plus a den, kitchen, living room, dining room and full bath. The unfinished walk-out basement offers space for workspace or storage. The metal roof and propane furnace provide a solid starting point. If you've been searching for a property with story, soul and strong upside, this is your canvas. Bring your imagination, your plans, and create something remarkable in a location where opportunity meets charm. (id:47421)
Interested in obtaining the full price history for this property? Contact us!Contact us! Our real estate professionals would be happy to provide a complete listing history with historical sold prices and dates.
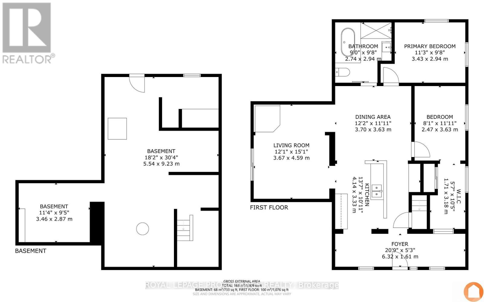
Detailed Information
Bedrooms
2
Bathrooms
1
Lot
255.75 x 97.25 ft
Features
Irregular lot size, Country residential
Listing Contract Date
2025-12-04
Location Description
Glenora Ferry to Loyalist Pkwy Hwy 33 or HWY 401 take exit 579 turn Left on Centre st
# of Parking Spaces
4
Property Type
Single Family
Transaction Type
For sale
Building
Age
100+ years
Architectural Style
Bungalow
Basement Development
Unfinished
Basement Features
Walk out
Basement Type
N/A, N/A (Unfinished), Partial
Cooling Type
None
Foundation Type
Stone
Heating Fuel
Propane
Heating Type
Forced air
Stories Total
1
Type
House
Utility Water
Dug Well
Rooms
Room
Level
Dimensions
Notes
Foyer
Main level
6.32 m x 1.61 m
Kitchen
Main level
4.14 m x 3.33 m
Living room
Main level
3.67 m x 4.59 m
Dining room
Main level
3.7 m x 3.63 m
Bathroom
Main level
2.74 m x 2.94 m
Primary Bedroom
Main level
3.43 m x 2.94 m
Bedroom 2
Main level
2.47 m x 3.63 m
Den
Main level
1.71 m x 3.18 m
Parking Spaces
Name
Spaces
No Garage
Utilities
Type
Description
Electricity
Installed
Land
Total Size
255.8 x 97.3 FT | 1/2 - 1.99 acres
Sewer
Septic System
Size of Irregular Land
255.8 x 97.3 FT
Surface Water
River/Stream
Terms of Use
Please review and agree to the following terms of use to access the listing content:
REALTOR®, REALTORS®, and the REALTOR® logo are certification marks that are owned by REALTOR® Canada Inc. and licensed exclusively to The Canadian Real Estate Association (CREA). These certification marks identify real estate professionals who are members of CREA and who must abide by CREA's By-Laws, Rules, and the REALTOR® Code. The MLS® trademark and the MLS® logo are owned by CREA and identify the quality of services provided by real estate professionals who are members of CREA;
The information contained on this site is based in whole or in part on information that is provided by members of CREA, who are responsible for its accuracy. CREA reproduces and distributes this information as a service for its members and assumes no responsibility for its accuracy;
This website is operated by a brokerage or salesperson who is a member of CREA;
The listing content on this website is protected by copyright and other laws, and is intended solely for the private, non-commercial use by individuals. Any other reproduction, distribution or use of the content, in whole or in part, is specifically forbidden. The prohibited uses include commercial use, "screen scraping", "database scraping", and any other activity intended to collect, store, reorganize or manipulate data on the pages produced by or displayed on this website.
The information contained on this site is based in whole or in part on information that is provided under copyright by the Toronto Regional Real Estate Board (TRREB) or by members of The Canadian Real Estate Association (CREA), who are responsible for its accuracy. TRREB and CREA reproduce and distribute this information as a service for their members and assume no responsibility for its accuracy. All information displayed is believed to be accurate but is not guaranteed and should be independently verified. No warranties or representations of any kind are made with respect to the accuracy of such information. The information provided herein must only be used by consumers that have a bona fide interest in the purchase, sale, or lease of real estate and may not be used for any commercial purpose or any other purpose.