Take advantage of the new HST rebate with this incredible opportunity to own a brand-new home at a reduced price. Stylish finishes, functional layout, and exceptional value make this a must-see. This stunning, brand new 1,887 sq. ft. semi-detached home has been crafted by renowned builder Venture Homes and is situated in an established Hagersville neighbourhood. Featuring a bright and spacious main floor with engineered hardwood, this home offers large principal rooms perfect for entertaining and family life. The chef’s kitchen boasts quartz countertops, an island, stylish backsplash, under-cabinet lighting, and soft-close cabinetry. Upstairs, three oversized bedrooms await, including a primary suite with a huge walk-in closet and a convenient ensuite bath. Enjoy the practicality of a second-floor laundry room and a total of three modern bathrooms. Additional upgrades include central air, an insulated garage with automatic opener and a 10’ wide door, a covered front porch, elegant wood railings with steel balustrades, 5” baseboards throughout and ideally situated on a 140’ deep lot offering rear access from a rear alley. Includes 4 appliances, Tankless water heater, back deck and insulated garage with garage door opener. Quick closing is available. Attractive financing guaranteed 3.99% for 3-5 yr mortgages 25 yr amortization OAC. The home is Tarion-certified for peace of mind, and the location is unbeatable—close to schools, shopping, and the hospital. Move-in ready with no disappointments! (id:47421)
Interested in obtaining the full price history for this property? Contact us!Contact us! Our real estate professionals would be happy to provide a complete listing history with historical sold prices and dates.
Detailed Information
Bedrooms
3
Bathrooms
3
Lot
33 x 140 ft
Amenities Nearby
Golf Nearby, Hospital, Place of Worship, Schools
Communication Type
High Speed Internet
Community Features
Community Centre
Features
Automatic Garage Door Opener
Listing Contract Date
2026-01-26
Location Description
King St W, South on Howard St
Ownership Type
Freehold
# of Parking Spaces
5
Property Type
Single Family
Transaction Type
For sale
Zoning Description
H A9
Building
Appliances
Garage door opener
Architectural Style
2 Level
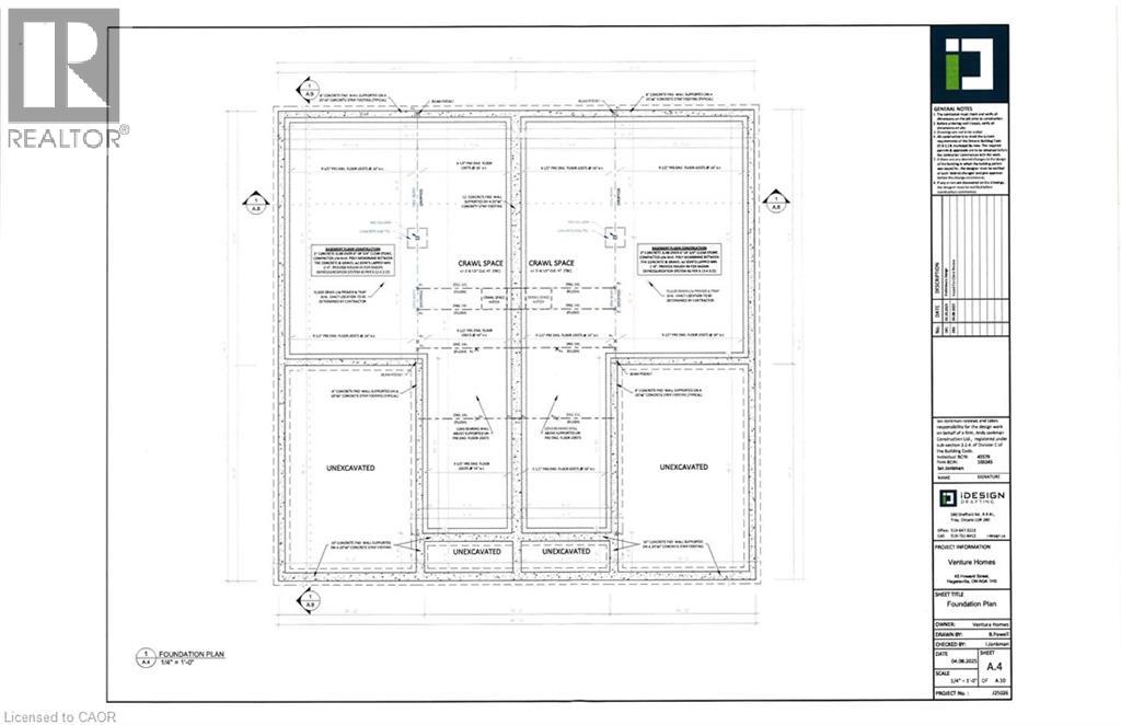
Basement Development
Unfinished
Basement Type
Crawl space (Unfinished)
Constructed Date
2025
Construction Style (Attachment)
Semi-detached
Cooling Type
Central air conditioning
Exterior Finish
Stone, Vinyl siding
Fireplace Fuel
Electric
Fireplace Present
Yes
# of Fireplaces
1
Fireplace Type
Other - See remarks
Foundation Type
Poured Concrete
# of Half Bathrooms
1
Heating Fuel
Natural gas
Heating Type
Forced air
Stories Total
2
Type
House
Utility Water
Municipal water
Rooms
Room
Level
Dimensions
Notes
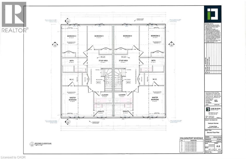
Other
Second level
6'3'' x 6'0''
Laundry room
Second level
5'0'' x 8'6''
4pc Bathroom
Second level
Measurements not available
Bedroom
Second level
11'0'' x 11'6''
Bedroom
Second level
12'6'' x 11'6''
Full bathroom
Second level
8'6'' x 6'0''
Primary Bedroom
Second level
14'3'' x 14'7''
Utility room
Basement
Measurements not available
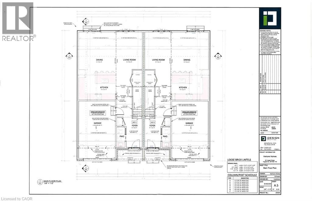
Living room
Main level
13'9'' x 9'7''
Dining room
Main level
13'9'' x 13'8''
Kitchen
Main level
11'2'' x 13'8''
2pc Bathroom
Main level
7'6'' x 3'1''
Foyer
Main level
10'8'' x 5'10''
Parking Spaces
Name
Spaces
Attached Garage
Utilities
Type
Description
Electricity
Available
Natural Gas
Available
Telephone
Available
Land
Total Size
under 1/2 acre
Access Type
Road access
Amenities
Golf Nearby, Hospital, Place of Worship, Schools
Sewer
Municipal sewage system
Terms of Use
Please review and agree to the following terms of use to access the listing content:
REALTOR®, REALTORS®, and the REALTOR® logo are certification marks that are owned by REALTOR® Canada Inc. and licensed exclusively to The Canadian Real Estate Association (CREA). These certification marks identify real estate professionals who are members of CREA and who must abide by CREA's By-Laws, Rules, and the REALTOR® Code. The MLS® trademark and the MLS® logo are owned by CREA and identify the quality of services provided by real estate professionals who are members of CREA;
The information contained on this site is based in whole or in part on information that is provided by members of CREA, who are responsible for its accuracy. CREA reproduces and distributes this information as a service for its members and assumes no responsibility for its accuracy;
This website is operated by a brokerage or salesperson who is a member of CREA;
The listing content on this website is protected by copyright and other laws, and is intended solely for the private, non-commercial use by individuals. Any other reproduction, distribution or use of the content, in whole or in part, is specifically forbidden. The prohibited uses include commercial use, "screen scraping", "database scraping", and any other activity intended to collect, store, reorganize or manipulate data on the pages produced by or displayed on this website.
The information contained on this site is based in whole or in part on information that is provided under copyright by the Toronto Regional Real Estate Board (TRREB) or by members of The Canadian Real Estate Association (CREA), who are responsible for its accuracy. TRREB and CREA reproduce and distribute this information as a service for their members and assume no responsibility for its accuracy. All information displayed is believed to be accurate but is not guaranteed and should be independently verified. No warranties or representations of any kind are made with respect to the accuracy of such information. The information provided herein must only be used by consumers that have a bona fide interest in the purchase, sale, or lease of real estate and may not be used for any commercial purpose or any other purpose.