Location, location, location! Welcome to 3836 Memorial Drive! Located on one of the most convenient, quiet and desirable streets in the sought after North End of Halifaxs peninsula; this carpet free townhome has so much to offer. This home is just in walking distance to NSCC, schools, restaurants, playgrounds and bus stops. Groceries stores, shopping malls, universities and other amenities are just few minutes driving away. Travelling to Halifax downtown, Dartmouth, and other areas in HRM is never easier with this prime location. The home offers 4 bedrooms and 3.5 baths, including a master bedroom with ensuite and walk in closet. All hardwood throughout main and second floor. A spacious fully developed high ceiling basement provides much more space for family gathering and entertaining. This beautiful home has been kept and maintained with loves and cares for years. Key features and upgrades include: front yard landscape and artificial turf installed (2022), hot water heater (2022), roof (2020), new range (2020), new dishwasher (2021), and much more. Don't miss your chance to live in this lovely home. Book now for a showing. (id:47421)
Interested in obtaining the full price history for this property? Contact us!Contact us! Our real estate professionals would be happy to provide a complete listing history with historical sold prices and dates.
Detailed Information
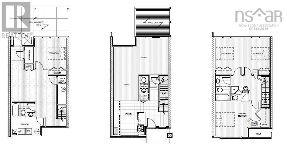
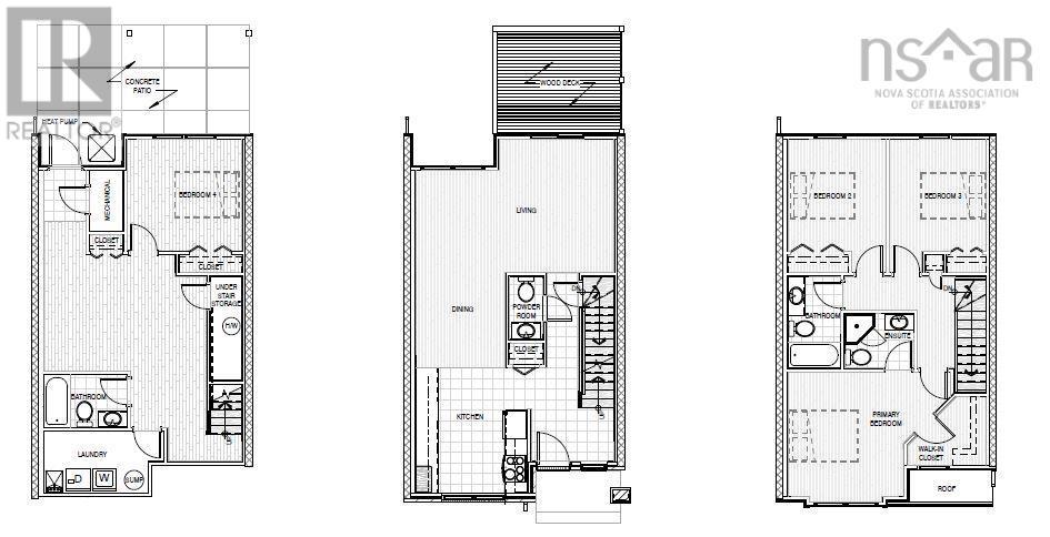
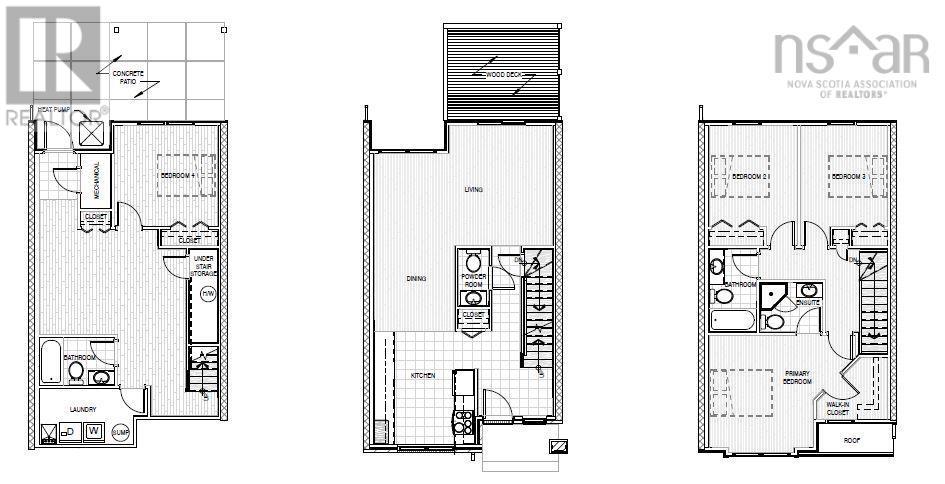
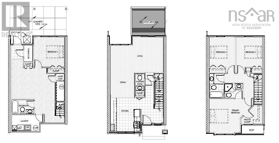
Bedrooms
3+1
Bathrooms
4
Amenities Nearby
Park, Playground, Public Transit, Shopping
Community Features
Recreational Facilities, School Bus
Features
Sloping, Level, Sump Pump
Listing Contract Date
2025-05-26
Location Description
Lady Hammond to Memorial Drive
Municipal ID
41069147
Ownership Type
Freehold
Property Type
Single Family
Transaction Type
For sale
Building
Appliances
Stove, Dishwasher, Dryer, Washer, Refrigerator
Architectural Style
2 Level
Basement Development
Finished
Basement Features
Walk out
Basement Type
Full (Finished)
Constructed Date
2003
Cooling Type
Heat Pump
Exterior Finish
Brick, Vinyl
Flooring Type
Ceramic Tile, Hardwood, Laminate
Foundation Type
Poured Concrete
# of Half Bathrooms
1
Stories Total
2
Total Finished Area
2009 sqft
Type
Row / Townhouse
Utility Water
Municipal water
Rooms
Room
Level
Dimensions
Notes
Bath (# pieces 1-6)
Second level
4.9x8.3
Ensuite (# pieces 2-6)
Second level
5.2x6
Primary Bedroom
Second level
11.8 x 11 + JOG
Bedroom
Second level
9.3 x 12.7
Bedroom
Second level
9.1 x 12.7
Bath (# pieces 1-6)
Basement
5x8.3
Recreational, Games room
Basement
7.2x14.4+8.3x9.4
Bedroom
Basement
10.6 x 10.9 + JOG
Laundry room
Basement
9.9 x 5.9 + JOG
Kitchen
Main level
11.9 x 7.9 + JOG
Dining room
Main level
8.6 x 9.1
Living room
Main level
18.8x9.7+3x10.9
Bath (# pieces 1-6)
Main level
3x6.1
Parking Spaces
Name
Spaces
Paved Yard
Land
Total Size
0.045 acres
Amenities
Park, Playground, Public Transit, Shopping
Landscape Features
Landscaped
Sewer
Municipal sewage system
Size of Irregular Land
0.045
Terms of Use
Please review and agree to the following terms of use to access the listing content:
REALTOR®, REALTORS®, and the REALTOR® logo are certification marks that are owned by REALTOR® Canada Inc. and licensed exclusively to The Canadian Real Estate Association (CREA). These certification marks identify real estate professionals who are members of CREA and who must abide by CREA's By-Laws, Rules, and the REALTOR® Code. The MLS® trademark and the MLS® logo are owned by CREA and identify the quality of services provided by real estate professionals who are members of CREA;
The information contained on this site is based in whole or in part on information that is provided by members of CREA, who are responsible for its accuracy. CREA reproduces and distributes this information as a service for its members and assumes no responsibility for its accuracy;
This website is operated by a brokerage or salesperson who is a member of CREA;
The listing content on this website is protected by copyright and other laws, and is intended solely for the private, non-commercial use by individuals. Any other reproduction, distribution or use of the content, in whole or in part, is specifically forbidden. The prohibited uses include commercial use, "screen scraping", "database scraping", and any other activity intended to collect, store, reorganize or manipulate data on the pages produced by or displayed on this website.
The information contained on this site is based in whole or in part on information that is provided under copyright by the Toronto Regional Real Estate Board (TRREB) or by members of The Canadian Real Estate Association (CREA), who are responsible for its accuracy. TRREB and CREA reproduce and distribute this information as a service for their members and assume no responsibility for its accuracy. All information displayed is believed to be accurate but is not guaranteed and should be independently verified. No warranties or representations of any kind are made with respect to the accuracy of such information. The information provided herein must only be used by consumers that have a bona fide interest in the purchase, sale, or lease of real estate and may not be used for any commercial purpose or any other purpose.