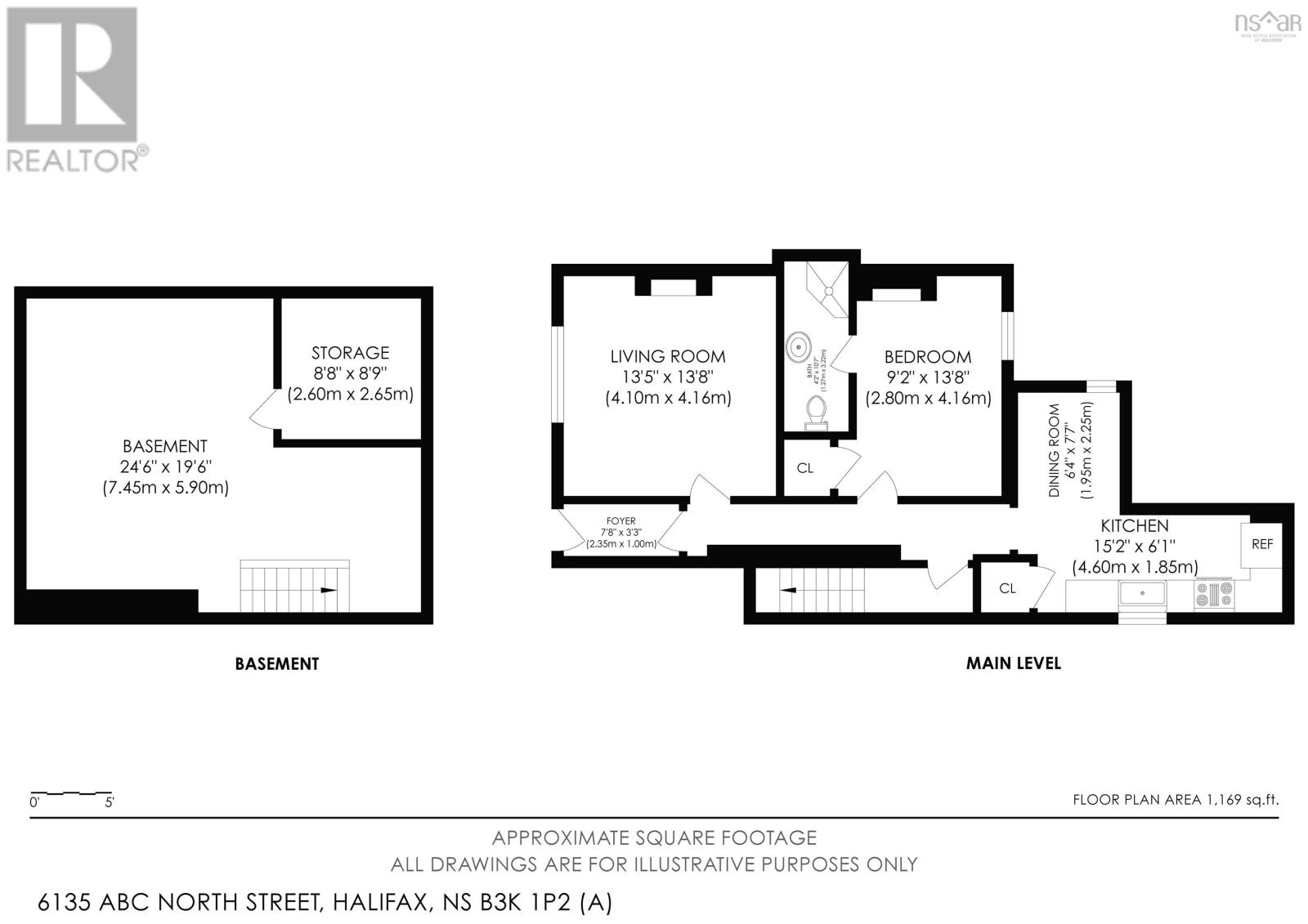
Welcome to 6135A North Street, Halifax a prime triplex opportunity in one of the citys most sought-after rental corridors. Located near the corner of Gladstone and North, this property is perfectly positioned to deliver strong rental demand, consistent returns, and long-term value. With all three units vacant as of October 1, 2025, the stage is set for a new landlord to hand-pick tenants and set market rents from day one. The building features three one-bedroom units, each with a practical layout and easy rental appeal. Whether youre targeting students, professionals, or downsizers, the location and design make this an attractive option for a wide variety of tenants. Investors will also appreciate the flexibility of the vacant possession no tenant inheritances, no outdated rents, and a clean slate to maximize income potential right away. Beyond the units themselves, the property includes ample off-street parking, a rare commodity in this central Halifax neighbourhood. A large storage shed provides additional tenant storage while the shared backyard offers outdoor space that adds to tenant satisfaction and retention. These features not only boost the rental appeal but also set the property apart from many others in the area. The location is hard to beat steps from Gladstone, North, and Agricola Streets, tenants will enjoy immediate access to grocery stores, cafés, restaurants, breweries, shops, public transit, and universities. This area continues to see strong growth and revitalization, ensuring that properties here remain in high demand for both renters and long-term investors. Whether youre expanding your portfolio or stepping into Halifaxs investment market, 6135 North Street represents a solid opportunity to secure a multi-unit property with immediate upside. With vacant possession, prime central location, and strong rental fundamentals, this triplex is ready for its next chapter under new ownership. Dont miss this opportunity. (id:47421)
Interested in obtaining the full price history for this property? Contact us!Contact us! Our real estate professionals would be happy to provide a complete listing history with historical sold prices and dates.
Detailed Information
Amenities Nearby
Park, Playground, Public Transit, Shopping, Place of Worship
Community Features
Recreational Facilities, School Bus
Listing Contract Date
2025-09-26
Location Description
North Street, Halifax near intersection with Gladstone
Municipal ID
00005397
Ownership Type
Freehold
Property Type
Multi-family
Structures
Shed
Transaction Type
For sale
Building
Appliances
Stove, Refrigerator
Basement Development
Unfinished
Basement Type
Partial (Unfinished)
Constructed Date
1968
Exterior Finish
Wood shingles, Wood siding
Flooring Type
Other
Foundation Type
Block, Concrete Perimeter, Stone
Type
Triplex
Utility Water
Municipal water
Parking Spaces
Name
Spaces
Gravel
Paved Yard
Land
Total Size
0.0773 acres
Amenities
Park, Playground, Public Transit, Shopping, Place of Worship
Sewer
Municipal sewage system
Size of Irregular Land
0.0773
Terms of Use
Please review and agree to the following terms of use to access the listing content:
REALTOR®, REALTORS®, and the REALTOR® logo are certification marks that are owned by REALTOR® Canada Inc. and licensed exclusively to The Canadian Real Estate Association (CREA). These certification marks identify real estate professionals who are members of CREA and who must abide by CREA's By-Laws, Rules, and the REALTOR® Code. The MLS® trademark and the MLS® logo are owned by CREA and identify the quality of services provided by real estate professionals who are members of CREA;
The information contained on this site is based in whole or in part on information that is provided by members of CREA, who are responsible for its accuracy. CREA reproduces and distributes this information as a service for its members and assumes no responsibility for its accuracy;
This website is operated by a brokerage or salesperson who is a member of CREA;
The listing content on this website is protected by copyright and other laws, and is intended solely for the private, non-commercial use by individuals. Any other reproduction, distribution or use of the content, in whole or in part, is specifically forbidden. The prohibited uses include commercial use, "screen scraping", "database scraping", and any other activity intended to collect, store, reorganize or manipulate data on the pages produced by or displayed on this website.
The information contained on this site is based in whole or in part on information that is provided under copyright by the Toronto Regional Real Estate Board (TRREB) or by members of The Canadian Real Estate Association (CREA), who are responsible for its accuracy. TRREB and CREA reproduce and distribute this information as a service for their members and assume no responsibility for its accuracy. All information displayed is believed to be accurate but is not guaranteed and should be independently verified. No warranties or representations of any kind are made with respect to the accuracy of such information. The information provided herein must only be used by consumers that have a bona fide interest in the purchase, sale, or lease of real estate and may not be used for any commercial purpose or any other purpose.