Approximately 4,900 sq. ft. over two floors with C5 zoning permitting community shopping and residential uses. Excellent high-traffic, high-visibility location on a busy street. Solid construction featuring concrete block walls and a concrete core slab ceiling. Parking available for 10+ vehicles. Tenant(s) pay all utilities. Property includes separate electric, gas, and water meters, as well as individual furnaces, air conditioners, and hot water tanks. Asphalt shingles replaced in 2020. (id:47421)
Interested in obtaining the full price history for this property? Contact us!Contact us! Our real estate professionals would be happy to provide a complete listing history with historical sold prices and dates.
Detailed Information
Bedrooms
4
Bathrooms
6
Lot
70 x 90 ft
Amenities Nearby
Hospital, Park, Place of Worship, Public Transit, Schools
Community Features
Community Centre
Equipment
Water Heater
Listing Contract Date
2025-07-18
Location Description
Cross Streets: Roxborough Ave. ** Directions: Parkdale Avenue North and Roxborough Avenue.
Ownership Type
Freehold
# of Parking Spaces
12
Property Type
Single Family
Rental Equipment
Water Heater
Transaction Type
For sale
Zoning Description
C5
Building
Age
16 to 30 years
Amenities
Separate Electricity Meters, Separate Heating Controls
Appliances
Water Heater
Basement Type
None
Construction Style (Attachment)
Detached
Cooling Type
Central air conditioning
Exterior Finish
Brick, Concrete Block
Foundation Type
Poured Concrete, Slab
# of Half Bathrooms
4
Heating Fuel
Natural gas
Heating Type
Forced air
Stories Total
2
Type
House
Utility Water
Municipal water
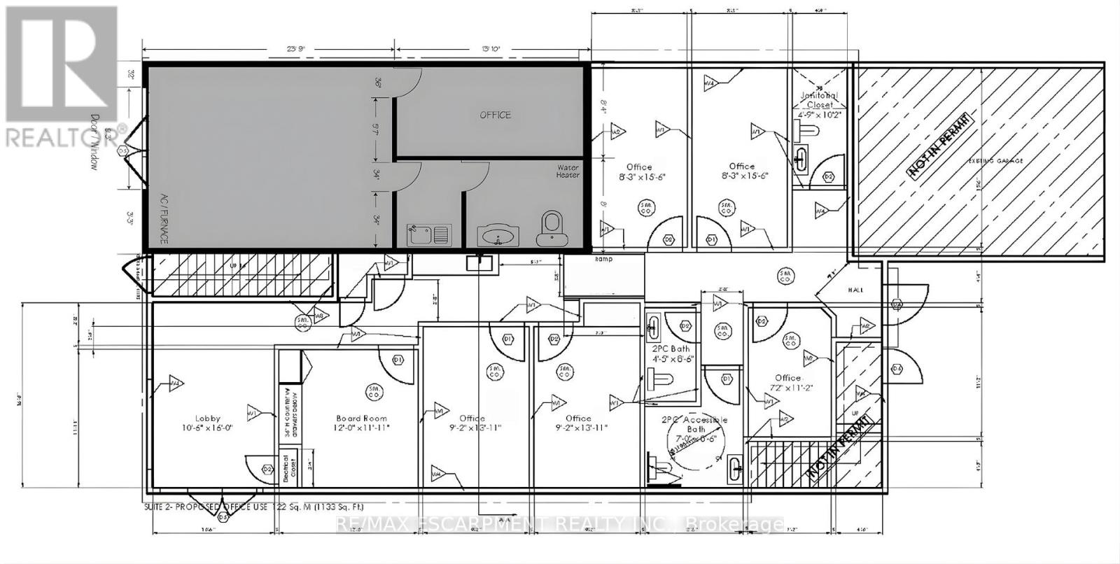
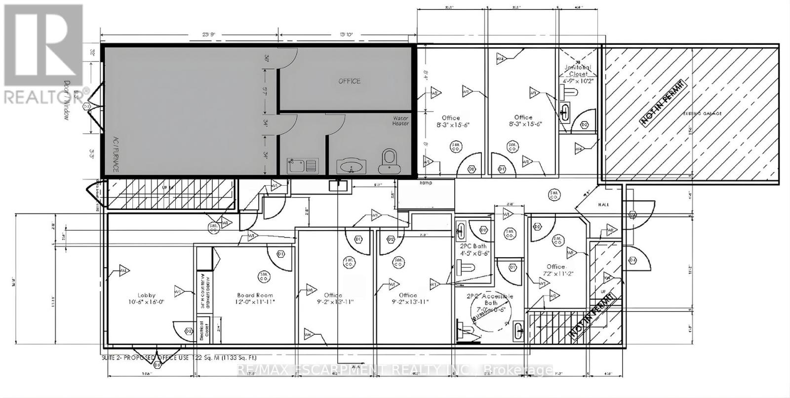
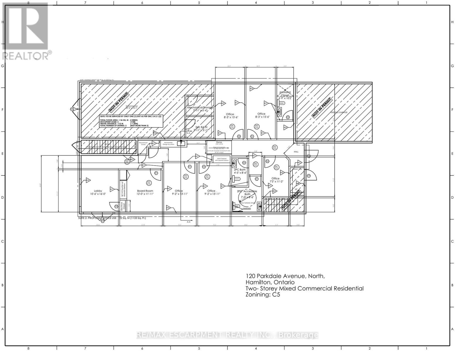
Rooms
Room
Level
Dimensions
Notes
Bathroom
Second level
4.75 m x 1.96 m
Bedroom
Second level
5.03 m x 4.42 m
Dining room
Second level
4.75 m x 3.02 m
Kitchen
Second level
4.6 m x 3.43 m
Living room
Second level
4.75 m x 3.76 m
Bedroom
Second level
5.03 m x 3.33 m
Utility room
Second level
0.91 m x 0.91 m
Bathroom
Second level
3.84 m x 2.44 m
Kitchen
Second level
3.73 m x 3.4 m
Living room
Second level
4.9 m x 3.66 m
Bedroom
Second level
4.6 m x 3.73 m
Bathroom
Main level
1.5 m x 2.41 m
Other
Main level
1.63 m x 2.41 m
Utility room
Main level
0.89 m x 0.64 m
Bathroom
Main level
1.83 m x 2.57 m
Bathroom
Main level
2.16 m x 1.55 m
Bathroom
Main level
2.13 m x 2.62 m
Office
Main level
3.51 m x 4.37 m
Office
Main level
6.43 m x 5.18 m
Office
Main level
1.91 m x 6.78 m
Bathroom
Main level
1.37 m x 2.62 m
Office
Main level
3.38 m x 10.21 m
Laundry room
Main level
4.98 m x 3.05 m
Parking Spaces
Name
Spaces
Attached Garage
Garage
Utilities
Type
Description
Cable
Available
Electricity
Installed
Sewer
Installed
Land
Total Size
70 x 90 FT ; 70.14 x 90.09 fx 70.14 x 90.10 f | under 1/2 acre
Amenities
Hospital, Park, Place of Worship, Public Transit, Schools
Sewer
Sanitary sewer
Size of Irregular Land
70 x 90 FT ; 70.14 x 90.09 fx 70.14 x 90.10 f
Terms of Use
Please review and agree to the following terms of use to access the listing content:
REALTOR®, REALTORS®, and the REALTOR® logo are certification marks that are owned by REALTOR® Canada Inc. and licensed exclusively to The Canadian Real Estate Association (CREA). These certification marks identify real estate professionals who are members of CREA and who must abide by CREA's By-Laws, Rules, and the REALTOR® Code. The MLS® trademark and the MLS® logo are owned by CREA and identify the quality of services provided by real estate professionals who are members of CREA;
The information contained on this site is based in whole or in part on information that is provided by members of CREA, who are responsible for its accuracy. CREA reproduces and distributes this information as a service for its members and assumes no responsibility for its accuracy;
This website is operated by a brokerage or salesperson who is a member of CREA;
The listing content on this website is protected by copyright and other laws, and is intended solely for the private, non-commercial use by individuals. Any other reproduction, distribution or use of the content, in whole or in part, is specifically forbidden. The prohibited uses include commercial use, "screen scraping", "database scraping", and any other activity intended to collect, store, reorganize or manipulate data on the pages produced by or displayed on this website.
The information contained on this site is based in whole or in part on information that is provided under copyright by the Toronto Regional Real Estate Board (TRREB) or by members of The Canadian Real Estate Association (CREA), who are responsible for its accuracy. TRREB and CREA reproduce and distribute this information as a service for their members and assume no responsibility for its accuracy. All information displayed is believed to be accurate but is not guaranteed and should be independently verified. No warranties or representations of any kind are made with respect to the accuracy of such information. The information provided herein must only be used by consumers that have a bona fide interest in the purchase, sale, or lease of real estate and may not be used for any commercial purpose or any other purpose.