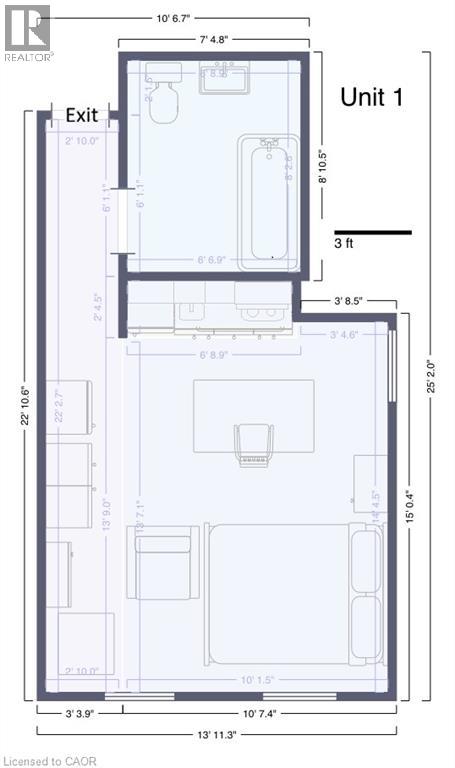
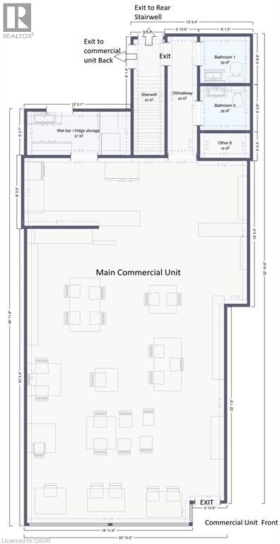
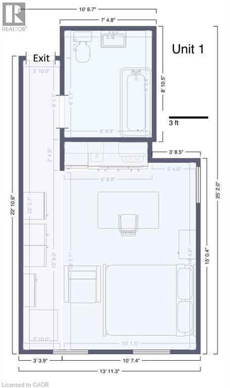
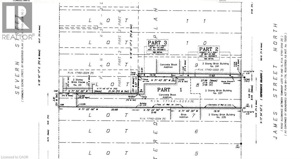
Strategically positioned on a through lot with exposure and access from both James Street North and Severn Street, offering two ground-floor commercial units and four residential units above.This diversified income profile may be suitable as a holding strategy for purchasers interested in properties within growing urban corridors. An abutting parcel located at 29 Severn Street is also available for purchase under separate ownership and representation (MLS#40797994). The availability of two side-by-side properties presents a rare opportunity. Acquiring adjacent parcels may increase total land area and frontage, consolidate lot lines, and provide optionality for improved access, servicing, circulation, parking, site layout, and massing. Paired with applicable zoning permissions, an assembly of this nature may unlock a unique potential development pathway that is independent of — and incremental to — the existing income-producing investment property. 29 Severn Street is a vacant parcel that previously had conceptual drawings prepared for a mixed-use building consisting of 1 commercial unit at grade and 6 residential units above under Permit No. BP-125643; the permit has since expired. The Seller of 29 Severn Street may have drawings or related materials available for purchaser's assistance. James Street North is a vibrant cultural and commercial district known for independent shops, restaurants, galleries, and Art Crawl events that draw strong local and regional foot traffic. The corridor has also benefited from sustained institutional and private investment, including the redevelopment of the TD Colosseum, which has emerged as a major economic contributor to Hamilton’s downtown by attracting international touring acts, large-scale events, and hundreds of thousands of new visitors and potential customers annually. Recent features include wiring upgrades, a Laars FT Series boiler/tankless system (2005). (id:47421)
Interested in obtaining the full price history for this property? Contact us!Contact us! Our real estate professionals would be happy to provide a complete listing history with historical sold prices and dates.
Detailed Information
Lot
28 x 162 ft
Amenities Nearby
Hospital, Public Transit
Community Features
High Traffic Area
Features
Visual exposure
Listing Contract Date
2026-01-19
Location Description
Located on the west side of James Street North between Mulberry and Colbourne Streets.
Ownership Type
Freehold
Property Type
Other
Transaction Type
For sale
Zoning Description
D2 - Downtown Mixed Use - Pedestrian Focus
Building
Basement Type
Full
Stories Total
3
Size (Exterior)
6898
Utility Water
Municipal water
Parking Spaces
Name
Spaces
Attached Garage
Land
Total Size
0.08 acres
Access Type
Highway access
Amenities
Hospital, Public Transit
Sewer
Municipal sewage system
Size of Irregular Land
0.08
Terms of Use
Please review and agree to the following terms of use to access the listing content:
REALTOR®, REALTORS®, and the REALTOR® logo are certification marks that are owned by REALTOR® Canada Inc. and licensed exclusively to The Canadian Real Estate Association (CREA). These certification marks identify real estate professionals who are members of CREA and who must abide by CREA's By-Laws, Rules, and the REALTOR® Code. The MLS® trademark and the MLS® logo are owned by CREA and identify the quality of services provided by real estate professionals who are members of CREA;
The information contained on this site is based in whole or in part on information that is provided by members of CREA, who are responsible for its accuracy. CREA reproduces and distributes this information as a service for its members and assumes no responsibility for its accuracy;
This website is operated by a brokerage or salesperson who is a member of CREA;
The listing content on this website is protected by copyright and other laws, and is intended solely for the private, non-commercial use by individuals. Any other reproduction, distribution or use of the content, in whole or in part, is specifically forbidden. The prohibited uses include commercial use, "screen scraping", "database scraping", and any other activity intended to collect, store, reorganize or manipulate data on the pages produced by or displayed on this website.
The information contained on this site is based in whole or in part on information that is provided under copyright by the Toronto Regional Real Estate Board (TRREB) or by members of The Canadian Real Estate Association (CREA), who are responsible for its accuracy. TRREB and CREA reproduce and distribute this information as a service for their members and assume no responsibility for its accuracy. All information displayed is believed to be accurate but is not guaranteed and should be independently verified. No warranties or representations of any kind are made with respect to the accuracy of such information. The information provided herein must only be used by consumers that have a bona fide interest in the purchase, sale, or lease of real estate and may not be used for any commercial purpose or any other purpose.