POND LOT! NO REAR NEIGHBOURS. BUILDERS INCENTIVE: BONUS UPGRADE TO HARDWOOD THROUGHOUT MAIN AND SECOND FLOOR! All exterior and interior colours selections made by the Buyer. Also includes: oak stairs, all brick/stone exterior, custom kitchen with island and pantry, Granite/Quartz selections with undermount sinks for kitchen and powder room, electric fireplace with mantle, 2nd floor laundry. Contact agent for upgrade pricing, additional lots available, pricing of other lots and standard features. Model home visits available. (id:47421)
Interested in obtaining the full price history for this property? Contact us!Contact us! Our real estate professionals would be happy to provide a complete listing history with historical sold prices and dates.
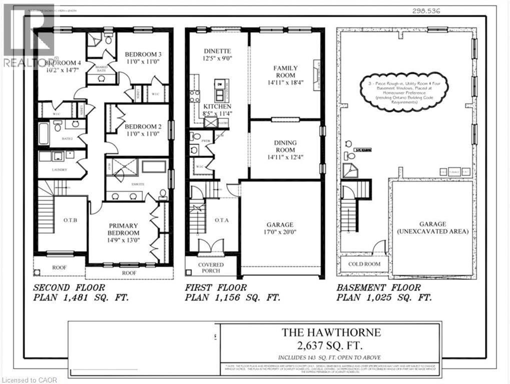
Detailed Information
Bedrooms
4
Bathrooms
4
Lot
37 x 99 ft
Amenities Nearby
Airport, Park, Public Transit, Schools, Shopping
Features
Southern exposure, Corner Site, Crushed stone driveway, Sump Pump
Listing Contract Date
2025-03-01
Location Description
EXIT SOUTH OFF OF LINCOLN M. ALEXANDER PKWY ONTO UPPER JAMES ST. TURN RIGHT ON STONE CHURCH RD. TURN LEFT ONTO WEST 5TH.
Ownership Type
Freehold
# of Parking Spaces
4
Property Type
Single Family
Transaction Type
For sale
Zoning Description
R1
Building
Appliances
Central Vacuum - Roughed In, Water meter
Architectural Style
2 Level
Basement Development
Unfinished
Basement Type
Full (Unfinished)
Construction Style (Attachment)
Detached
Cooling Type
Central air conditioning
Exterior Finish
Brick, Stone, Stucco
Foundation Type
Poured Concrete
# of Half Bathrooms
1
Heating Fuel
Natural gas
Heating Type
Forced air, Hot water radiator heat
Stories Total
2
Type
House
Utility Water
Municipal water
Rooms
Room
Level
Dimensions
Notes
Laundry room
Second level
7'10'' x 7'4''
3pc Bathroom
Second level
7'0'' x 8'0''
4pc Bathroom
Second level
9'8'' x 5'0''
4pc Bathroom
Second level
10'0'' x 10'0''
Bedroom
Second level
12'5'' x 10'5''
Bedroom
Second level
12'5'' x 10'6''
Bedroom
Second level
14'0'' x 10'2''
Primary Bedroom
Second level
14'6'' x 13'11''
2pc Bathroom
Main level
8'5'' x 4'
Dining room
Main level
14'11'' x 13'2''
Eat in kitchen
Main level
20'4'' x 12'5''
Family room
Main level
18'4'' x 14'11''
Parking Spaces
Name
Spaces
Attached Garage
Land
Total Size
under 1/2 acre
Access Type
Road access, Highway Nearby
Amenities
Airport, Park, Public Transit, Schools, Shopping
Sewer
Municipal sewage system
Terms of Use
Please review and agree to the following terms of use to access the listing content:
REALTOR®, REALTORS®, and the REALTOR® logo are certification marks that are owned by REALTOR® Canada Inc. and licensed exclusively to The Canadian Real Estate Association (CREA). These certification marks identify real estate professionals who are members of CREA and who must abide by CREA's By-Laws, Rules, and the REALTOR® Code. The MLS® trademark and the MLS® logo are owned by CREA and identify the quality of services provided by real estate professionals who are members of CREA;
The information contained on this site is based in whole or in part on information that is provided by members of CREA, who are responsible for its accuracy. CREA reproduces and distributes this information as a service for its members and assumes no responsibility for its accuracy;
This website is operated by a brokerage or salesperson who is a member of CREA;
The listing content on this website is protected by copyright and other laws, and is intended solely for the private, non-commercial use by individuals. Any other reproduction, distribution or use of the content, in whole or in part, is specifically forbidden. The prohibited uses include commercial use, "screen scraping", "database scraping", and any other activity intended to collect, store, reorganize or manipulate data on the pages produced by or displayed on this website.
The information contained on this site is based in whole or in part on information that is provided under copyright by the Toronto Regional Real Estate Board (TRREB) or by members of The Canadian Real Estate Association (CREA), who are responsible for its accuracy. TRREB and CREA reproduce and distribute this information as a service for their members and assume no responsibility for its accuracy. All information displayed is believed to be accurate but is not guaranteed and should be independently verified. No warranties or representations of any kind are made with respect to the accuracy of such information. The information provided herein must only be used by consumers that have a bona fide interest in the purchase, sale, or lease of real estate and may not be used for any commercial purpose or any other purpose.