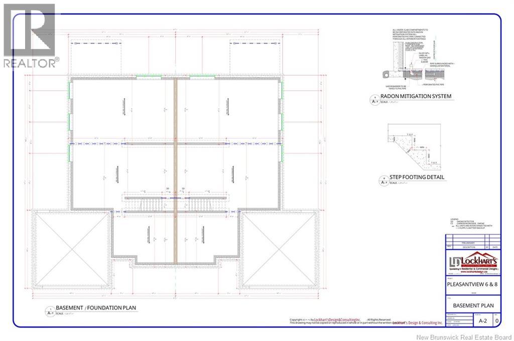
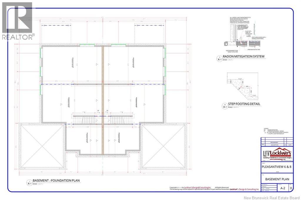
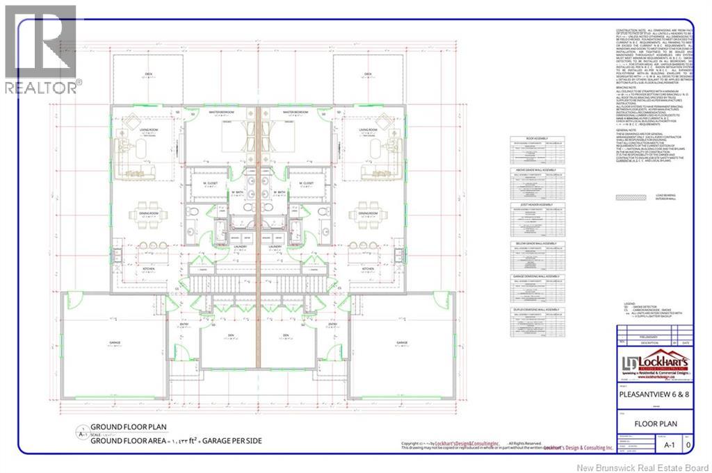
Your Dream Home Is in the Plans -22 Oak Leaf Lane! Heres your opportunity to secure a brand-new garden home in a prime Hampton location. This planned build is set to offer approximately 1,433 sqft of main floor living, with 2 bedrooms, 2 bathrooms, and an open-concept layout. The design includes quartz countertops, high-end kitchen cabinetry with a built-in pantry, and a spacious primary suite with a walk-in closet and ensuite. The layout also allows for a garage, a paved driveway, and a full basement that could offer future living space or storage. A new home warranty is expected to be included. Just minutes from Hamptons shops, schools, and highway access, this location blends comfort with convenience. Contact your REALTOR® today for more information as this exciting project takes shape! (id:47421)
Interested in obtaining the full price history for this property? Contact us!Contact us! Our real estate professionals would be happy to provide a complete listing history with historical sold prices and dates.
Detailed Information
Bedrooms
2
Bathrooms
2
Equipment
Water Heater
Features
Level lot, Balcony/Deck/Patio
Location Description
Elmwood or Mapleview --> Oak Leaf
Maintenance Fee Payment Frequency
Monthly
Municipal ID
30289292
Ownership Type
Freehold
Property Type
Single Family
Rental Equipment
Water Heater
Structures
None
Transaction Type
For sale
Building
Basement Development
Unfinished
Basement Type
Full (Unfinished)
Constructed Date
2026
Exterior Finish
Vinyl
Flooring Type
Ceramic, Vinyl
Foundation Type
Concrete
Heating Fuel
Electric
Heating Type
Baseboard heaters
Total Finished Area
1433 sqft
Type
House
Utility Water
Community Water System, Drilled Well, Well
Parking Spaces
Name
Spaces
Attached Garage
Garage
Land
Total Size
16307 square feet
Access Type
Year-round access, Public Road
Landscape Features
Landscaped
Sewer
Municipal sewage system
Size of Irregular Land
16307
Terms of Use
Please review and agree to the following terms of use to access the listing content:
REALTOR®, REALTORS®, and the REALTOR® logo are certification marks that are owned by REALTOR® Canada Inc. and licensed exclusively to The Canadian Real Estate Association (CREA). These certification marks identify real estate professionals who are members of CREA and who must abide by CREA's By-Laws, Rules, and the REALTOR® Code. The MLS® trademark and the MLS® logo are owned by CREA and identify the quality of services provided by real estate professionals who are members of CREA;
The information contained on this site is based in whole or in part on information that is provided by members of CREA, who are responsible for its accuracy. CREA reproduces and distributes this information as a service for its members and assumes no responsibility for its accuracy;
This website is operated by a brokerage or salesperson who is a member of CREA;
The listing content on this website is protected by copyright and other laws, and is intended solely for the private, non-commercial use by individuals. Any other reproduction, distribution or use of the content, in whole or in part, is specifically forbidden. The prohibited uses include commercial use, "screen scraping", "database scraping", and any other activity intended to collect, store, reorganize or manipulate data on the pages produced by or displayed on this website.
The information contained on this site is based in whole or in part on information that is provided under copyright by the Toronto Regional Real Estate Board (TRREB) or by members of The Canadian Real Estate Association (CREA), who are responsible for its accuracy. TRREB and CREA reproduce and distribute this information as a service for their members and assume no responsibility for its accuracy. All information displayed is believed to be accurate but is not guaranteed and should be independently verified. No warranties or representations of any kind are made with respect to the accuracy of such information. The information provided herein must only be used by consumers that have a bona fide interest in the purchase, sale, or lease of real estate and may not be used for any commercial purpose or any other purpose.