BONUS: HST included in the price! Brand New Semi-Detached Home in Orchard Hills Move-in ready! Designed with growing families in mind, this BRAND NEW 3 bedroom, 3 bathroom semi-detached home offers the ideal blend of comfort, privacy, and modern style in one of Hamptons most sought-after neighbourhoods. Teens can easily walk or bike to Hampton High School, located just minutes awaymaking busy mornings simpler and after-school activities a breeze. The main level features an open-concept layout with quartz countertops, custom cabinetry, and Torlys Premier vinyl plank flooring throughout. Two private patios extend the living space outdoorsgreat for family barbecues or a quiet place for your family to unwind. The main-floor primary suite includes a private 3/4 ensuite bathroom, offering parents their own peaceful retreat. A separate half bath on this level adds convenience for family and guests. Upstairs, two generously sized bedrooms and a full bathroom give kids/teenagers the space and independence they need. Located next to a beautiful walking trail and close to shopping, schools, sports fields, and community amenities, this home places your family in the heart of a friendly, walkable community. Includes a 10-year Lux New Home Warranty for added peace of mind. Custom mirrors will be installed in the bathrooms and the yard will be top soiled and seeded in the spring. Seller is a licensed REALTOR®. (id:47421)
Interested in obtaining the full price history for this property? Contact us!Contact us! Our real estate professionals would be happy to provide a complete listing history with historical sold prices and dates.
Detailed Information
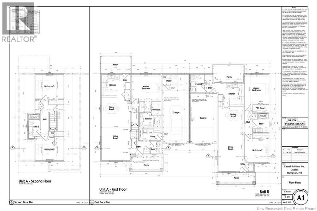
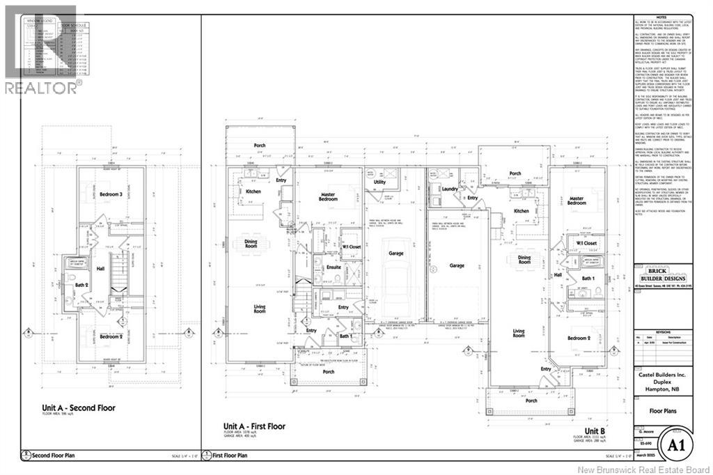
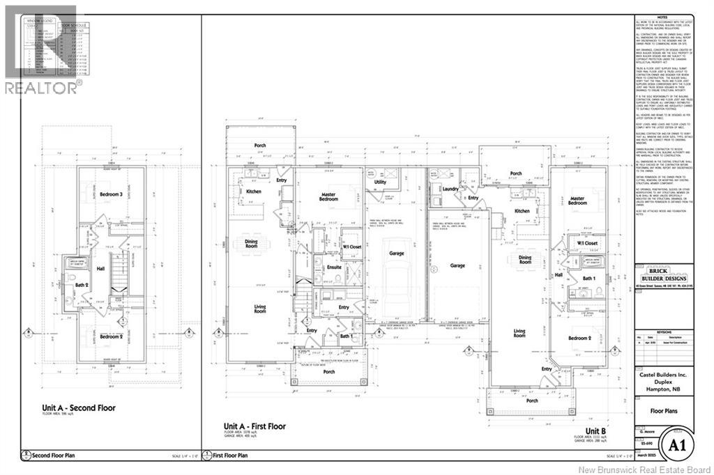
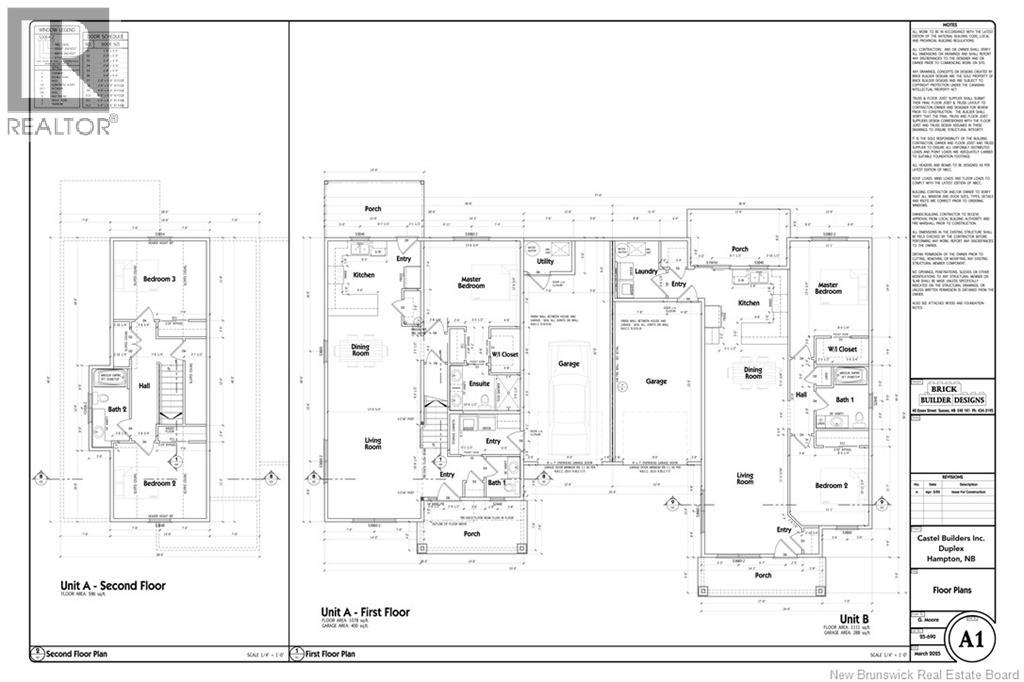
Bedrooms
3
Bathrooms
3
Equipment
None
Location Description
Elizabeth ave, right on St. Paul street, right on homestead drive.
Municipal ID
30357495
Ownership Type
Freehold
Property Type
Single Family
Rental Equipment
None
Transaction Type
For sale
Building
Cooling Type
Heat Pump
Exterior Finish
Vinyl
Flooring Type
Tile, Vinyl
Foundation Type
Concrete, Slab
# of Half Bathrooms
1
Heating Fuel
Electric
Heating Type
Baseboard heaters, Heat Pump
Total Finished Area
1674 sqft
Type
House
Utility Water
Shared Well, Well
Rooms
Room
Level
Dimensions
Notes
4pc Bathroom
Second level
X
Bedroom
Second level
14' x 11'8''
Bedroom
Second level
14' x 11'3''
Living room
Main level
13'1'' x 13'8''
Dining room
Main level
13'1'' x 11'
2pc Bathroom
Main level
X
Primary Bedroom
Main level
13'7'' x 12'1''
Parking Spaces
Name
Spaces
Attached Garage
Garage
Land
Total Size
7168.76 square feet
Access Type
Year-round access, Public Road
Sewer
Municipal sewage system
Size of Irregular Land
7168.76
Terms of Use
Please review and agree to the following terms of use to access the listing content:
REALTOR®, REALTORS®, and the REALTOR® logo are certification marks that are owned by REALTOR® Canada Inc. and licensed exclusively to The Canadian Real Estate Association (CREA). These certification marks identify real estate professionals who are members of CREA and who must abide by CREA's By-Laws, Rules, and the REALTOR® Code. The MLS® trademark and the MLS® logo are owned by CREA and identify the quality of services provided by real estate professionals who are members of CREA;
The information contained on this site is based in whole or in part on information that is provided by members of CREA, who are responsible for its accuracy. CREA reproduces and distributes this information as a service for its members and assumes no responsibility for its accuracy;
This website is operated by a brokerage or salesperson who is a member of CREA;
The listing content on this website is protected by copyright and other laws, and is intended solely for the private, non-commercial use by individuals. Any other reproduction, distribution or use of the content, in whole or in part, is specifically forbidden. The prohibited uses include commercial use, "screen scraping", "database scraping", and any other activity intended to collect, store, reorganize or manipulate data on the pages produced by or displayed on this website.
The information contained on this site is based in whole or in part on information that is provided under copyright by the Toronto Regional Real Estate Board (TRREB) or by members of The Canadian Real Estate Association (CREA), who are responsible for its accuracy. TRREB and CREA reproduce and distribute this information as a service for their members and assume no responsibility for its accuracy. All information displayed is believed to be accurate but is not guaranteed and should be independently verified. No warranties or representations of any kind are made with respect to the accuracy of such information. The information provided herein must only be used by consumers that have a bona fide interest in the purchase, sale, or lease of real estate and may not be used for any commercial purpose or any other purpose.