Entertainers' Paradise – Beautifully Updated 3-Bedroom Home in Ingersoll This charming 3-bedroom, 2-bathroom home is perfect for those who love to entertain! Featuring a fully fenced backyard with a hot tub, gazebo, and plenty of room for kids and pets to play. Plus, the large detached garage has been transformed into a true retreat, complete with a built-in bar and pool table for ultimate relaxation while still leaving room to work on and store your toys. The home itself is bright and warm, offering modern updates throughout. The kitchen is a chef's delight with sleek countertops, stainless steel appliances, and a functional layout for preparing meals and hosting guests. The spacious living room is perfect for cozying up with the family. Whether you're hosting a game night in the garage or unwinding in the hot tub or under the gazebo with a glass of wine, this home has everything you need. Key Features: 3 Bedrooms, 2 Bathrooms Detached Garage with Bar & Pool Table Hot Tub, Gazebo & Fully Fenced Yard Updated Kitchen with Stainless Steel Appliances Spacious Living Areas with Modern Touches Ideal for Entertaining or Relaxing Located in a family-friendly neighborhood Side-by-side properties—220 KING HIRAM OR 224 KING HIRAM buy one or both! A rare opportunity for multi-generation families to remain close. MAKE THIS YOUR DREAM HOME DON'T MISS OUT BOOK A SHOWING (id:47421)
Interested in obtaining the full price history for this property? Contact us!Contact us! Our real estate professionals would be happy to provide a complete listing history with historical sold prices and dates.
Detailed Information
Bedrooms
1+2
Bathrooms
2
Lot
50 x 0 ft
Amenities Nearby
Golf Nearby, Hospital, Park, Schools, Shopping
Equipment
Water Heater
Features
Paved driveway
Listing Contract Date
2025-11-18
Location Description
ON CORNER OF KING HIRAM STREET AND PEMBERTON STREET SECOND HOUSE TO THE WEST OF PEMBERTON STREET
Ownership Type
Freehold
# of Parking Spaces
6
Property Type
Single Family
Rental Equipment
Water Heater
Transaction Type
For sale
Zoning Description
R2
Building
Appliances
Dishwasher, Dryer, Refrigerator, Stove, Water meter, Water softener, Washer, Hot Tub
Architectural Style
Raised bungalow
Basement Development
Partially finished
Basement Type
Full (Partially finished)
Constructed Date
1981
Construction Style (Attachment)
Detached
Cooling Type
Central air conditioning
Exterior Finish
Brick, Vinyl siding
Fire Protection
Smoke Detectors
Fireplace Present
Yes
# of Fireplaces
1
Foundation Type
Poured Concrete
Heating Fuel
Natural gas
Heating Type
Forced air
Stories Total
1
Type
House
Utility Water
Municipal water
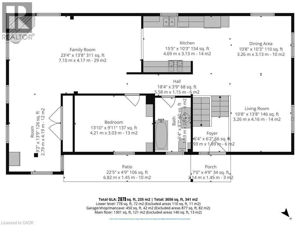
Rooms
Room
Level
Dimensions
Notes
Storage
Basement
9'3'' x 4'4''
Laundry room
Basement
9'2'' x 7'10''
Bedroom
Basement
14'6'' x 11'1''
Bedroom
Basement
17'7'' x 12'2''
Recreation room
Basement
14' x 7'7''
3pc Bathroom
Basement
10'9'' x 4'1''
Foyer
Main level
6'4'' x 6'2''
Primary Bedroom
Main level
13'10'' x 9'11''
Bonus Room
Main level
13'9'' x 9'2''
Family room
Main level
23'4'' x 13'8''
Living room
Main level
13'8'' x 10'8''
Dining room
Main level
10'8'' x 10'3''
Kitchen
Main level
15'5'' x 10'3''
3pc Bathroom
Main level
9'7'' x 6'4''
Parking Spaces
Name
Spaces
Detached Garage
Utilities
Type
Description
Electricity
Available
Natural Gas
Available
Telephone
Available
Land
Total Size
0.281 acres
Access Type
Road access
Amenities
Golf Nearby, Hospital, Park, Schools, Shopping
Sewer
Municipal sewage system
Size of Irregular Land
0.281
Terms of Use
Please review and agree to the following terms of use to access the listing content:
REALTOR®, REALTORS®, and the REALTOR® logo are certification marks that are owned by REALTOR® Canada Inc. and licensed exclusively to The Canadian Real Estate Association (CREA). These certification marks identify real estate professionals who are members of CREA and who must abide by CREA's By-Laws, Rules, and the REALTOR® Code. The MLS® trademark and the MLS® logo are owned by CREA and identify the quality of services provided by real estate professionals who are members of CREA;
The information contained on this site is based in whole or in part on information that is provided by members of CREA, who are responsible for its accuracy. CREA reproduces and distributes this information as a service for its members and assumes no responsibility for its accuracy;
This website is operated by a brokerage or salesperson who is a member of CREA;
The listing content on this website is protected by copyright and other laws, and is intended solely for the private, non-commercial use by individuals. Any other reproduction, distribution or use of the content, in whole or in part, is specifically forbidden. The prohibited uses include commercial use, "screen scraping", "database scraping", and any other activity intended to collect, store, reorganize or manipulate data on the pages produced by or displayed on this website.
The information contained on this site is based in whole or in part on information that is provided under copyright by the Toronto Regional Real Estate Board (TRREB) or by members of The Canadian Real Estate Association (CREA), who are responsible for its accuracy. TRREB and CREA reproduce and distribute this information as a service for their members and assume no responsibility for its accuracy. All information displayed is believed to be accurate but is not guaranteed and should be independently verified. No warranties or representations of any kind are made with respect to the accuracy of such information. The information provided herein must only be used by consumers that have a bona fide interest in the purchase, sale, or lease of real estate and may not be used for any commercial purpose or any other purpose.