A flagstone walkway welcomes you to this beautiful 1-1/2 storey century style home extensively renovated and updated with exquisite attention to detail. Features1800 sqft of stylishly decorated above grade living space with 3 bedrooms, 2 bathrooms and upper-level laundry. The wow-factor begins as soon as you enter the front door. Expansive windows provide tons of natural light showcasing the open concept main floor layout featuring engineered Hickory hardwood flooring, living room with vaulted cedar ceiling, roomy family room and dining areas with custom sliding doors adjacent to the breathtaking kitchen with custom cabinetry, hand crafted tile backsplash, valence lighting, quartz countertops, island/breakfast bar and brand new hi-end stainless steel appliances. The mudroom with side door entry leads to a sprawling deck with a pavilion overlooking the rear yard. A gravel drive provides parking for 4 vehicles, or a boat/RV. Extras include new siding, safe & sound insulation, windows, ext doors, 9 ft ceilings on main floor, luxury vinyl plank floors, solid int doors, trim& hardware, new bathroom fixtures and vanities, 100-amp hydro, electrical wiring, LED lighting, plumbing, h/eff furnace, c/air and main floor joists replaced. Located close to Lake Erie in the quaint town of Jarvis, about a 45 min commute south of Hamilton and Hwy 403.Quality craftsmanship throughout.Amust-see property. (id:47421)
Interested in obtaining the full price history for this property? Contact us!Contact us! Our real estate professionals would be happy to provide a complete listing history with historical sold prices and dates.
Detailed Information
Bedrooms
3
Bathrooms
2
Lot
66 x 140 ft
Amenities Nearby
Golf Nearby, Hospital, Park, Place of Worship, Schools
Community Features
Quiet Area
Equipment
None
Features
Crushed stone driveway, Shared Driveway, Gazebo
Listing Contract Date
2025-12-03
Location Description
From Hamilton take Hwy 6 South through Jarvis, property is on the left side. Main Street aka Highway 6, close to the intersection of Highway 6 and Highway 3.
Ownership Type
Freehold
# of Parking Spaces
3
Property Type
Single Family
Rental Equipment
None
Structures
Shed
Transaction Type
For sale
Zoning Description
R1A
Building
Appliances
Dishwasher, Dryer, Refrigerator, Stove, Water meter, Washer, Microwave Built-in
Basement Type
None
Constructed Date
1890
Construction Style (Attachment)
Detached
Cooling Type
Central air conditioning
Exterior Finish
Vinyl siding
Fire Protection
Smoke Detectors
Foundation Type
Unknown
# of Half Bathrooms
1
Heating Fuel
Natural gas
Heating Type
Forced air
Stories Total
1.5
Type
House
Utility Water
Municipal water
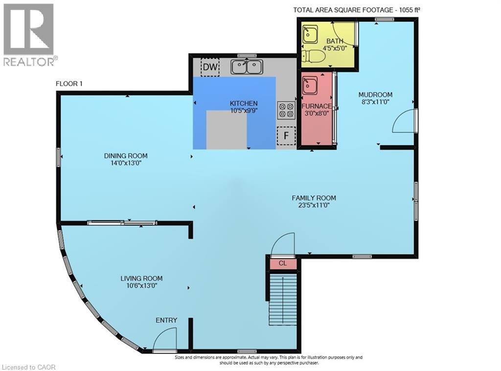
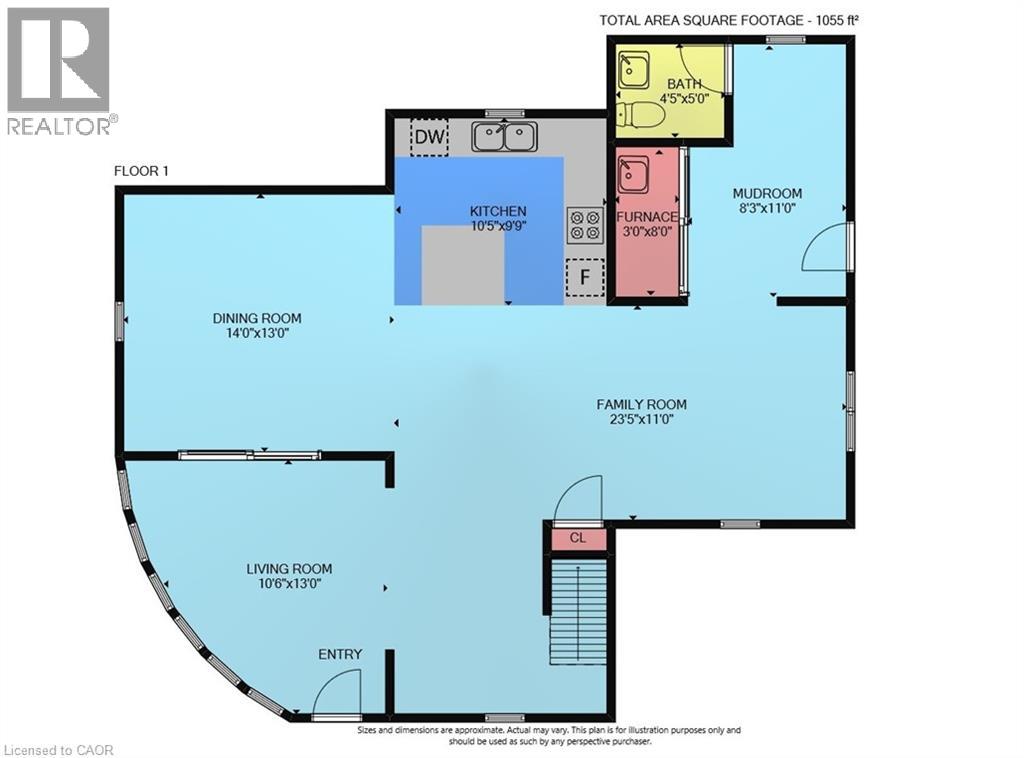
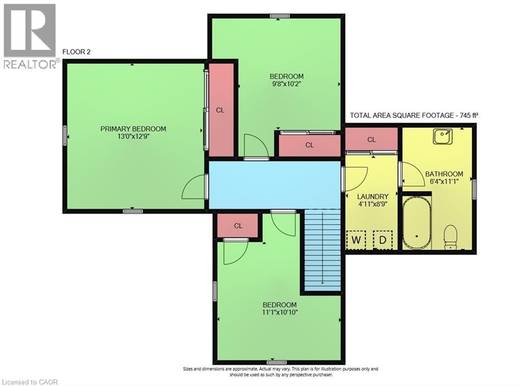
Rooms
Room
Level
Dimensions
Notes
Laundry room
Second level
8'9'' x 4'11''
Bedroom
Second level
10'2'' x 9'8''
Bedroom
Second level
11'1'' x 10'10''
Primary Bedroom
Second level
13'0'' x 12'9''
4pc Bathroom
Second level
11'1'' x 6'4''
Den
Main level
11'1'' x 10'10''
2pc Bathroom
Main level
5'0'' x 4'0''
Living room
Main level
14'0'' x 13'0''
Family room
Main level
23'5'' x 11'0''
Dining room
Main level
13'0'' x 10'6''
Eat in kitchen
Main level
10'5'' x 9'9''
Mud room
Main level
11'0'' x 8'3''
Land
Total Size
0.232 acres
Amenities
Golf Nearby, Hospital, Park, Place of Worship, Schools
Fence Type
Partially fenced
Sewer
Municipal sewage system
Size of Irregular Land
0.232
Terms of Use
Please review and agree to the following terms of use to access the listing content:
REALTOR®, REALTORS®, and the REALTOR® logo are certification marks that are owned by REALTOR® Canada Inc. and licensed exclusively to The Canadian Real Estate Association (CREA). These certification marks identify real estate professionals who are members of CREA and who must abide by CREA's By-Laws, Rules, and the REALTOR® Code. The MLS® trademark and the MLS® logo are owned by CREA and identify the quality of services provided by real estate professionals who are members of CREA;
The information contained on this site is based in whole or in part on information that is provided by members of CREA, who are responsible for its accuracy. CREA reproduces and distributes this information as a service for its members and assumes no responsibility for its accuracy;
This website is operated by a brokerage or salesperson who is a member of CREA;
The listing content on this website is protected by copyright and other laws, and is intended solely for the private, non-commercial use by individuals. Any other reproduction, distribution or use of the content, in whole or in part, is specifically forbidden. The prohibited uses include commercial use, "screen scraping", "database scraping", and any other activity intended to collect, store, reorganize or manipulate data on the pages produced by or displayed on this website.
The information contained on this site is based in whole or in part on information that is provided under copyright by the Toronto Regional Real Estate Board (TRREB) or by members of The Canadian Real Estate Association (CREA), who are responsible for its accuracy. TRREB and CREA reproduce and distribute this information as a service for their members and assume no responsibility for its accuracy. All information displayed is believed to be accurate but is not guaranteed and should be independently verified. No warranties or representations of any kind are made with respect to the accuracy of such information. The information provided herein must only be used by consumers that have a bona fide interest in the purchase, sale, or lease of real estate and may not be used for any commercial purpose or any other purpose.