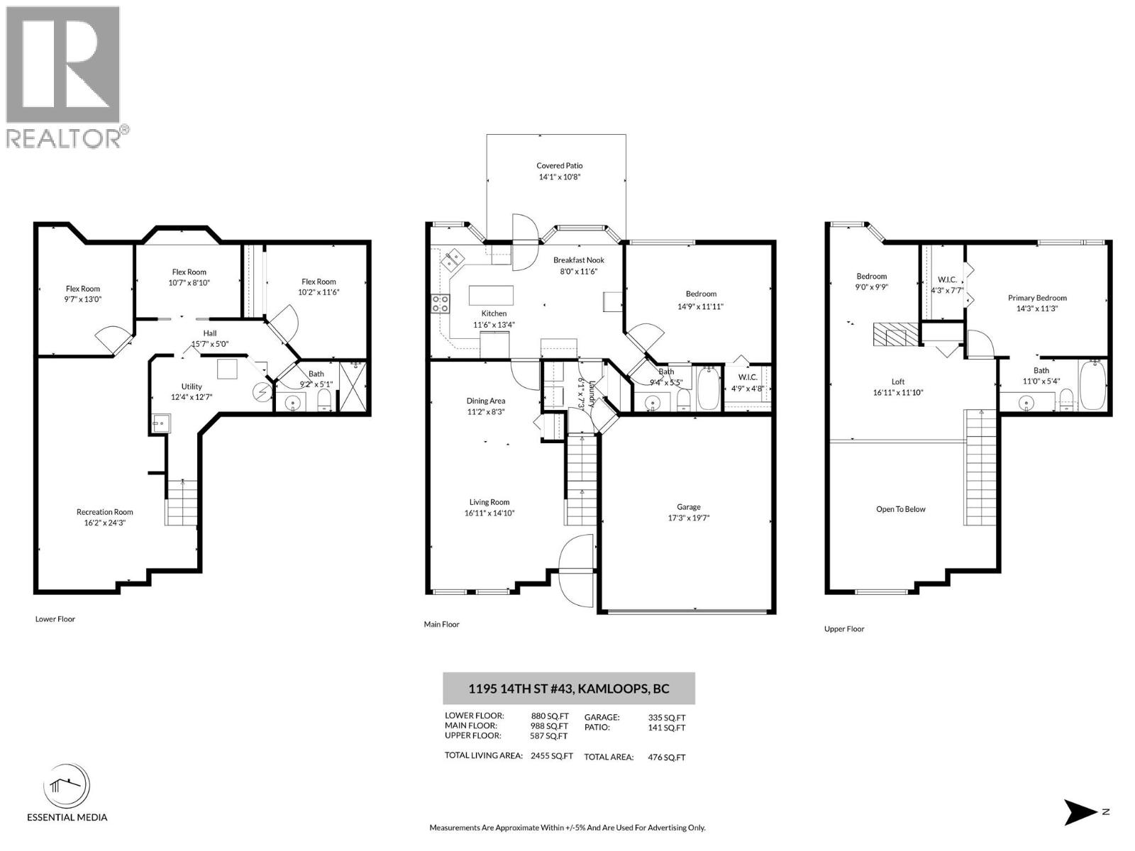
Welcome to Orchards Village, a quiet and well-maintained community known for its friendly atmosphere and low strata fees! This beautifully kept 2,500+ sq. ft. bungalow offers bright, open-concept living with vaulted ceilings, a spacious kitchen and dining area, and access to a covered patio perfect for relaxing. The main floor features a large bedroom with a walk-in closet, a 4-pc bath, laundry, and a double garage. Upstairs offers a versatile loft area and a second bedroom with an ensuite, while the fully finished basement provides a family room, office, hobby room, den/guest room, and a newly renovated 3-pc bathroom. Perfect for families or couples looking to downsize without compromising on space, this home offers comfort, flexibility, and plenty of room for visiting loved ones. With low bare-land strata fees (~$145/month) and a peaceful location near shopping, parks, and transit, this property truly has it all! (id:47421)
Interested in obtaining the full price history for this property? Contact us!Contact us! Our real estate professionals would be happy to provide a complete listing history with historical sold prices and dates.
Refrigerator, Dishwasher, Microwave, See remarks, Washer & Dryer
Basement Type
Full
Constructed Date
1993
Construction Style (Attachment)
Attached
Cooling Type
Central air conditioning
Exterior Finish
Vinyl siding
Flooring Type
Mixed Flooring
Heating Type
Forced air, See remarks
Roof Material
Asphalt shingle
Roof Style
Unknown
Stories Total
3
Type
Row / Townhouse
Utility Water
Municipal water
Rooms
Room
Level
Dimensions
Notes
Family room
Second level
21'10'' x 16'10''
Primary Bedroom
Second level
14'5'' x 11'7''
4pc Ensuite bath
Second level
10'10'' x 4'10''
Other
Basement
11'2'' x 9'6''
Laundry room
Basement
8'0'' x 6'0''
Den
Basement
10'7'' x 6'10''
Other
Basement
11'2'' x 9'6''
Recreation room
Basement
23'4'' x 11'2''
3pc Bathroom
Basement
9' x 4'10''
Bedroom
Main level
14'5'' x 11'10''
Dining nook
Main level
10'4'' x 15'5''
Dining room
Main level
11'1'' x 8'4''
Kitchen
Main level
11'6'' x 13'5''
Living room
Main level
15'0'' x 13'0''
4pc Bathroom
Main level
8'9'' x 4'11''
Parking Spaces
Name
Spaces
Attached Garage
2
Land
Total Size
0.05 acres
Access Type
Easy access
Amenities
Airport, Recreation, Shopping
Landscape Features
Level, Underground sprinkler
Sewer
Municipal sewage system
Size of Irregular Land
0.05
Terms of Use
Please review and agree to the following terms of use to access the listing content:
REALTOR®, REALTORS®, and the REALTOR® logo are certification marks that are owned by REALTOR® Canada Inc. and licensed exclusively to The Canadian Real Estate Association (CREA). These certification marks identify real estate professionals who are members of CREA and who must abide by CREA's By-Laws, Rules, and the REALTOR® Code. The MLS® trademark and the MLS® logo are owned by CREA and identify the quality of services provided by real estate professionals who are members of CREA;
The information contained on this site is based in whole or in part on information that is provided by members of CREA, who are responsible for its accuracy. CREA reproduces and distributes this information as a service for its members and assumes no responsibility for its accuracy;
This website is operated by a brokerage or salesperson who is a member of CREA;
The listing content on this website is protected by copyright and other laws, and is intended solely for the private, non-commercial use by individuals. Any other reproduction, distribution or use of the content, in whole or in part, is specifically forbidden. The prohibited uses include commercial use, "screen scraping", "database scraping", and any other activity intended to collect, store, reorganize or manipulate data on the pages produced by or displayed on this website.
The information contained on this site is based in whole or in part on information that is provided under copyright by the Toronto Regional Real Estate Board (TRREB) or by members of The Canadian Real Estate Association (CREA), who are responsible for its accuracy. TRREB and CREA reproduce and distribute this information as a service for their members and assume no responsibility for its accuracy. All information displayed is believed to be accurate but is not guaranteed and should be independently verified. No warranties or representations of any kind are made with respect to the accuracy of such information. The information provided herein must only be used by consumers that have a bona fide interest in the purchase, sale, or lease of real estate and may not be used for any commercial purpose or any other purpose.