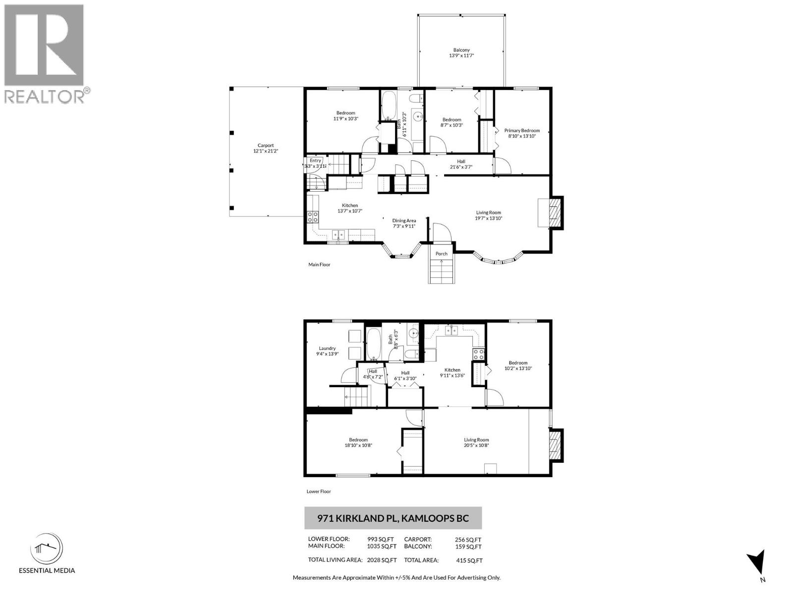
Looking for a family home with the potential for income on a large corner city lot? This property may be for you! With 3 bedrooms, one bath up, and a basement with separate entrance to the 2 bedroom suite, it's waiting for you to put your touches on it. Brand new roof, 2023 HWT, some updated flooring and painting done already. Back yard has apricot, plum and cherry trees along with grapes with U/G irrigation throughout the yard. Office/bedroom has sliders lead out to back deck and both levels have fireplaces to keep you cozy in winter. Large driveway with tons of parking including the attached carport - room for shop! All measurements approx, to be verified by Buyer if important. (id:47421)
Interested in obtaining the full price history for this property? Contact us!Contact us! Our real estate professionals would be happy to provide a complete listing history with historical sold prices and dates.
Detailed Information
Bedrooms
5
Bathrooms
2
Features
Corner Site
Listing Contract Date
2025-09-22
Municipal ID
009-440-607
Ownership Type
Freehold
# of Parking Spaces
5
Property Type
Single Family
Transaction Type
For sale
Building
Appliances
Range, Refrigerator, Dishwasher, Washer & Dryer
Architectural Style
Bungalow
Constructed Date
1964
Construction Style (Attachment)
Detached
Cooling Type
Central air conditioning
Exterior Finish
Vinyl siding
Heating Type
Forced air, See remarks
Roof Material
Asphalt shingle
Roof Style
Unknown
Stories Total
1
Type
House
Utility Water
Municipal water
Rooms
Room
Level
Dimensions
Notes
Laundry room
Basement
9'8'' x 9'9''
4pc Bathroom
Basement
5'9'' x 5'9''
Bedroom
Main level
10'1'' x 11'5''
4pc Bathroom
Main level
10'1'' x 11'5''
Bedroom
Main level
8'7'' x 10'1''
Primary Bedroom
Main level
9'1'' x 13'7''
Living room
Main level
10'7'' x 20'1''
Dining room
Main level
10'7'' x 10'4''
Kitchen
Main level
11'3'' x 10'7''
Bedroom
Additional Accommodation
13'1'' x 9'9''
Primary Bedroom
Additional Accommodation
10'1'' x 18'8''
Kitchen
Additional Accommodation
7'4'' x 13'1''
Parking Spaces
Name
Spaces
Carport
Land
Total Size
0.19 acres
Landscape Features
Underground sprinkler
Sewer
Municipal sewage system
Size of Irregular Land
0.19
Terms of Use
Please review and agree to the following terms of use to access the listing content:
REALTOR®, REALTORS®, and the REALTOR® logo are certification marks that are owned by REALTOR® Canada Inc. and licensed exclusively to The Canadian Real Estate Association (CREA). These certification marks identify real estate professionals who are members of CREA and who must abide by CREA's By-Laws, Rules, and the REALTOR® Code. The MLS® trademark and the MLS® logo are owned by CREA and identify the quality of services provided by real estate professionals who are members of CREA;
The information contained on this site is based in whole or in part on information that is provided by members of CREA, who are responsible for its accuracy. CREA reproduces and distributes this information as a service for its members and assumes no responsibility for its accuracy;
This website is operated by a brokerage or salesperson who is a member of CREA;
The listing content on this website is protected by copyright and other laws, and is intended solely for the private, non-commercial use by individuals. Any other reproduction, distribution or use of the content, in whole or in part, is specifically forbidden. The prohibited uses include commercial use, "screen scraping", "database scraping", and any other activity intended to collect, store, reorganize or manipulate data on the pages produced by or displayed on this website.
The information contained on this site is based in whole or in part on information that is provided under copyright by the Toronto Regional Real Estate Board (TRREB) or by members of The Canadian Real Estate Association (CREA), who are responsible for its accuracy. TRREB and CREA reproduce and distribute this information as a service for their members and assume no responsibility for its accuracy. All information displayed is believed to be accurate but is not guaranteed and should be independently verified. No warranties or representations of any kind are made with respect to the accuracy of such information. The information provided herein must only be used by consumers that have a bona fide interest in the purchase, sale, or lease of real estate and may not be used for any commercial purpose or any other purpose.