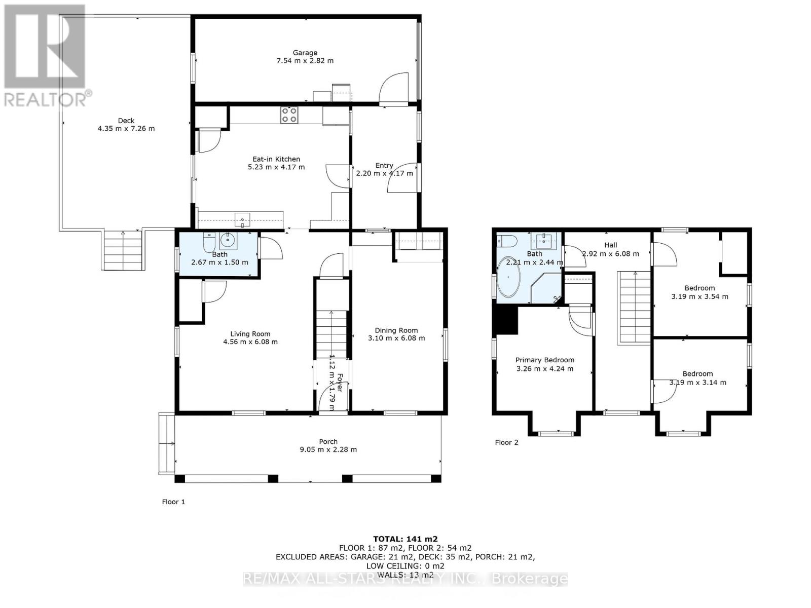
This delightful 1.5-storey home offers the perfect blend of character and modern updates, all within walking distance to the heart of Fenelon Falls. Situated on a beautifully landscaped 0.201-acre lot, the property features a newly built (2024) deck, lush new sod, rock pathways, and vibrant flower beds that create an inviting outdoor oasis. Step inside to a spacious covered front porch, ideal for morning coffee or relaxing evenings. The large eat-in kitchen boasts stylish butcher block countertops and a walkout to the deck and fully fenced side yard, perfect for entertaining. The main floor also includes a bright living room, an updated 2-piece powder room (2023), a newly finished main floor bedroom, and a separate laundry room - both completed in 2026 - adding excellent convenience and flexibility to the layout. Upstairs, you'll find cozy carpeting, three bedrooms, and a charming 4-piece bathroom featuring a classic clawfoot tub. The home also includes a basement/crawlspace, offering additional storage and utility space. Above the garage, there is exciting attic potential that could be renovated, providing future expansion opportunities. With its prime location, thoughtful updates, functional layout, and room to grow, this home is an excellent option for families, retirees, or anyone looking to enjoy all that Fenelon Falls has to offer. (id:47421)
Interested in obtaining the full price history for this property? Contact us!Contact us! Our real estate professionals would be happy to provide a complete listing history with historical sold prices and dates.
Detailed Information
Bedrooms
4
Bathrooms
2
Lot
99 x 88 ft
Amenities Nearby
Beach, Golf Nearby, Place of Worship, Schools
Community Features
Community Centre
Features
Sloping, Flat site
Listing Contract Date
2025-11-13
Location Description
Cross Streets: Princes St W/Colborne St. ** Directions: Colborne St Fenelon Falls.
Ownership Type
Freehold
# of Parking Spaces
5
Property Type
Single Family
Structures
Patio(s), Porch, Shed
Transaction Type
For sale
Zoning Description
R1
Building
Age
100+ years
Appliances
Water Heater, Dryer, Stove, Washer, Window Coverings, Refrigerator
Basement Development
Unfinished
Basement Type
Partial (Unfinished)
Construction Style (Attachment)
Detached
Cooling Type
Central air conditioning
Exterior Finish
Aluminum siding, Wood
Foundation Type
Block, Stone
# of Half Bathrooms
1
Heating Fuel
Natural gas
Heating Type
Forced air
Stories Total
1.5
Type
House
Utility Water
Municipal water
Rooms
Room
Level
Dimensions
Notes
Bedroom 4
Second level
3.26 m x 4.24 m
Bedroom 2
Second level
3.19 m x 3.14 m
Bedroom 3
Second level
3.19 m x 3.54 m
Primary Bedroom
Main level
3.1 m x 6.08 m
Living room
Main level
4.56 m x 6.08 m
Kitchen
Main level
5.23 m x 4.17 m
Mud room
Main level
2.2 m x 4.17 m
Parking Spaces
Name
Spaces
Attached Garage
Garage
Land
Total Size
99 x 88 FT
Amenities
Beach, Golf Nearby, Place of Worship, Schools
Landscape Features
Landscaped
Sewer
Sanitary sewer
Size of Irregular Land
99 x 88 FT
Terms of Use
Please review and agree to the following terms of use to access the listing content:
REALTOR®, REALTORS®, and the REALTOR® logo are certification marks that are owned by REALTOR® Canada Inc. and licensed exclusively to The Canadian Real Estate Association (CREA). These certification marks identify real estate professionals who are members of CREA and who must abide by CREA's By-Laws, Rules, and the REALTOR® Code. The MLS® trademark and the MLS® logo are owned by CREA and identify the quality of services provided by real estate professionals who are members of CREA;
The information contained on this site is based in whole or in part on information that is provided by members of CREA, who are responsible for its accuracy. CREA reproduces and distributes this information as a service for its members and assumes no responsibility for its accuracy;
This website is operated by a brokerage or salesperson who is a member of CREA;
The listing content on this website is protected by copyright and other laws, and is intended solely for the private, non-commercial use by individuals. Any other reproduction, distribution or use of the content, in whole or in part, is specifically forbidden. The prohibited uses include commercial use, "screen scraping", "database scraping", and any other activity intended to collect, store, reorganize or manipulate data on the pages produced by or displayed on this website.
The information contained on this site is based in whole or in part on information that is provided under copyright by the Toronto Regional Real Estate Board (TRREB) or by members of The Canadian Real Estate Association (CREA), who are responsible for its accuracy. TRREB and CREA reproduce and distribute this information as a service for their members and assume no responsibility for its accuracy. All information displayed is believed to be accurate but is not guaranteed and should be independently verified. No warranties or representations of any kind are made with respect to the accuracy of such information. The information provided herein must only be used by consumers that have a bona fide interest in the purchase, sale, or lease of real estate and may not be used for any commercial purpose or any other purpose.