Welcome to the Fenelon Falls Lakes Club - a New Luxury Resort-Style Complex! Penthouse 5 offers the perfect blend of lakeside living and modern luxury, with stunning waterfront views from nearly every room. This spacious residence features over 1,400 sq. ft. of interior space plus a large private balcony - ideal for relaxing or entertaining. Enjoy seamless indoor-outdoor living with oversized wall-to-wall sliding glass doors, soaring 10 ft. smooth ceilings, quartz countertops, and expansive windows that fill the home with natural light. A separate den/office space off the kitchen provides the perfect area for working from home or quiet relaxation. The inviting living area showcases a striking gas fireplace, perfect for cozy evenings by the lake. The primary bedroom boasts two walk-in closets and a beautiful 3-piece en-suite, creating the ultimate private retreat. The resort-inspired amenities include an outdoor pool, fitness center, pickleball and tennis courts, dog wash station, and a neighboring marina - all set along beautiful Cameron Lake. Conveniently located just minutes from boutique shops, restaurants, groceries, golf, the beach, and the rail trail - and less than 2 hours from Toronto. (id:47421)
Interested in obtaining the full price history for this property? Contact us!Contact us! Our real estate professionals would be happy to provide a complete listing history with historical sold prices and dates.
Detailed Information
Bedrooms
2
Bathrooms
2
Community Features
Pets Allowed With Restrictions
Equipment
Water Heater - Gas, Water Heater
Features
Balcony, In suite Laundry
Listing Contract Date
2025-11-14
Location Description
Cross Streets: Helen St/West St N. ** Directions: Helen St to West St N.
Maintenance Fee Payment Frequency
Monthly
Maintenance Fee Type
Parking, Common Area Maintenance
Management Company
Parcel Property Management
Ownership Type
Condominium/Strata
# of Parking Spaces
1
Property Type
Single Family
Rental Equipment
Water Heater - Gas, Water Heater
Transaction Type
For sale
Views
Lake view
Zoning Description
M1
Building
Age
0 to 5 years
Amenities
Fireplace(s), Storage - Locker
Appliances
Water Heater, Dishwasher, Dryer, Microwave, Stove, Washer, Refrigerator
Basement Type
None
Cooling Type
Central air conditioning
Exterior Finish
Concrete
Fireplace Present
Yes
# of Fireplaces
1
Flooring Type
Laminate
Heating Fuel
Natural gas
Heating Type
Forced air
Type
Apartment
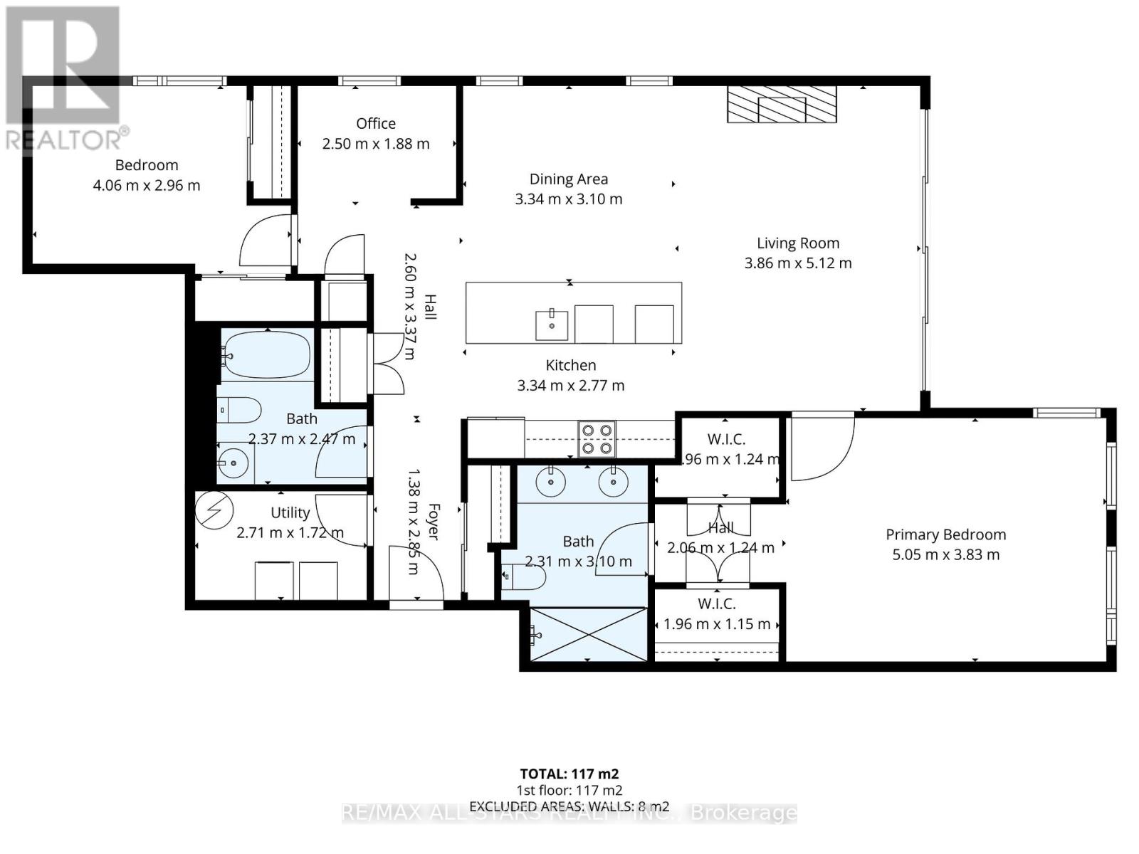
Rooms
Room
Level
Dimensions
Notes
Kitchen
Main level
3.34 m x 2.77 m
Living room
Main level
3.86 m x 5.12 m
Dining room
Main level
3.34 m x 3.1 m
Primary Bedroom
Main level
5.05 m x 3.83 m
Bedroom 2
Main level
4.06 m x 2.96 m
Foyer
Main level
1.38 m x 2.85 m
Laundry room
Main level
2.71 m x 1.72 m
Office
Main level
2.5 m x 1.88 m
Parking Spaces
Name
Spaces
Underground
Garage
Land
Landscape Features
Landscaped
Terms of Use
Please review and agree to the following terms of use to access the listing content:
REALTOR®, REALTORS®, and the REALTOR® logo are certification marks that are owned by REALTOR® Canada Inc. and licensed exclusively to The Canadian Real Estate Association (CREA). These certification marks identify real estate professionals who are members of CREA and who must abide by CREA's By-Laws, Rules, and the REALTOR® Code. The MLS® trademark and the MLS® logo are owned by CREA and identify the quality of services provided by real estate professionals who are members of CREA;
The information contained on this site is based in whole or in part on information that is provided by members of CREA, who are responsible for its accuracy. CREA reproduces and distributes this information as a service for its members and assumes no responsibility for its accuracy;
This website is operated by a brokerage or salesperson who is a member of CREA;
The listing content on this website is protected by copyright and other laws, and is intended solely for the private, non-commercial use by individuals. Any other reproduction, distribution or use of the content, in whole or in part, is specifically forbidden. The prohibited uses include commercial use, "screen scraping", "database scraping", and any other activity intended to collect, store, reorganize or manipulate data on the pages produced by or displayed on this website.
The information contained on this site is based in whole or in part on information that is provided under copyright by the Toronto Regional Real Estate Board (TRREB) or by members of The Canadian Real Estate Association (CREA), who are responsible for its accuracy. TRREB and CREA reproduce and distribute this information as a service for their members and assume no responsibility for its accuracy. All information displayed is believed to be accurate but is not guaranteed and should be independently verified. No warranties or representations of any kind are made with respect to the accuracy of such information. The information provided herein must only be used by consumers that have a bona fide interest in the purchase, sale, or lease of real estate and may not be used for any commercial purpose or any other purpose.