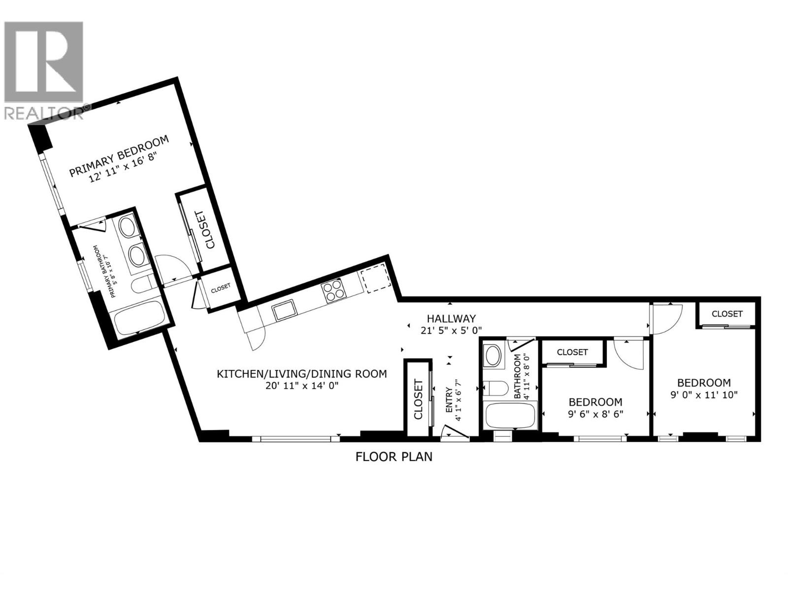
Rare main floor townhome-style condo at The Anacapri featuring a private, separate entrance and an expansive outdoor living area. This new 3 bedroom, 2 bathroom home offers approximately 880 sq ft of interior space plus a generous (600sq. ft +) private patio, creating an excellent indoor/outdoor layout. The open-concept kitchen, dining, and living area is ideal for everyday living and entertaining, while the primary bedroom includes a full ensuite. This unit includes two secured main-level garage parking stalls with bike racks, an upgraded oversized storage locker, and is roughed-in for EV charging. Centrally located close to shopping, transit, and amenities—ideal for families, downsizers, or buyers seeking townhome-style living with condo convenience. (id:47421)
Interested in obtaining the full price history for this property? Contact us!Contact us! Our real estate professionals would be happy to provide a complete listing history with historical sold prices and dates.
Detailed Information
Bedrooms
3
Bathrooms
2
Listing Contract Date
2026-01-08
Maintenance Fee Payment Frequency
Monthly
Maintenance Fee Type
Reserve Fund Contributions, Insurance, Property Management, Sewer, Waste Removal, Water
Municipal ID
032-685-076
Ownership Type
Strata
# of Parking Spaces
2
Property Type
Single Family
Storage
Storage, Locker
Transaction Type
For sale
Building
Amenities
Other, Party Room, Storage - Locker
Constructed Date
2025
Cooling Type
Heat Pump
Heating Type
Heat Pump
Stories Total
1
Type
Apartment
Utility Water
Municipal water
Rooms
Room
Level
Dimensions
Notes
Living room
Main level
' x '
Full bathroom
Main level
Measurements not available
Full ensuite bathroom
Main level
Measurements not available
Bedroom
Main level
9' x 11'10''
Bedroom
Main level
9'6'' x 8'6''
Primary Bedroom
Main level
12'11'' x 16'8''
Kitchen
Main level
20'11'' x 14'
Parking Spaces
Name
Spaces
Other
Underground
2
Land
Total Size
under 1 acre
Sewer
Municipal sewage system
Terms of Use
Please review and agree to the following terms of use to access the listing content:
REALTOR®, REALTORS®, and the REALTOR® logo are certification marks that are owned by REALTOR® Canada Inc. and licensed exclusively to The Canadian Real Estate Association (CREA). These certification marks identify real estate professionals who are members of CREA and who must abide by CREA's By-Laws, Rules, and the REALTOR® Code. The MLS® trademark and the MLS® logo are owned by CREA and identify the quality of services provided by real estate professionals who are members of CREA;
The information contained on this site is based in whole or in part on information that is provided by members of CREA, who are responsible for its accuracy. CREA reproduces and distributes this information as a service for its members and assumes no responsibility for its accuracy;
This website is operated by a brokerage or salesperson who is a member of CREA;
The listing content on this website is protected by copyright and other laws, and is intended solely for the private, non-commercial use by individuals. Any other reproduction, distribution or use of the content, in whole or in part, is specifically forbidden. The prohibited uses include commercial use, "screen scraping", "database scraping", and any other activity intended to collect, store, reorganize or manipulate data on the pages produced by or displayed on this website.
The information contained on this site is based in whole or in part on information that is provided under copyright by the Toronto Regional Real Estate Board (TRREB) or by members of The Canadian Real Estate Association (CREA), who are responsible for its accuracy. TRREB and CREA reproduce and distribute this information as a service for their members and assume no responsibility for its accuracy. All information displayed is believed to be accurate but is not guaranteed and should be independently verified. No warranties or representations of any kind are made with respect to the accuracy of such information. The information provided herein must only be used by consumers that have a bona fide interest in the purchase, sale, or lease of real estate and may not be used for any commercial purpose or any other purpose.