Welcome to this stunning modern new built half duplex located in the sought-after neighborhood of North Glenmore. This quality-build move in ready home features five bedrooms, five bathrooms, and includes 1 bedroom legal suite, offering rental income. The main home boasts of 4 bedrooms on the top floor, 2 of the bedrooms with ensuites and walk in closets. Enjoy the modern and sleek design with quartz counters, laminate flooring and a spacious kitchen with large island, perfect for entertaining! The attention to detail shows thru feature walls and quality finishes throughout the home. Beautiful professionally manicured fenced backyard and irrigated. Attached double garage with enough parking for at least four more vehicles in the driveway. This centrally located property is close to schools, shopping, the airport, UBC and an array of amenities. Additional features include built in vacuum system and comes with 2-5-10 year warranty. NO GST Payable. (id:47421)
Interested in obtaining the full price history for this property? Contact us!Contact us! Our real estate professionals would be happy to provide a complete listing history with historical sold prices and dates.
Detailed Information
Bedrooms
5
Bathrooms
5
Lot
33 x 0 ft
Amenities Nearby
Golf Nearby, Airport, Park, Recreation, Schools, Shopping
Community Features
Family Oriented
Features
Level lot, Central island
Listing Contract Date
2025-06-05
Maintenance Fee Payment Frequency
Monthly
Municipal ID
032-057-822
Ownership Type
Strata
# of Parking Spaces
6
Property Type
Single Family
Transaction Type
For sale
Building
Appliances
Refrigerator, Dishwasher, Dryer, Range - Electric, Range - Gas, Washer
Architectural Style
Contemporary
Basement Type
Full
Constructed Date
2023
Construction Style (Attachment)
Semi-detached
Cooling Type
Central air conditioning
Exterior Finish
Stucco
Fireplace Fuel
Electric
Fireplace Present
Yes
# of Fireplaces
1
Fireplace Type
Unknown
Flooring Type
Laminate
# of Half Bathrooms
1
Heating Fuel
Electric
Heating Type
Baseboard heaters, Forced air, See remarks
Roof Material
Asphalt shingle
Roof Style
Unknown
Stories Total
2.5
Type
Duplex
Utility Water
Municipal water
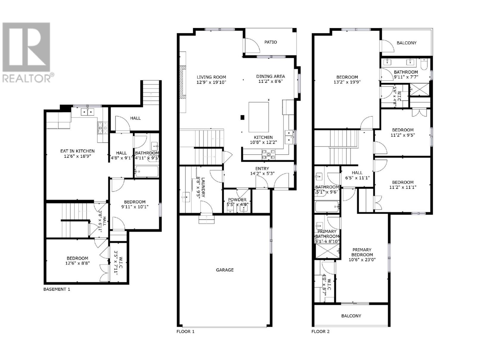
Rooms
Room
Level
Dimensions
Notes
Bedroom
Second level
10'1'' x 11'1''
Bedroom
Second level
11'1'' x 9'4''
3pc Ensuite bath
Second level
Measurements not available
Bedroom
Second level
17'9'' x 9'3''
4pc Ensuite bath
Second level
Measurements not available
Primary Bedroom
Second level
20'2'' x 13'0''
3pc Bathroom
Basement
Measurements not available
Bedroom
Basement
8'10'' x 12'8''
Storage
Basement
10'1'' x 9'10''
Laundry room
Basement
8'1'' x 9'9''
Family room
Basement
12'6'' x 10'0''
Kitchen
Basement
12'6'' x 9'2''
3pc Bathroom
Main level
Measurements not available
2pc Bathroom
Main level
Measurements not available
Laundry room
Main level
8'1'' x 9'9''
Living room
Main level
19'11'' x 13'1''
Dining nook
Main level
10'5'' x 8'5''
Kitchen
Main level
12'5'' x 10'11''
Foyer
Main level
5'3'' x 10'11''
Parking Spaces
Name
Spaces
Attached Garage
2
Land
Total Size
0.11 acres
Access Type
Easy access
Amenities
Golf Nearby, Airport, Park, Recreation, Schools, Shopping
Fence Type
Fence
Landscape Features
Landscaped, Level, Underground sprinkler
Sewer
Municipal sewage system
Size of Irregular Land
0.11
Terms of Use
Please review and agree to the following terms of use to access the listing content:
REALTOR®, REALTORS®, and the REALTOR® logo are certification marks that are owned by REALTOR® Canada Inc. and licensed exclusively to The Canadian Real Estate Association (CREA). These certification marks identify real estate professionals who are members of CREA and who must abide by CREA's By-Laws, Rules, and the REALTOR® Code. The MLS® trademark and the MLS® logo are owned by CREA and identify the quality of services provided by real estate professionals who are members of CREA;
The information contained on this site is based in whole or in part on information that is provided by members of CREA, who are responsible for its accuracy. CREA reproduces and distributes this information as a service for its members and assumes no responsibility for its accuracy;
This website is operated by a brokerage or salesperson who is a member of CREA;
The listing content on this website is protected by copyright and other laws, and is intended solely for the private, non-commercial use by individuals. Any other reproduction, distribution or use of the content, in whole or in part, is specifically forbidden. The prohibited uses include commercial use, "screen scraping", "database scraping", and any other activity intended to collect, store, reorganize or manipulate data on the pages produced by or displayed on this website.
The information contained on this site is based in whole or in part on information that is provided under copyright by the Toronto Regional Real Estate Board (TRREB) or by members of The Canadian Real Estate Association (CREA), who are responsible for its accuracy. TRREB and CREA reproduce and distribute this information as a service for their members and assume no responsibility for its accuracy. All information displayed is believed to be accurate but is not guaranteed and should be independently verified. No warranties or representations of any kind are made with respect to the accuracy of such information. The information provided herein must only be used by consumers that have a bona fide interest in the purchase, sale, or lease of real estate and may not be used for any commercial purpose or any other purpose.