$2,600,000
FOR SALE

Condo Apartment

Bedrooms: 2Bathrooms: 3
Maintenance Fees: $965.3

3434 Mckinley Beach Drive #408
Kelowna, BC V1V 0H3 | McKinley Landing

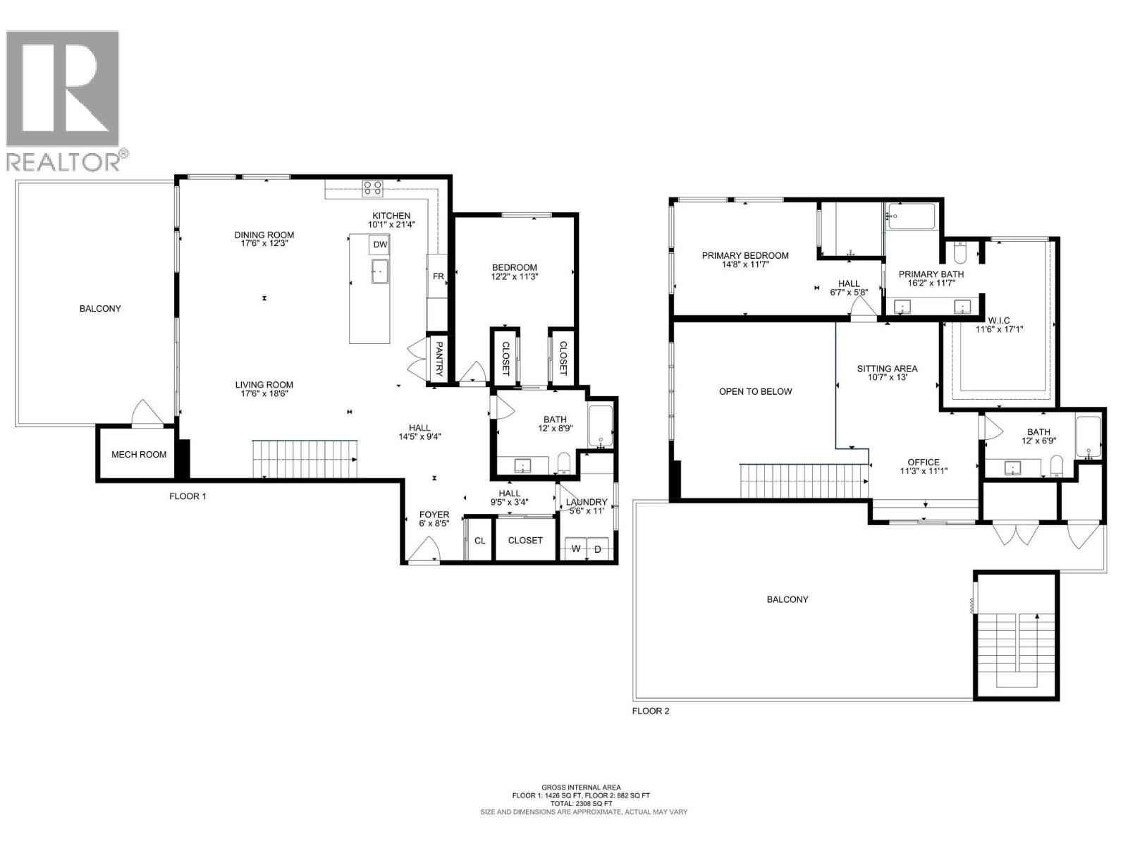
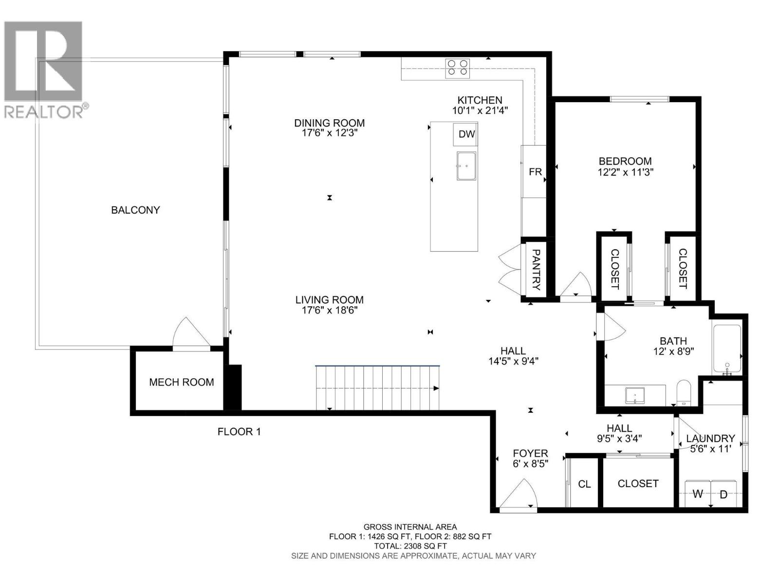
Experience luxury lakeside living in this brand-new modern penthouse in Granite III at McKinley Beach. Panoramic Okanagan Lake views set the tone the moment you walk in, framed by soaring vaulted ceilings and floor-to-ceiling windows that fill the open-concept space with natural light. The gourmet kitchen features an entertainment-sized island with wine fridge, high-gloss cabinetry, and professional-grade appliances. The great room flows onto a spacious lake-view terrace, perfect for outdoor dining, complete with built-in heaters for year-round comfort. This level also includes a generous bedroom with its own ensuite, all with heated tile floors. A dramatic two-storey tiled feature wall borders the floating glass staircase leading to the loft-style upper lounge, ideal as a reading nook, media room, or office. Voice-activated automatic blinds enhance comfort throughout. The primary suite is a private retreat, offering unobstructed lake views, a designer walk-in closet, and a stunning 5-piece marble ensuite with steam shower and heated tiles. The expansive rooftop terrace features an automated louvred roof with built-in fans, grilling area, hot-tub rough-in, and terrace heaters, creating an unmatched outdoor oasis. Steps from the sandy beach, marina, trails, parks, tennis courts, and outdoor gym, Granite residents also enjoy a sauna and outdoor pool. Three parking stalls sit conveniently next to the elevator. This penthouse delivers Okanagan luxury at its finest. (id:47421)
Share
Listed By Oakwyn Realty Okanagan-Letnick Estates
Data Provided By Association of Interior REALTORS®
MLS® Listing Number 10369712
Last Updated Nov 24, 2025
Property Summary
Property Type Condo Apartment

More like this:
Maintenance Fees $965.3
Neighbourhood McKinley Landing
Community Granite
Price History

Interested in obtaining the full price history for this property?
Contact us!Contact us! Our real estate professionals would be happy to provide a complete listing history with historical sold prices and dates.

Detailed Information
Bedrooms 2
Bathrooms 3
Amenities Nearby Golf Nearby, Park
Features Central island, Two Balconies
Listing Contract Date 2025-11-24
Maintenance Fee Payment Frequency Monthly
Municipal ID 031-911-099
Ownership Type Strata
# of Parking Spaces 3
Property Type Single Family
Storage Storage, Locker
Transaction Type For sale
Views Lake view, Mountain view, Valley view, View (panoramic)
Waterfront Type Other
Building
Appliances Refrigerator, Dishwasher, Dryer, Range - Electric, Microwave, Washer, Oven - Built-In
Constructed Date 2023
Cooling Type Central air conditioning
Heating Fuel Electric
Heating Type Baseboard heaters, Forced air
Roof Material Other
Roof Style Unknown
Stories Total 2
Type Apartment
Utility Water Irrigation District
Rooms
Room Level Dimensions Notes
OtherSecond level17'1'' x 11'6''
Primary BedroomSecond level11'7'' x 14'8''
5pc Ensuite bathSecond level11'7'' x 16'2''
4pc BathroomSecond level6'9'' x 12'0''
Dining roomMain level17'6'' x 12'3''
Living roomMain level18'6'' x 17'6''
Laundry roomMain level11' x 5'6''
KitchenMain level21'4'' x 11'1''
BedroomMain level11'3'' x 12'2''
4pc BathroomMain level8'9'' x 12'0''
Parking Spaces
Name Spaces
Parkade
Land
Total Size under 1 acre
Access Type Easy access
Amenities Golf Nearby, Park
Landscape Features Landscaped
Sewer Municipal sewage system

The information contained on this site is based in whole or in part on information that is provided under copyright by the Toronto Regional Real Estate Board (TRREB) or by members of The Canadian Real Estate Association (CREA), who are responsible for its accuracy. TRREB and CREA reproduce and distribute this information as a service for their members and assume no responsibility for its accuracy. All information displayed is believed to be accurate but is not guaranteed and should be independently verified. No warranties or representations of any kind are made with respect to the accuracy of such information.
The information provided herein must only be used by consumers that have a bona fide interest in the purchase, sale, or lease of real estate and may not be used for any commercial purpose or any other purpose.

FREE ESTIMATES ARE COMING

Reserve Your Spot To Be Notified
or

Coming soon to select cities
in North America

(We'll never share your details)