For more information click the brochure button. Beautiful property in the Similkameen Valley near Keremeos. This large timber-frame home features a metal roof, gas heat, heat pump, solar hot water, and a 30-panel solar grid with meter connection. Thermostat and greenhouse systems are accessible by phone. Ground-level entry leads to a grand foyer and an open-concept kitchen perfect for entertaining, with stainless steel appliances including a 36"" six-burner gas stove. Upstairs offers vaulted ceilings with tile and hardwood floors. Potential for a main floor suite or B&B with minimal changes—ideal for multi-generational living. Large garage/shop includes a rooftop patio. Greenhouse grows tropical fruit and is fully automated. Room potentially for a second home or carriage house. Property has 7 acres of producing cherries, creek with concrete bridge, and two road frontages with water/power access. Irrigation and domestic water supplied by the Irrigation District. Enjoy horseback riding, fishing, and hiking without leaving the area. Quiet, dry climate with minimal snowfall and mild falls. Snow melts quickly on the paved driveway. Eligible for crop insurance, AgriInvest, and replant programs. Includes tractor, flail mower, tiller, pallet forks, man lift, and totes. A one-of-a-kind property! (id:47421)
Interested in obtaining the full price history for this property? Contact us!Contact us! Our real estate professionals would be happy to provide a complete listing history with historical sold prices and dates.
Detailed Information
Bedrooms
3
Bathrooms
3
Amenities Nearby
Golf Nearby, Airport, Recreation, Schools, Shopping, Ski area
Community Features
Family Oriented, Rural Setting
Types of Crops
Fruits
Farm Type
Unknown
Features
Level lot, Private setting, Treed, Central island, Jacuzzi bath-tub, Three Balconies
Listing Contract Date
2025-07-07
Municipal ID
008-612-382
Ownership Type
Freehold
# of Parking Spaces
17
Property Type
Agriculture
Storage
Storage Shed
Transaction Type
For sale
Views
Unknown, River view, Mountain view, Valley view
Waterfront Type
Waterfront on creek
Building
Appliances
Refrigerator, Dishwasher, Dryer, Oven - gas, Range - Gas, Hood Fan, Washer, Water purifier, Water softener
Constructed Date
2010
Cooling Type
Central air conditioning, Heat Pump
Exterior Finish
Stone
Fire Protection
Sprinkler System-Fire, Controlled entry, Smoke Detector Only
Fireplace Fuel
Gas,Wood
Fireplace Present
Yes
# of Fireplaces
2
Fireplace Type
Unknown,Conventional
Flooring Type
Ceramic Tile, Hardwood, Laminate, Linoleum
Heating Fuel
Other
Heating Type
Forced air, Heat Pump, See remarks
Roof Material
Metal
Roof Style
Unknown
Stories Total
2
Type
Other
Utility Water
Irrigation District
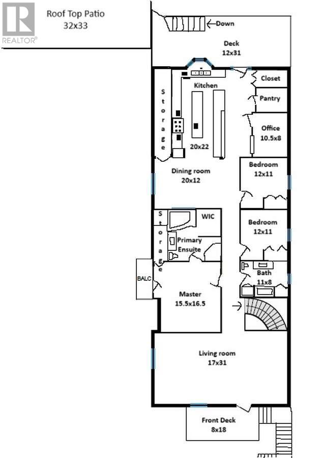
Rooms
Room
Level
Dimensions
Notes
Kitchen
Second level
20'0'' x 22'0''
Pantry
Second level
7'6'' x 5'6''
Office
Second level
10'6'' x 8'0''
Dining room
Second level
20'0'' x 12'0''
Bedroom
Second level
12'0'' x 11'0''
Bedroom
Second level
12'0'' x 11'0''
3pc Bathroom
Second level
11'0'' x 8'0''
Primary Bedroom
Second level
15'6'' x 16'5''
4pc Ensuite bath
Second level
14'0'' x 12'0''
Other
Second level
6'0'' x 6'0''
Living room
Second level
17'0'' x 31'0''
Library
Main level
16'0'' x 10'0''
Foyer
Main level
16'0'' x 31'0''
3pc Bathroom
Main level
9'0'' x 8'0''
Living room
Main level
21'0'' x 22'0''
Hobby room
Main level
21'0'' x 22'0''
Other
Main level
9'6'' x 21'0''
Parking Spaces
Name
Spaces
See Remarks
Additional Parking
Detached Garage
10
Oversize
Stall
Utilities
Type
Description
Cable
Available
Electricity
Available
Natural Gas
Available
Telephone
Available
Sewer
Available
Water
Available
Land
Total Size
9.61 acres
Access Type
Easy access
Acreage
Yes
Amenities
Golf Nearby, Airport, Recreation, Schools, Shopping, Ski area
Fence Type
Fence, Page Wire
Landscape Features
Level
Size of Irregular Land
9.61
Surface Water
Creeks
Terms of Use
Please review and agree to the following terms of use to access the listing content:
REALTOR®, REALTORS®, and the REALTOR® logo are certification marks that are owned by REALTOR® Canada Inc. and licensed exclusively to The Canadian Real Estate Association (CREA). These certification marks identify real estate professionals who are members of CREA and who must abide by CREA's By-Laws, Rules, and the REALTOR® Code. The MLS® trademark and the MLS® logo are owned by CREA and identify the quality of services provided by real estate professionals who are members of CREA;
The information contained on this site is based in whole or in part on information that is provided by members of CREA, who are responsible for its accuracy. CREA reproduces and distributes this information as a service for its members and assumes no responsibility for its accuracy;
This website is operated by a brokerage or salesperson who is a member of CREA;
The listing content on this website is protected by copyright and other laws, and is intended solely for the private, non-commercial use by individuals. Any other reproduction, distribution or use of the content, in whole or in part, is specifically forbidden. The prohibited uses include commercial use, "screen scraping", "database scraping", and any other activity intended to collect, store, reorganize or manipulate data on the pages produced by or displayed on this website.
The information contained on this site is based in whole or in part on information that is provided under copyright by the Toronto Regional Real Estate Board (TRREB) or by members of The Canadian Real Estate Association (CREA), who are responsible for its accuracy. TRREB and CREA reproduce and distribute this information as a service for their members and assume no responsibility for its accuracy. All information displayed is believed to be accurate but is not guaranteed and should be independently verified. No warranties or representations of any kind are made with respect to the accuracy of such information. The information provided herein must only be used by consumers that have a bona fide interest in the purchase, sale, or lease of real estate and may not be used for any commercial purpose or any other purpose.