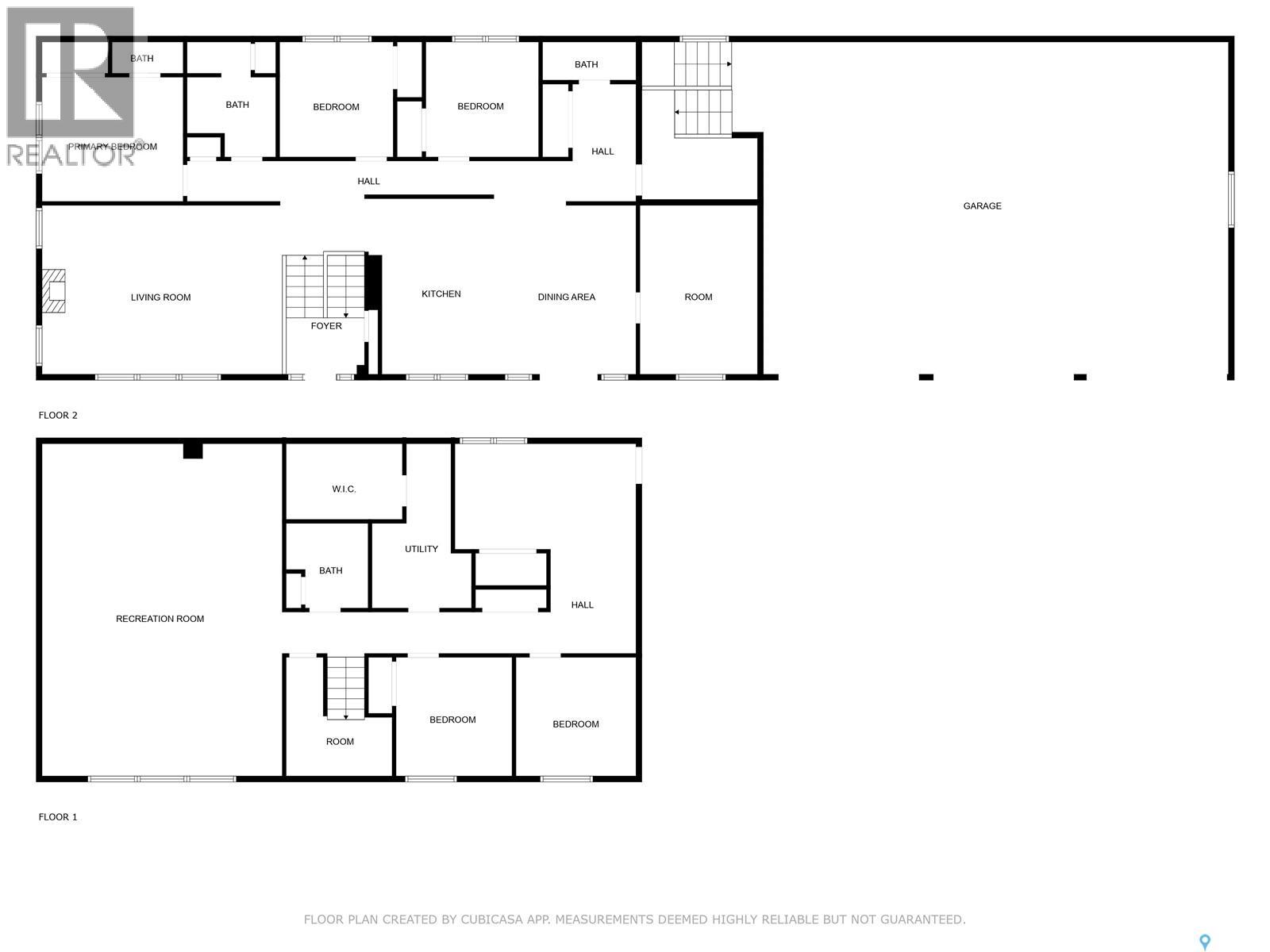
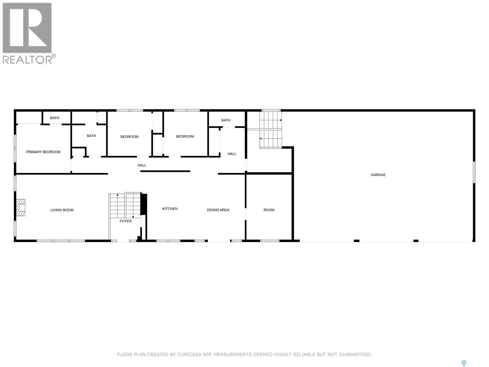
Welcome to 100 Bartlett Avenue in the lovely town of Kinistino! This move-in ready bi-level family home shows pride of ownership throughout, and has space to spare! Park in the triple attached garage or triple asphalt driveway- pause to admire the established and low-maintenance lawn space- and make your way inside! The upper level features a spacious sitting room with large windows and a new gas fireplace finished with real stone– relax and enjoy the view of the schoolyard park just across the street! Also upstairs is the generous kitchen with new countertops and fixtures plus solid wood cabinetry. The attached dining room sports new garden doors opening onto the upgraded composite raised deck, complete with no-maintenance aluminum rails. You’ll also find a bonus room, three large bedrooms, and a 4-pc bathroom plus a half bath and an ensuite upstairs. The lower level offers just as much real estate, open and bright throughout, with a large living area, a newly updated 3-pc bath, and two more finished bedrooms. You can also access the garage from both levels of the house for easy access. Upgrades have been invested in throughout the home, with new windows in 2019/20, a new water heater in 2021, and even more to discover–come and see if this could be your new home! (id:47421)
Interested in obtaining the full price history for this property? Contact us!Contact us! Our real estate professionals would be happy to provide a complete listing history with historical sold prices and dates.
Detailed Information
Bedrooms
5
Bathrooms
4
Lot
50 x 0 ft
Features
Treed
Listing Contract Date
2025-08-29
Location Description
Lot 11-Blk/Par 6-Plan P44194 Ext 0
Ownership Type
Freehold
Property Type
Single Family
Structures
Deck
Transaction Type
For sale
Building
Appliances
Washer, Refrigerator, Dishwasher, Dryer, Oven - Built-In, Window Coverings, Garage door opener remote(s), Hood Fan, Central Vacuum - Roughed In, Stove
Architectural Style
Bi-level
Basement Development
Finished
Basement Type
Full (Finished)
Constructed Date
1983
Construction Style (Attachment)
Detached
Cooling Type
Central air conditioning, Air exchanger
Fireplace Fuel
Gas
Fireplace Present
Yes
Fireplace Type
Conventional
Heating Fuel
Natural gas
Heating Type
Forced air
Type
House
Rooms
Room
Level
Dimensions
Notes
Bonus Room
Basement
9'5" x 8'5"
Living room
Basement
28'1 x 19'8"
3pc Bathroom
Basement
7'0" x 5'0"
Bedroom
Basement
9'11" x 9'10"
Other
Basement
6'11" x 6'8"
Bedroom
Basement
9'11" x 10'2"
Bonus Room
Basement
17'8" x 7'2"
Kitchen/Dining room
Main level
27 ft x 18 ft
Bonus Room
Main level
14'4" x 9'6"
Kitchen
Main level
12'6" x 6'10"
Living room
Main level
14'6" x 19'5"
Primary Bedroom
Main level
10'10" x 11'0"
2pc Ensuite bath
Main level
2'5" x 5'5"
4pc Bathroom
Main level
9'6" x 4'8"
Bedroom
Main level
9'7" x 9'9"
Bedroom
Main level
9'6" x 9'9"
Foyer
Main level
10'5" x 4'9"
2pc Bathroom
Main level
2'11" x 7'0"
Other
Main level
5'2" x 7'4"
Parking Spaces
Name
Spaces
Attached Garage
Parking Space(s)
6
Land
Total Size
6000 square feet
Landscape Features
Lawn, Underground sprinkler
Size of Irregular Land
6000.00
Terms of Use
Please review and agree to the following terms of use to access the listing content:
REALTOR®, REALTORS®, and the REALTOR® logo are certification marks that are owned by REALTOR® Canada Inc. and licensed exclusively to The Canadian Real Estate Association (CREA). These certification marks identify real estate professionals who are members of CREA and who must abide by CREA's By-Laws, Rules, and the REALTOR® Code. The MLS® trademark and the MLS® logo are owned by CREA and identify the quality of services provided by real estate professionals who are members of CREA;
The information contained on this site is based in whole or in part on information that is provided by members of CREA, who are responsible for its accuracy. CREA reproduces and distributes this information as a service for its members and assumes no responsibility for its accuracy;
This website is operated by a brokerage or salesperson who is a member of CREA;
The listing content on this website is protected by copyright and other laws, and is intended solely for the private, non-commercial use by individuals. Any other reproduction, distribution or use of the content, in whole or in part, is specifically forbidden. The prohibited uses include commercial use, "screen scraping", "database scraping", and any other activity intended to collect, store, reorganize or manipulate data on the pages produced by or displayed on this website.
The information contained on this site is based in whole or in part on information that is provided under copyright by the Toronto Regional Real Estate Board (TRREB) or by members of The Canadian Real Estate Association (CREA), who are responsible for its accuracy. TRREB and CREA reproduce and distribute this information as a service for their members and assume no responsibility for its accuracy. All information displayed is believed to be accurate but is not guaranteed and should be independently verified. No warranties or representations of any kind are made with respect to the accuracy of such information. The information provided herein must only be used by consumers that have a bona fide interest in the purchase, sale, or lease of real estate and may not be used for any commercial purpose or any other purpose.