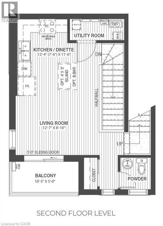
Open House Saturdays 1-4PM Sales Centre is located at 35 Trillium Drive Unit 1 (lower level) This limited-time pre-construction offer includes FREE ASSIGNMENT / NO OCCUPANCY FEE / ZERO DEVELOPMENT LEVY/ NO TARION ENROLMENT FEE. Expected occupancy closing for the complex is between late 2026 and late 2027, making this an excellent opportunity for first-time home buyers and investors looking to enter the market or expand their portfolio. This brand-new stacked NET ZERO READY condominium community located in a highly desirable area , offers LOW condo fees and outstanding convenience. The Carlyle A is 2 floor layout with a large main level offering an open concept layout with a powder room, living room with balcony access and L shaped kitchen. Second floor offers a large primary suite with ensuite bath and second balcony, additional bedroom, laundry room and main 4pc bath. Enjoy easy access to Highway 401, walking distance to schools, and proximity to Conestoga College, shopping, dining, and the new RBJ Schlegel Park and sports complex. Surrounded by Brigadoon Woods, the community offers surface parking and transit stops right outside the complex. Price reflects full 13% HST Rebate. All offers to be submitted at full purchase price inclusive of HST. Any HST Rebate is subject to legislative approval and Buyer qualification. If HST Rebate is unavailable or Buyer does not qualify, Buyer shall be responsible for the full amount of HST payable. Terms apply. (id:47421)
Interested in obtaining the full price history for this property? Contact us!Contact us! Our real estate professionals would be happy to provide a complete listing history with historical sold prices and dates.
Detailed Information
Bedrooms
2
Bathrooms
3
Amenities Nearby
Schools
Community Features
School Bus
Features
Balcony
Listing Contract Date
2026-01-13
Location Description
Huron Road to Strasburg Road
Maintenance Fee Payment Frequency
Monthly
Maintenance Fee Type
Insurance, Landscaping, Property Management
Ownership Type
Condominium
# of Parking Spaces
1
Property Type
Single Family
Transaction Type
For sale
Zoning Description
RES-6
Building
Appliances
Microwave Built-in
Basement Type
None
Construction Style (Attachment)
Attached
Cooling Type
None
Exterior Finish
Aluminum siding, Brick, Vinyl siding
Foundation Type
Poured Concrete
# of Half Bathrooms
1
Heating Type
Forced air
Type
Row / Townhouse
Utility Water
Municipal water
Rooms
Room
Level
Dimensions
Notes
2pc Bathroom
Second level
Measurements not available
Living room
Second level
12'2'' x 8'9''
Kitchen
Second level
12'2'' x 11'6''
Laundry room
Third level
Measurements not available
Full bathroom
Third level
Measurements not available
4pc Bathroom
Third level
Measurements not available
Bedroom
Third level
10'1'' x 8'2''
Primary Bedroom
Third level
10'3'' x 12'5''
Parking Spaces
Name
Spaces
Open
Land
Total Size
under 1/2 acre
Access Type
Highway Nearby
Amenities
Schools
Sewer
Municipal sewage system
Terms of Use
Please review and agree to the following terms of use to access the listing content:
REALTOR®, REALTORS®, and the REALTOR® logo are certification marks that are owned by REALTOR® Canada Inc. and licensed exclusively to The Canadian Real Estate Association (CREA). These certification marks identify real estate professionals who are members of CREA and who must abide by CREA's By-Laws, Rules, and the REALTOR® Code. The MLS® trademark and the MLS® logo are owned by CREA and identify the quality of services provided by real estate professionals who are members of CREA;
The information contained on this site is based in whole or in part on information that is provided by members of CREA, who are responsible for its accuracy. CREA reproduces and distributes this information as a service for its members and assumes no responsibility for its accuracy;
This website is operated by a brokerage or salesperson who is a member of CREA;
The listing content on this website is protected by copyright and other laws, and is intended solely for the private, non-commercial use by individuals. Any other reproduction, distribution or use of the content, in whole or in part, is specifically forbidden. The prohibited uses include commercial use, "screen scraping", "database scraping", and any other activity intended to collect, store, reorganize or manipulate data on the pages produced by or displayed on this website.
The information contained on this site is based in whole or in part on information that is provided under copyright by the Toronto Regional Real Estate Board (TRREB) or by members of The Canadian Real Estate Association (CREA), who are responsible for its accuracy. TRREB and CREA reproduce and distribute this information as a service for their members and assume no responsibility for its accuracy. All information displayed is believed to be accurate but is not guaranteed and should be independently verified. No warranties or representations of any kind are made with respect to the accuracy of such information. The information provided herein must only be used by consumers that have a bona fide interest in the purchase, sale, or lease of real estate and may not be used for any commercial purpose or any other purpose.