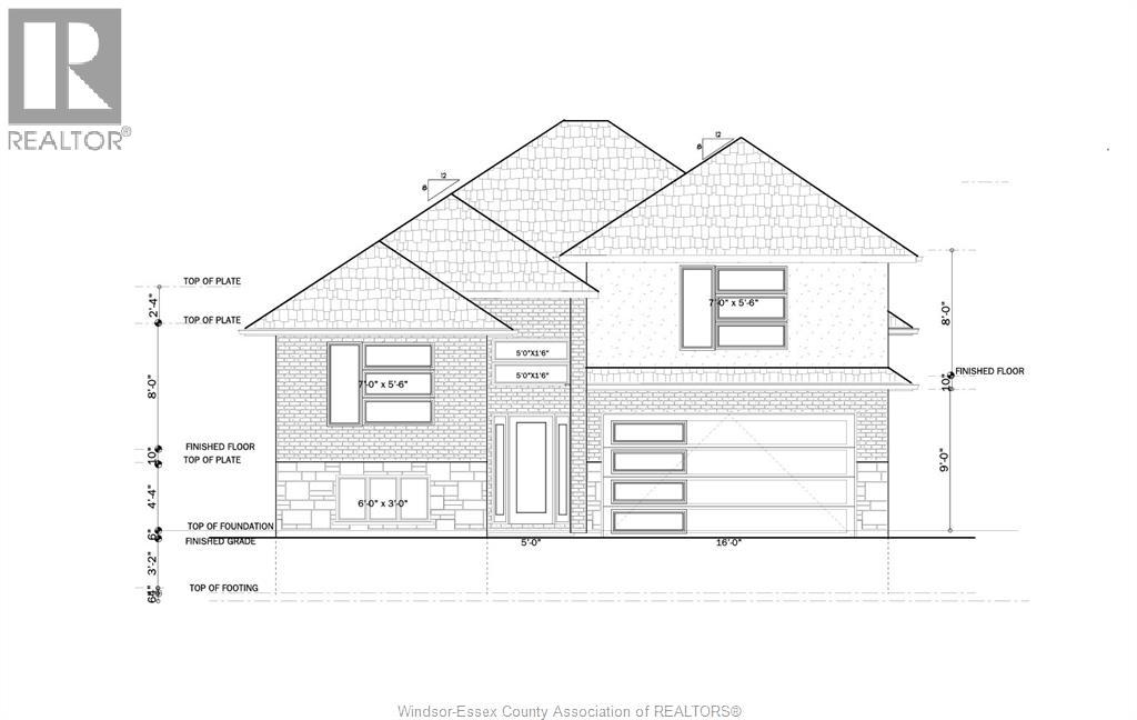
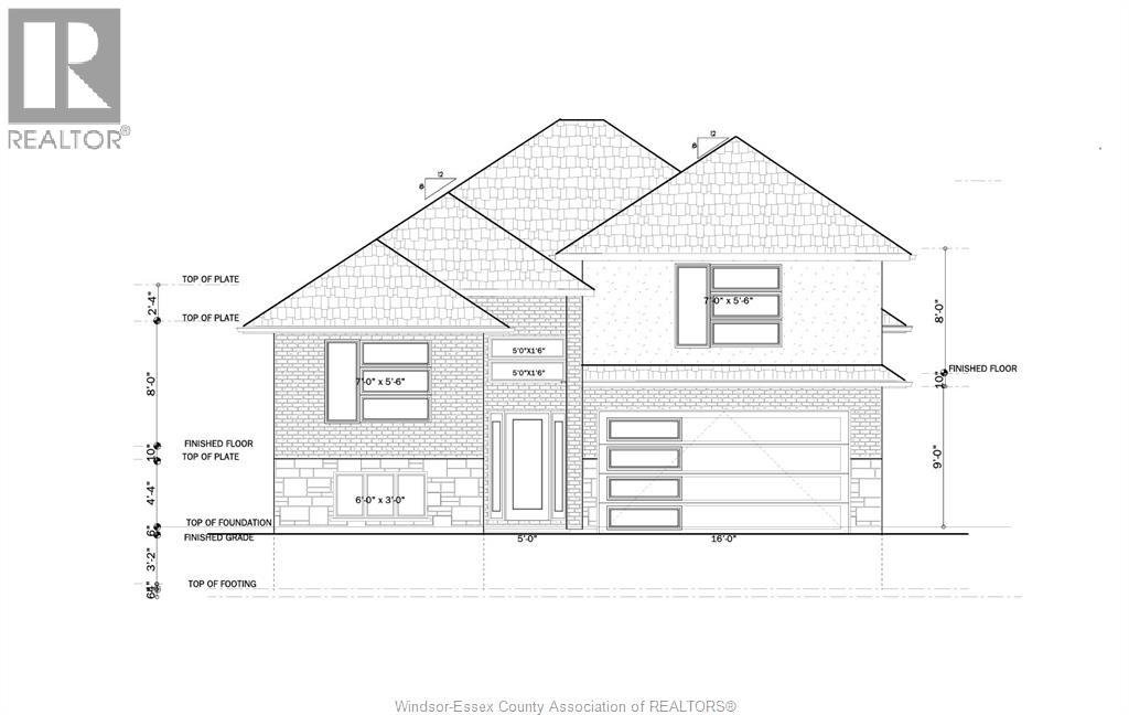
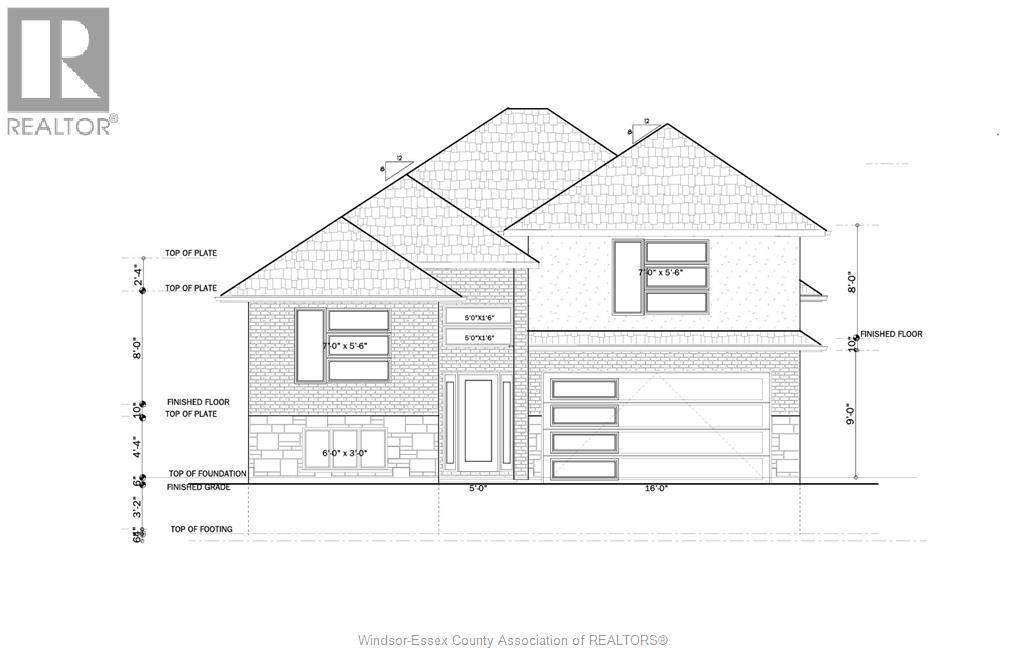
Brand-new raised ranch w/ bonus room in desirable LaSalle. Featuring 2+2 bedrooms, 3 full baths, open-concept main floor with quality finishes, and primary bedroom w/ ensuite. Fully finished lower level includes second kitchen, grade entrance, additional living space & laundry—ideal for in-law suite or rental potential. Double attached garage, concrete drive, brick exterior, on a 56 x 100 ft lot close to parks, schools & amenities. Vacant, possession 45–60 days. (id:47421)
Interested in obtaining the full price history for this property? Contact us!Contact us! Our real estate professionals would be happy to provide a complete listing history with historical sold prices and dates.
Detailed Information
Bedrooms
3+2
Bathrooms
3
Features
Concrete Driveway, Finished Driveway, Front Driveway
Ownership Type
Freehold
Property Type
Single Family
Transaction Type
For sale
Zoning Description
RES
Building
Appliances
Dishwasher, Dryer, Washer, Two stoves, Two Refrigerators
Architectural Style
Raised Ranch w/ Bonus Room
Constructed Date
2025
Construction Style (Attachment)
Detached
Cooling Type
Central air conditioning
Exterior Finish
Brick
Flooring Type
Ceramic/Porcelain, Hardwood
Foundation Type
Concrete
Heating Fuel
Natural gas
Heating Type
Forced air, Furnace
Total Finished Area
2100 sqft
Type
House
Rooms
Room
Level
Dimensions
Notes
4pc Bathroom
Lower level
Measurements not available
Dining room
Lower level
Measurements not available
Laundry room
Lower level
Measurements not available
Kitchen
Lower level
Measurements not available
Living room
Lower level
Measurements not available
Bedroom
Lower level
Measurements not available
Bedroom
Lower level
Measurements not available
4pc Bathroom
Main level
Measurements not available
4pc Bathroom
Main level
Measurements not available
Primary Bedroom
Main level
Measurements not available
Bedroom
Main level
Measurements not available
Bedroom
Main level
Measurements not available
Kitchen
Main level
Measurements not available
Laundry room
Main level
Measurements not available
Dining room
Main level
Measurements not available
Living room
Main level
Measurements not available
Parking Spaces
Name
Spaces
Attached Garage
Garage
Land
Total Size
56 X 100 FT
Size of Irregular Land
56 X 100 FT
Terms of Use
Please review and agree to the following terms of use to access the listing content:
REALTOR®, REALTORS®, and the REALTOR® logo are certification marks that are owned by REALTOR® Canada Inc. and licensed exclusively to The Canadian Real Estate Association (CREA). These certification marks identify real estate professionals who are members of CREA and who must abide by CREA's By-Laws, Rules, and the REALTOR® Code. The MLS® trademark and the MLS® logo are owned by CREA and identify the quality of services provided by real estate professionals who are members of CREA;
The information contained on this site is based in whole or in part on information that is provided by members of CREA, who are responsible for its accuracy. CREA reproduces and distributes this information as a service for its members and assumes no responsibility for its accuracy;
This website is operated by a brokerage or salesperson who is a member of CREA;
The listing content on this website is protected by copyright and other laws, and is intended solely for the private, non-commercial use by individuals. Any other reproduction, distribution or use of the content, in whole or in part, is specifically forbidden. The prohibited uses include commercial use, "screen scraping", "database scraping", and any other activity intended to collect, store, reorganize or manipulate data on the pages produced by or displayed on this website.
The information contained on this site is based in whole or in part on information that is provided under copyright by the Toronto Regional Real Estate Board (TRREB) or by members of The Canadian Real Estate Association (CREA), who are responsible for its accuracy. TRREB and CREA reproduce and distribute this information as a service for their members and assume no responsibility for its accuracy. All information displayed is believed to be accurate but is not guaranteed and should be independently verified. No warranties or representations of any kind are made with respect to the accuracy of such information. The information provided herein must only be used by consumers that have a bona fide interest in the purchase, sale, or lease of real estate and may not be used for any commercial purpose or any other purpose.