Welcome to #24 - 19950 McCarthy Road, Lake Country! Stunning six-bedroom single-family residence located in a brand-new subdivision of 27 homes. Blending modern design with exceptional functionality, this bright, open-concept home is ideal for families or investors alike. The main home features four spacious bedrooms, including a luxurious master suite with a private en-suite and walk-in closet. The living area offers a cozy gas fireplace with striking feature walls, while the kitchen is equipped with sleek stainless steel appliances. Throughout the home, you’ll find quality window coverings. Convenience is key, with a main floor laundry room and a two-piece powder room. Additionally, this home includes a two-bedroom legal suite, fully outfitted with stainless steel appliances, a washer, dryer, and window coverings—perfect for generating rental income or accommodating extended family. Other highlights include a built-in vacuum system, a fully landscaped and fenced yard, an underground sprinkler system, and a heated two-car garage with a 220-volt EV charger. The exposed concrete driveway offers parking for at least two more cars. Ideally located close to schools, public transportation, shopping, restaurants, the airport, and the lake, this exceptional property offers everything you need to enjoy life in Lake Country. Don’t miss this opportunity! Buyers are advised the listing price is subject to GST. (id:47421)
Interested in obtaining the full price history for this property? Contact us!Contact us! Our real estate professionals would be happy to provide a complete listing history with historical sold prices and dates.
Detailed Information
Bedrooms
6
Bathrooms
4
Community Features
Pets Allowed
Features
Central island, Balcony
Listing Contract Date
2026-01-16
Maintenance Fee Payment Frequency
Monthly
Municipal ID
032-010-893
Ownership Type
Bare Land Condo/Strata
# of Parking Spaces
4
Property Type
Single Family
Transaction Type
For sale
Building
Appliances
Refrigerator, Dishwasher, Range - Electric, Microwave, Washer & Dryer
Architectural Style
Contemporary
Constructed Date
2024
Construction Style (Attachment)
Detached
Cooling Type
Central air conditioning
Exterior Finish
Other, Stucco
Fire Protection
Smoke Detector Only
Fireplace Fuel
Gas
Fireplace Present
Yes
# of Fireplaces
1
Fireplace Type
Unknown
Flooring Type
Carpeted, Laminate, Tile
# of Half Bathrooms
1
Heating Fuel
Electric
Heating Type
Baseboard heaters, Forced air, Heat Pump
Roof Material
Asphalt shingle
Roof Style
Unknown
Stories Total
2
Type
House
Utility Water
Municipal water
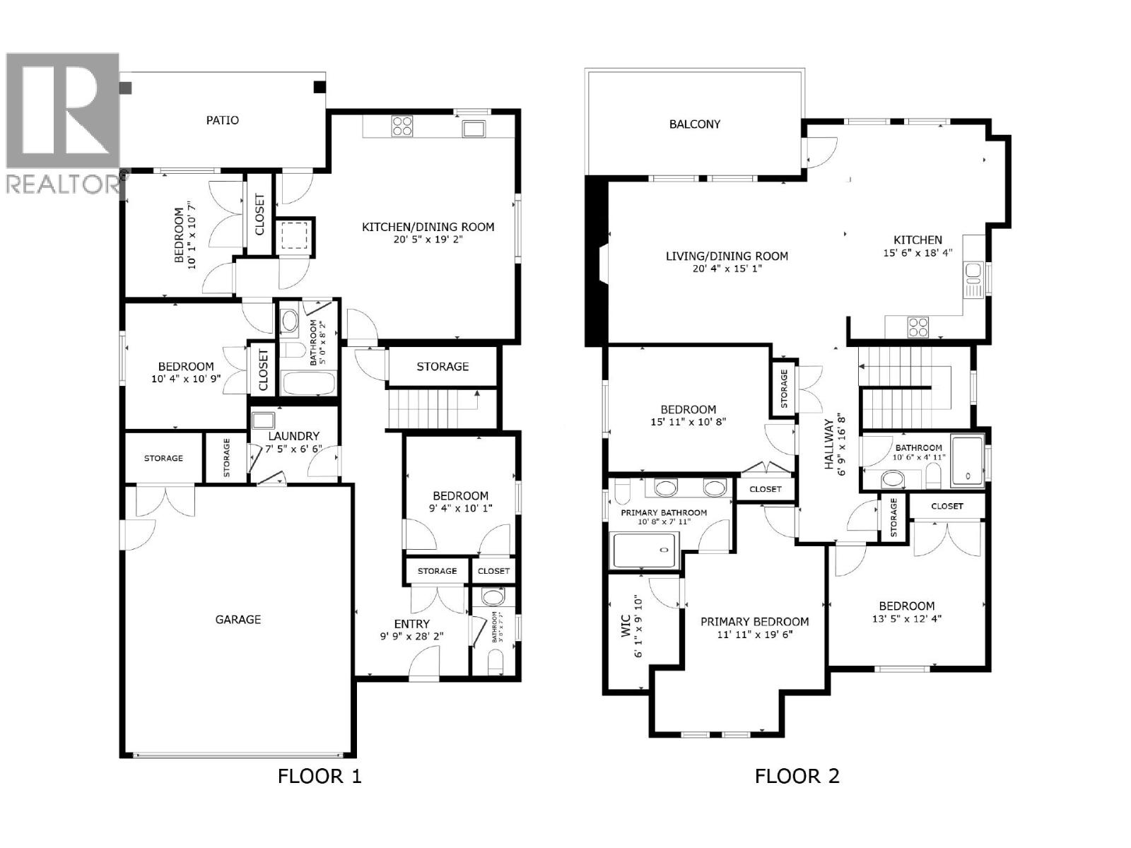
Rooms
Room
Level
Dimensions
Notes
2pc Bathroom
Lower level
Measurements not available
Bedroom
Lower level
10' x 9'1''
Laundry room
Lower level
7'3'' x 6'5''
Foyer
Lower level
9'6'' x 7'8''
4pc Ensuite bath
Main level
Measurements not available
3pc Bathroom
Main level
Measurements not available
Primary Bedroom
Main level
15'10'' x 12'3''
Bedroom
Main level
13'7'' x 11'
Bedroom
Main level
13'11'' x 10'11''
Kitchen
Main level
13'7'' x 9'9''
Dining room
Main level
15'6'' x 10'7''
Living room
Main level
17'3'' x 14'1''
Full bathroom
Additional Accommodation
Measurements not available
Bedroom
Additional Accommodation
10'8'' x 10'3''
Bedroom
Additional Accommodation
10'6'' x 10'
Kitchen
Additional Accommodation
15'7'' x 8'9''
Living room
Additional Accommodation
16' x 9'7''
Parking Spaces
Name
Spaces
Additional Parking
Attached Garage
2
Land
Total Size
0.1 acres
Fence Type
Fence
Landscape Features
Underground sprinkler
Sewer
Municipal sewage system
Size of Irregular Land
0.1
Terms of Use
Please review and agree to the following terms of use to access the listing content:
REALTOR®, REALTORS®, and the REALTOR® logo are certification marks that are owned by REALTOR® Canada Inc. and licensed exclusively to The Canadian Real Estate Association (CREA). These certification marks identify real estate professionals who are members of CREA and who must abide by CREA's By-Laws, Rules, and the REALTOR® Code. The MLS® trademark and the MLS® logo are owned by CREA and identify the quality of services provided by real estate professionals who are members of CREA;
The information contained on this site is based in whole or in part on information that is provided by members of CREA, who are responsible for its accuracy. CREA reproduces and distributes this information as a service for its members and assumes no responsibility for its accuracy;
This website is operated by a brokerage or salesperson who is a member of CREA;
The listing content on this website is protected by copyright and other laws, and is intended solely for the private, non-commercial use by individuals. Any other reproduction, distribution or use of the content, in whole or in part, is specifically forbidden. The prohibited uses include commercial use, "screen scraping", "database scraping", and any other activity intended to collect, store, reorganize or manipulate data on the pages produced by or displayed on this website.
The information contained on this site is based in whole or in part on information that is provided under copyright by the Toronto Regional Real Estate Board (TRREB) or by members of The Canadian Real Estate Association (CREA), who are responsible for its accuracy. TRREB and CREA reproduce and distribute this information as a service for their members and assume no responsibility for its accuracy. All information displayed is believed to be accurate but is not guaranteed and should be independently verified. No warranties or representations of any kind are made with respect to the accuracy of such information. The information provided herein must only be used by consumers that have a bona fide interest in the purchase, sale, or lease of real estate and may not be used for any commercial purpose or any other purpose.