NEW PRICE! NEW SEPTIC TANK! Are you looking for a move-in ready affordable home close to the city? 18 Martin Lake Drive is it! This beautiful 4 bedroom, 2 full bathroom home sits on a large country lot and is ready for new owners. Just 12 minutes from Dartmouth and 20 minutes from Halifax, you can be anywhere quickly from your spacious home and lot. The lot has a great mix of plenty of flat yard as well as some natural treed space. So, tons of space for country living while being close to the city and all amenities. Entry is by way of a beautiful set of stairs and deck leading into the main level which is bathed in natural light and features attractive hardwood flooring throughout. The open concept kitchen and dining area flow nicely to a large, bright living room. There is also a bedroom, full bathroom and a convenient spacious laundry room on this level. Decks on the front and off the back offer great opportunity for outdoor living space on the main floor. Upstairs, there are two more bedrooms and another full bathroom. The large primary suite has an ample sized walk-in closet. The lower level adds even more finished living space with a walk-out at grade. Families will enjoy this level as it features a large rec room, 2nd kitchen, a 4th bedroom, a workshop and plenty of storage. Or, the walk-out and kitchen are a great start to a secondary or in-law suite. How would you use this space? This home is away from the main road, but close enough to enjoy close proximity to local amenities like: the Orenda Canoe Club, the community centre, sports courts and fields, daycares, Shopping, Lake Echo Beach and Porters Lake Provincial Park. Be sure to view the 3D virtual tour and book a private viewing today! (id:47421)
Interested in obtaining the full price history for this property? Contact us!Contact us! Our real estate professionals would be happy to provide a complete listing history with historical sold prices and dates.
Detailed Information
Bedrooms
3+1
Bathrooms
2
Amenities Nearby
Park, Playground, Shopping, Place of Worship, Beach
Community Features
Recreational Facilities, School Bus
Listing Contract Date
2025-09-04
Location Description
Highway 107 to Mineville Road to Hwy 7 to to Martin Lake Drive
Municipal ID
40163859
Ownership Type
Freehold
Property Type
Single Family
Structures
Shed
Transaction Type
For sale
Building
Appliances
Oven, Dishwasher, Dryer, Washer, Refrigerator
Constructed Date
1982
Construction Style (Attachment)
Detached
Exterior Finish
Wood siding
Flooring Type
Carpeted, Hardwood, Laminate, Tile
Foundation Type
Concrete Block
Stories Total
2
Total Finished Area
2320 sqft
Type
House
Utility Water
Drilled Well
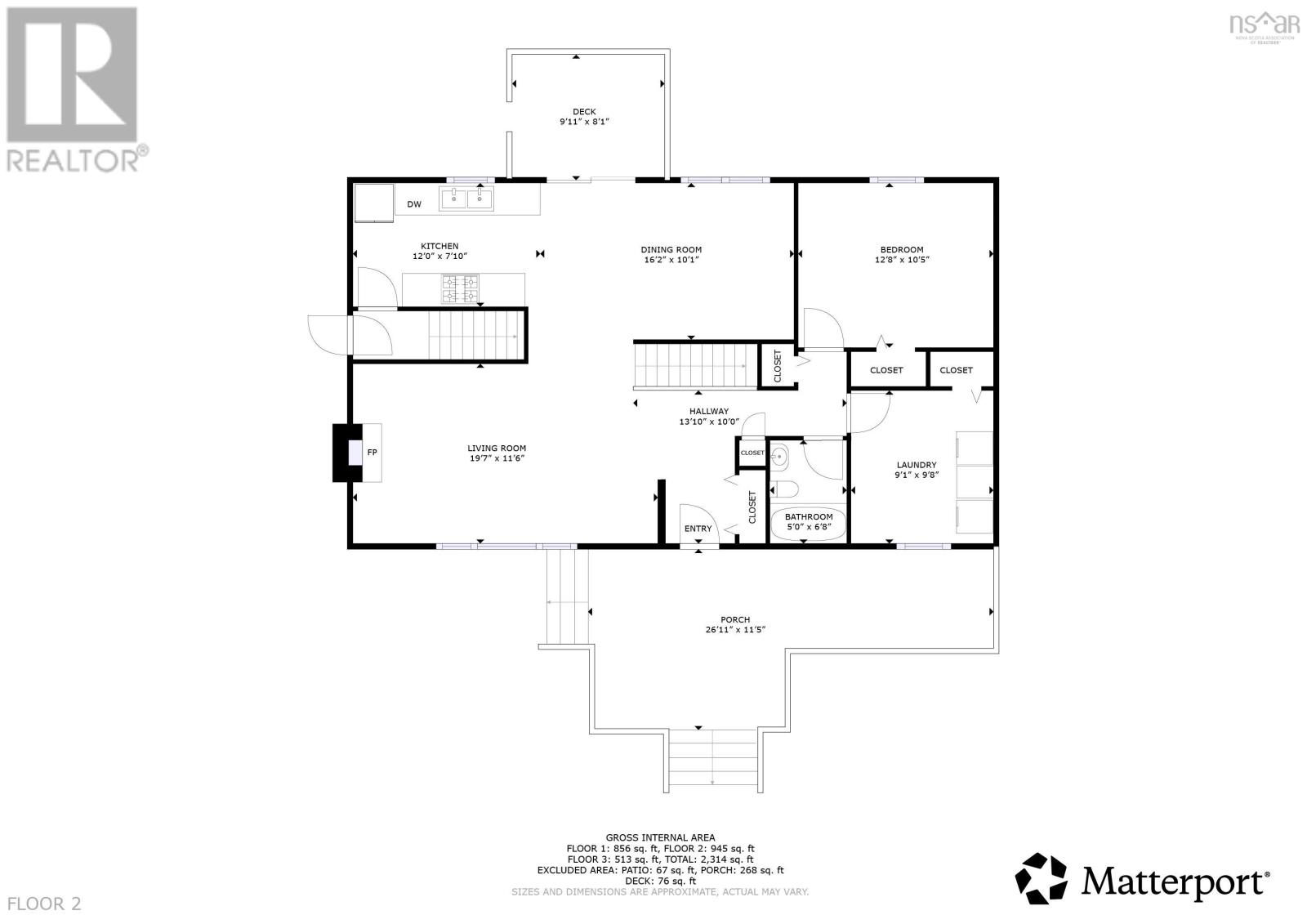
Rooms
Room
Level
Dimensions
Notes
Primary Bedroom
Second level
16.5x10
Bedroom
Second level
12.1x9.6
Bath (# pieces 1-6)
Second level
9.6x9.6
Bedroom
Lower level
10.8x10.3
Recreational, Games room
Lower level
18.6x14.4
Workshop
Lower level
11.3x10.7
Utility room
Lower level
14.5x8
Storage
Lower level
15.3x7.4
Storage
Lower level
6.5x3.9
Living room
Main level
19.7x11.6
Dining room
Main level
16.1x10
Kitchen
Main level
12x7.9
Bedroom
Main level
12.7x10.5
Foyer
Main level
9.1x4.5
Bath (# pieces 1-6)
Main level
6.6x4.11
Laundry room
Main level
9.9x9.1
Parking Spaces
Name
Spaces
Paved Yard
Land
Total Size
0.3742 acres
Amenities
Park, Playground, Shopping, Place of Worship, Beach
Landscape Features
Partially landscaped
Sewer
Septic System
Size of Irregular Land
0.3742
Terms of Use
Please review and agree to the following terms of use to access the listing content:
REALTOR®, REALTORS®, and the REALTOR® logo are certification marks that are owned by REALTOR® Canada Inc. and licensed exclusively to The Canadian Real Estate Association (CREA). These certification marks identify real estate professionals who are members of CREA and who must abide by CREA's By-Laws, Rules, and the REALTOR® Code. The MLS® trademark and the MLS® logo are owned by CREA and identify the quality of services provided by real estate professionals who are members of CREA;
The information contained on this site is based in whole or in part on information that is provided by members of CREA, who are responsible for its accuracy. CREA reproduces and distributes this information as a service for its members and assumes no responsibility for its accuracy;
This website is operated by a brokerage or salesperson who is a member of CREA;
The listing content on this website is protected by copyright and other laws, and is intended solely for the private, non-commercial use by individuals. Any other reproduction, distribution or use of the content, in whole or in part, is specifically forbidden. The prohibited uses include commercial use, "screen scraping", "database scraping", and any other activity intended to collect, store, reorganize or manipulate data on the pages produced by or displayed on this website.
The information contained on this site is based in whole or in part on information that is provided under copyright by the Toronto Regional Real Estate Board (TRREB) or by members of The Canadian Real Estate Association (CREA), who are responsible for its accuracy. TRREB and CREA reproduce and distribute this information as a service for their members and assume no responsibility for its accuracy. All information displayed is believed to be accurate but is not guaranteed and should be independently verified. No warranties or representations of any kind are made with respect to the accuracy of such information. The information provided herein must only be used by consumers that have a bona fide interest in the purchase, sale, or lease of real estate and may not be used for any commercial purpose or any other purpose.