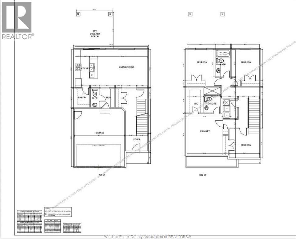
Discover the Pinecrest Model by Lakeland Homes, a fusion of modern elegance and expansive living. This semi-detached home, graced with 4 bedrooms and 2.5 bathrooms, boasts a sophisticated contemporary design that extends through its interior and exterior. The open-concept living areas are tailored for entertainment and social gatherings, while the private bedrooms offer a tranquil escape for rest and rejuvenation. Each corner of this home reflects a commitment to luxury and comfort, setting the stage for a refined living experience. (id:47421)
Interested in obtaining the full price history for this property? Contact us!Contact us! Our real estate professionals would be happy to provide a complete listing history with historical sold prices and dates.
Detailed Information
Bedrooms
4
Bathrooms
3
Features
Double width or more driveway
Ownership Type
Freehold
Property Type
Single Family
Transaction Type
For sale
Zoning Description
RES
Building
Construction Style (Attachment)
Semi-detached
Cooling Type
Central air conditioning
Exterior Finish
Concrete/Stucco
Fireplace Fuel
Gas
Fireplace Present
Yes
Fireplace Type
Insert
Flooring Type
Carpeted, Hardwood
Foundation Type
Concrete
# of Half Bathrooms
1
Heating Fuel
Natural gas
Heating Type
Forced air, Heat Recovery Ventilation (HRV)
Stories Total
2
Total Finished Area
1750 sqft
Type
House
Rooms
Room
Level
Dimensions
Notes
5pc Ensuite bath
Second level
Measurements not available
Laundry room
Second level
Measurements not available
4pc Ensuite bath
Second level
Measurements not available
Primary Bedroom
Second level
Measurements not available
Bedroom
Second level
Measurements not available
Bedroom
Second level
Measurements not available
Bedroom
Second level
Measurements not available
Family room/Fireplace
Main level
Measurements not available
3pc Bathroom
Main level
Measurements not available
Kitchen/Dining room
Main level
Measurements not available
Foyer
Main level
Measurements not available
Parking Spaces
Name
Spaces
Attached Garage
Garage
Inside Entry
Land
Total Size
0 X / 0 AC
Size of Irregular Land
0 X / 0 AC
Terms of Use
Please review and agree to the following terms of use to access the listing content:
REALTOR®, REALTORS®, and the REALTOR® logo are certification marks that are owned by REALTOR® Canada Inc. and licensed exclusively to The Canadian Real Estate Association (CREA). These certification marks identify real estate professionals who are members of CREA and who must abide by CREA's By-Laws, Rules, and the REALTOR® Code. The MLS® trademark and the MLS® logo are owned by CREA and identify the quality of services provided by real estate professionals who are members of CREA;
The information contained on this site is based in whole or in part on information that is provided by members of CREA, who are responsible for its accuracy. CREA reproduces and distributes this information as a service for its members and assumes no responsibility for its accuracy;
This website is operated by a brokerage or salesperson who is a member of CREA;
The listing content on this website is protected by copyright and other laws, and is intended solely for the private, non-commercial use by individuals. Any other reproduction, distribution or use of the content, in whole or in part, is specifically forbidden. The prohibited uses include commercial use, "screen scraping", "database scraping", and any other activity intended to collect, store, reorganize or manipulate data on the pages produced by or displayed on this website.
The information contained on this site is based in whole or in part on information that is provided under copyright by the Toronto Regional Real Estate Board (TRREB) or by members of The Canadian Real Estate Association (CREA), who are responsible for its accuracy. TRREB and CREA reproduce and distribute this information as a service for their members and assume no responsibility for its accuracy. All information displayed is believed to be accurate but is not guaranteed and should be independently verified. No warranties or representations of any kind are made with respect to the accuracy of such information. The information provided herein must only be used by consumers that have a bona fide interest in the purchase, sale, or lease of real estate and may not be used for any commercial purpose or any other purpose.