Listing price reflects anticipated expanded HST rebate for agreements between Apr 1, 2026-Mar 31, 2027,subject to government approval and the expanded HST rebate being in effect at closing and Buyer eligibility. If not in effect at closing purchase price shall be $919,900, reflecting the existing $24,000 Hst rebate credited back to the Builder/Seller. If the Buyer does not qualify for either the existing or anticipated expanded HST rebate the Buyer shall be responsible for full HST. Contact listing agent for details .... Quality, craftsmanship and exceptional value define this impressive offering from award winning Rice Homes, delivering 2,369 sq. ft. of beautifully finished living space in one of Grand Bends most desirable communities. This stunning 4 bedroom, 3 bath home showcases an open concept design with soaring 9 & 10' ceilings, expansive principle rooms, gas fireplace and an abundance of natural light throughout. The stylish kitchen features a large center island, quality cabinetry and 5 included appliances, creating the perfect space for entertaining family and friends. Enjoy the convenience of main floor laundry, spacious bedrooms and a luxurious primary suite with walk in closet and private ensuite. Additional highlights include pre-engineered hardwood floors, front and rear covered porches, basement fully finished, low maintenance Hardie Board exterior, Concrete drive & walkway. Located in sought after Newport Landing this exceptional property offers the ideal blend of beach town living and peaceful neighbourhood charm. Walk to shopping, restaurants, medical services, trails and Grand Bends world famous beach, then come home to a quiet welcoming community where friendly neighbours, evening walks and relaxing outdoor gatherings create the perfect lifestyle.Call or email L.A. for long list of standard features and finishes.No short term rentals, enforced by restrictive covenants registered on title. Property has not been assessed yet. (id:47421)
Interested in obtaining the full price history for this property? Contact us!Contact us! Our real estate professionals would be happy to provide a complete listing history with historical sold prices and dates.
Detailed Information
Bedrooms
2+2
Bathrooms
3
Lot
53.67 x 100.25 ft
Amenities Nearby
Beach, Golf Nearby
Features
Cul-de-sac, Level lot, Irregular lot size, Flat site, Sump Pump
Listing Contract Date
2026-01-05
Location Description
Brooklawn Dr
Ownership Type
Freehold
# of Parking Spaces
6
Property Type
Single Family
Transaction Type
For sale
Zoning Description
R4-2 (H12)
Building
Amenities
Fireplace(s)
Appliances
Garage door opener remote(s), Water Heater, Water meter, Water Heater - Tankless, Barbeque, Dishwasher, Microwave, Stove, Refrigerator
Architectural Style
Bungalow
Basement Development
Finished
Basement Type
N/A (Finished)
Construction Style (Attachment)
Detached
Cooling Type
Central air conditioning, Air exchanger
Exterior Finish
Hardboard, Stone
Fireplace Present
Yes
Foundation Type
Poured Concrete
Heating Fuel
Natural gas
Heating Type
Forced air
Stories Total
1
Type
House
Utility Water
Municipal water
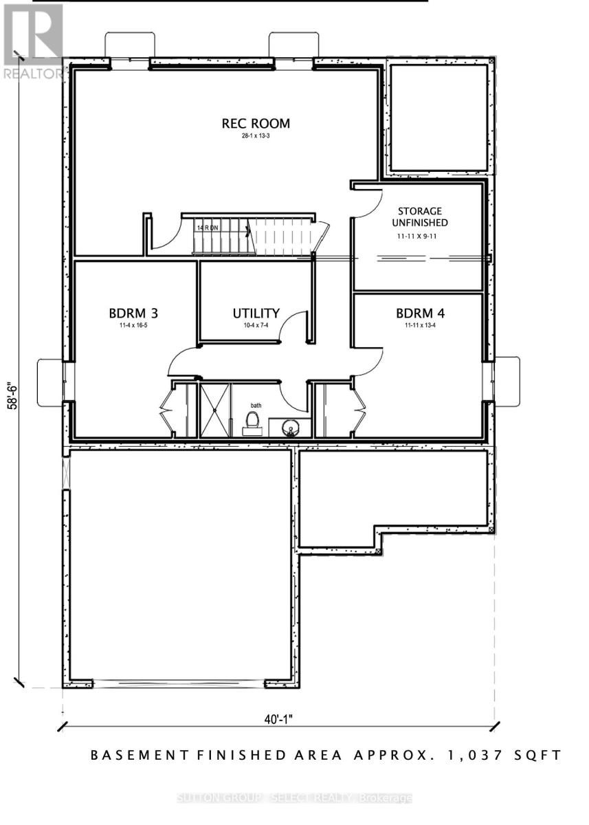
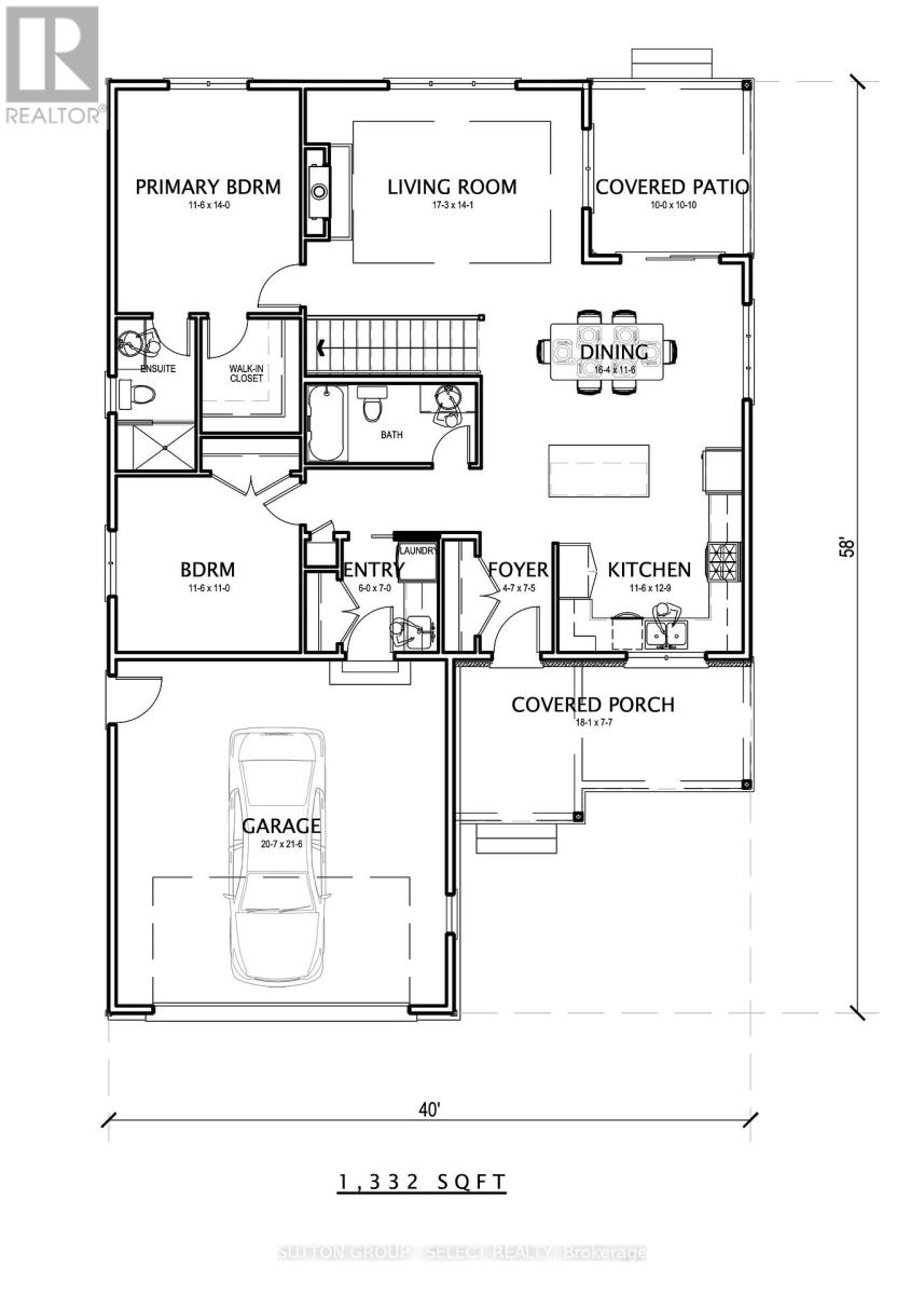
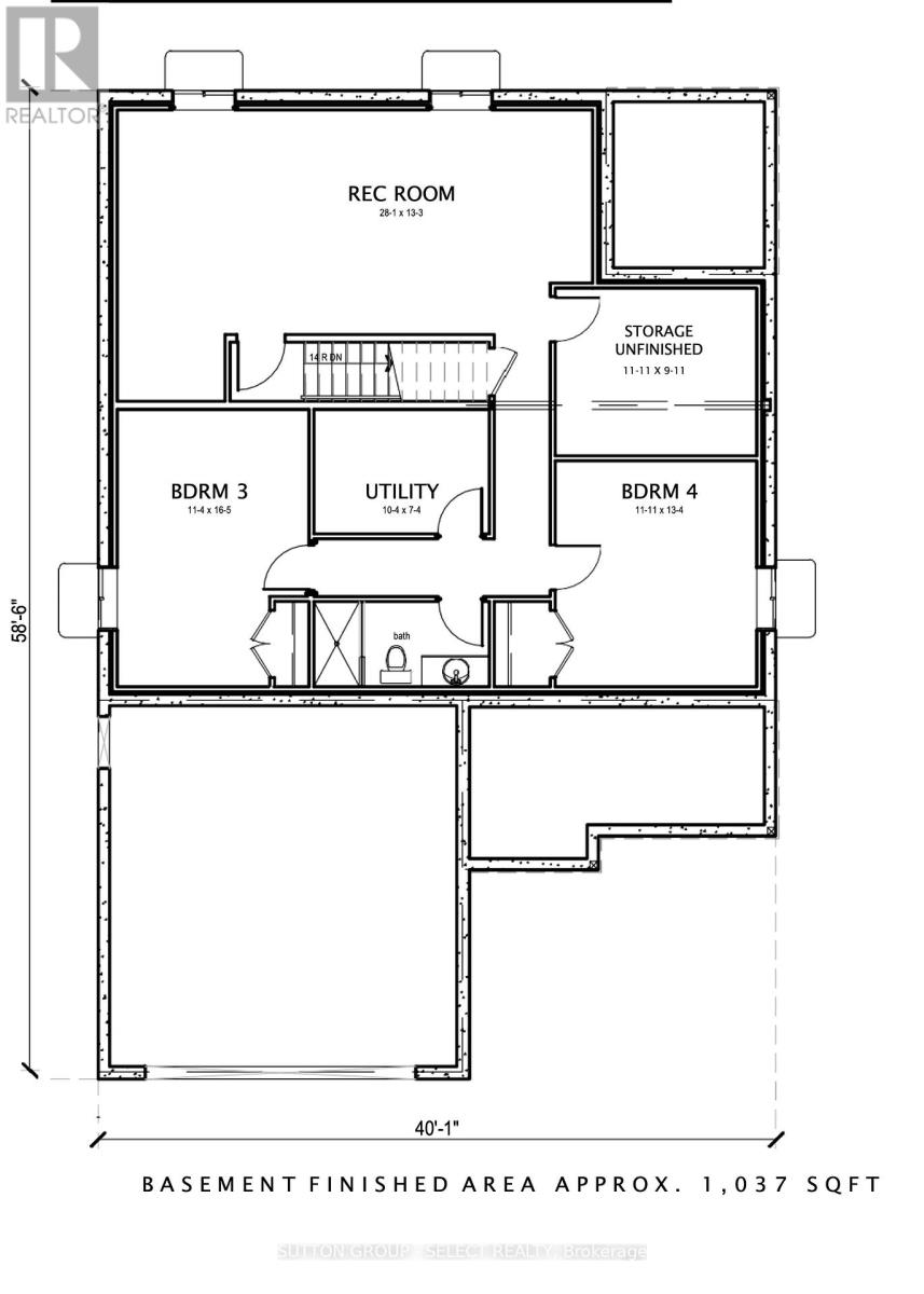
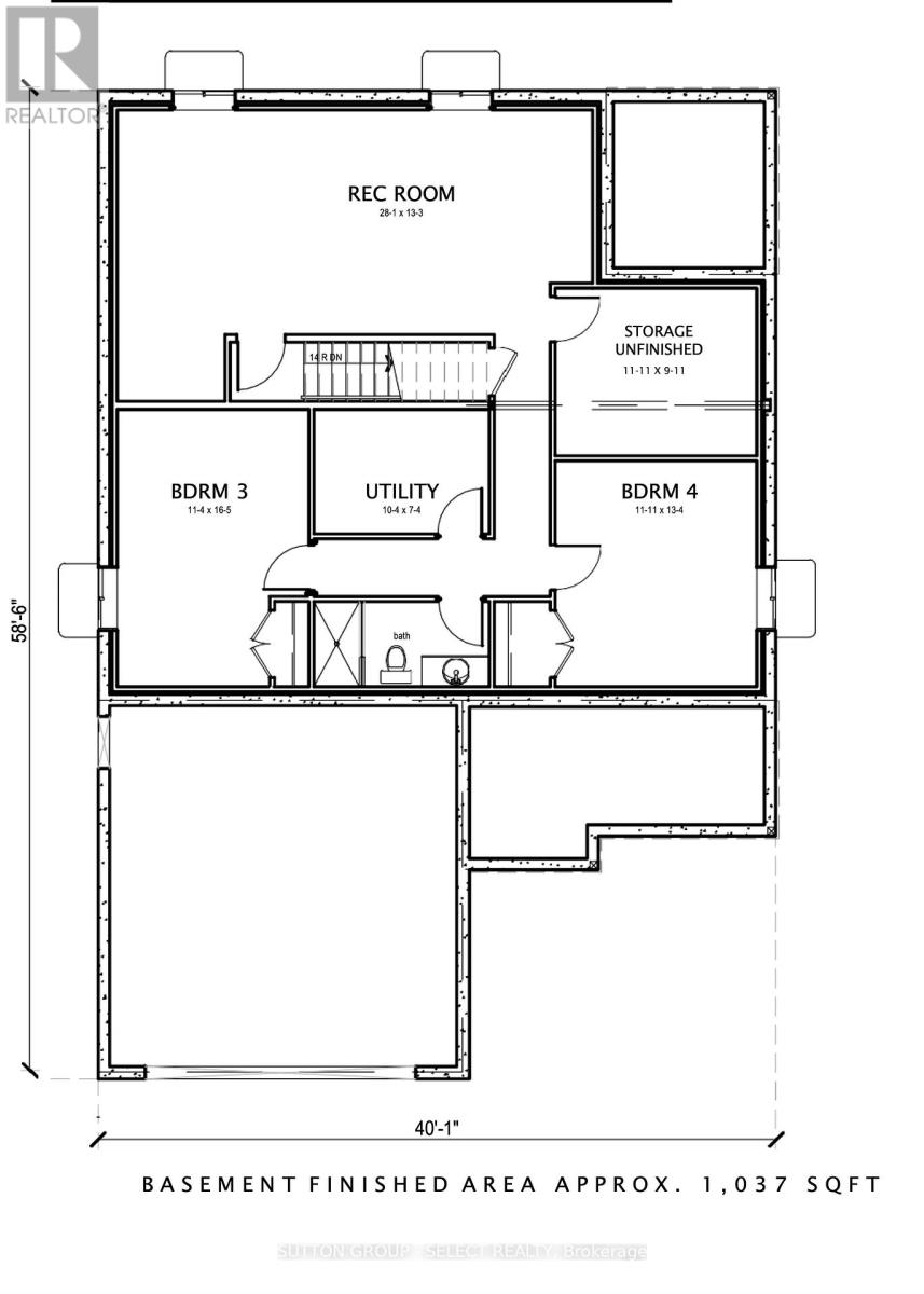
Rooms
Room
Level
Dimensions
Notes
Utility room
Lower level
3.15 m x 2.24 m
Other
Lower level
3.63 m x 3.02 m
Recreational, Games room
Lower level
8.79 m x 4.04 m
Bedroom 3
Lower level
5 m x 3.45 m
Bedroom 4
Lower level
4.06 m x 3.63 m
Foyer
Main level
2.26 m x 1.43 m
Kitchen
Main level
3.89 m x 3.51 m
Dining room
Main level
4.98 m x 3.51 m
Living room
Main level
2.21 m x 4.29 m
Primary Bedroom
Main level
4.27 m x 3.51 m
Bedroom 2
Main level
3.51 m x 3.35 m
Laundry room
Main level
2.13 m x 1.83 m
Parking Spaces
Name
Spaces
Attached Garage
Garage
Land
Total Size
53.7 x 100.3 FT
Amenities
Beach, Golf Nearby
Sewer
Sanitary sewer
Size of Irregular Land
53.7 x 100.3 FT
Open Houses
Date & Time
Comments
30/05/2026 1:00 PM - 4:00 PM
31/05/2026 1:00 PM - 4:00 PM
Terms of Use
Please review and agree to the following terms of use to access the listing content:
REALTOR®, REALTORS®, and the REALTOR® logo are certification marks that are owned by REALTOR® Canada Inc. and licensed exclusively to The Canadian Real Estate Association (CREA). These certification marks identify real estate professionals who are members of CREA and who must abide by CREA's By-Laws, Rules, and the REALTOR® Code. The MLS® trademark and the MLS® logo are owned by CREA and identify the quality of services provided by real estate professionals who are members of CREA;
The information contained on this site is based in whole or in part on information that is provided by members of CREA, who are responsible for its accuracy. CREA reproduces and distributes this information as a service for its members and assumes no responsibility for its accuracy;
This website is operated by a brokerage or salesperson who is a member of CREA;
The listing content on this website is protected by copyright and other laws, and is intended solely for the private, non-commercial use by individuals. Any other reproduction, distribution or use of the content, in whole or in part, is specifically forbidden. The prohibited uses include commercial use, "screen scraping", "database scraping", and any other activity intended to collect, store, reorganize or manipulate data on the pages produced by or displayed on this website.
The information contained on this site is based in whole or in part on information that is provided under copyright by the Toronto Regional Real Estate Board (TRREB) or by members of The Canadian Real Estate Association (CREA), who are responsible for its accuracy. TRREB and CREA reproduce and distribute this information as a service for their members and assume no responsibility for its accuracy. All information displayed is believed to be accurate but is not guaranteed and should be independently verified. No warranties or representations of any kind are made with respect to the accuracy of such information. The information provided herein must only be used by consumers that have a bona fide interest in the purchase, sale, or lease of real estate and may not be used for any commercial purpose or any other purpose.