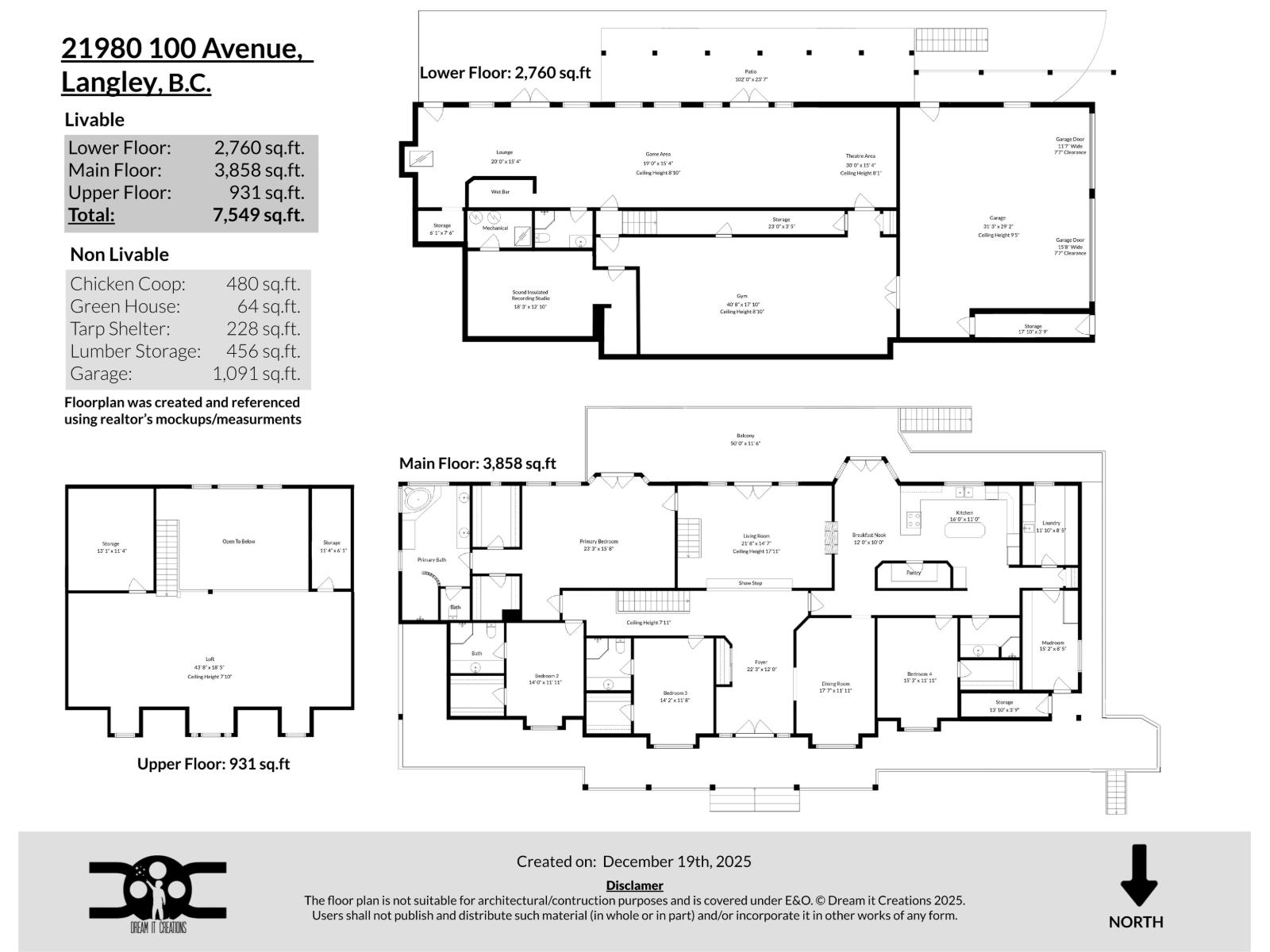
Set back down a long, estate-like drive, this meticulously maintained 7,549 sq/ft residence offers a sanctuary of scale and privacy on 4.2 acres in Fort Langley. The 3,858 sq/ft main floor provides seamless rancher-style living perfect for entertaining, featuring a stately living room with framed views over the creek, an impeccable oak kitchen and a large dining room. The walk-out basement serves as a luxury entertainment wing with a theatre area, pool parlour, wet bar with wood stove, sound-insulated studio, and 45' gym. Updates: roof 2022, A/C 2023, 2x H/W tanks 24'/26', boiler 2026. The private manicured acreage features 1.35 acres of protected riparian area, easy access to Fort Langley village, waterfront trails, cafes, and restaurants. Quick drive to Hwy 1 east or westbound. (id:47421)
Interested in obtaining the full price history for this property? Contact us!Contact us! Our real estate professionals would be happy to provide a complete listing history with historical sold prices and dates.
Detailed Information
Bedrooms
4
Bathrooms
5
Listing Contract Date
2026-01-06
Ownership Type
Freehold
# of Parking Spaces
10
Property Type
Single Family
Structures
Barn, Greenhouse
Transaction Type
For sale
Views
View
Building
Age
31 years
Amenities
Air Conditioning, Laundry - In Suite, Storage - Locker
Appliances
Washer, Dryer, Refrigerator, Stove, Dishwasher, Central Vacuum
Architectural Style
Ranch
Basement Development
Finished
Basement Features
Unknown
Basement Type
Full (Finished)
Construction Style (Attachment)
Detached
Cooling Type
Air Conditioned
Fireplace Present
Yes
# of Fireplaces
2
Fixture
Drapes/Window coverings
Heating Fuel
Electric
Heating Type
Forced air, Radiant heat
Type
House
Utility Water
Municipal water
Parking Spaces
Name
Spaces
Carport
Garage
Utilities
Type
Description
Electricity
Available
Natural Gas
Available
Water
Available
Land
Total Size
182952 square feet
Acreage
Yes
Landscape Features
Garden Area
Sewer
Septic tank
Size of Irregular Land
182952
Terms of Use
Please review and agree to the following terms of use to access the listing content:
REALTOR®, REALTORS®, and the REALTOR® logo are certification marks that are owned by REALTOR® Canada Inc. and licensed exclusively to The Canadian Real Estate Association (CREA). These certification marks identify real estate professionals who are members of CREA and who must abide by CREA's By-Laws, Rules, and the REALTOR® Code. The MLS® trademark and the MLS® logo are owned by CREA and identify the quality of services provided by real estate professionals who are members of CREA;
The information contained on this site is based in whole or in part on information that is provided by members of CREA, who are responsible for its accuracy. CREA reproduces and distributes this information as a service for its members and assumes no responsibility for its accuracy;
This website is operated by a brokerage or salesperson who is a member of CREA;
The listing content on this website is protected by copyright and other laws, and is intended solely for the private, non-commercial use by individuals. Any other reproduction, distribution or use of the content, in whole or in part, is specifically forbidden. The prohibited uses include commercial use, "screen scraping", "database scraping", and any other activity intended to collect, store, reorganize or manipulate data on the pages produced by or displayed on this website.
The information contained on this site is based in whole or in part on information that is provided under copyright by the Toronto Regional Real Estate Board (TRREB) or by members of The Canadian Real Estate Association (CREA), who are responsible for its accuracy. TRREB and CREA reproduce and distribute this information as a service for their members and assume no responsibility for its accuracy. All information displayed is believed to be accurate but is not guaranteed and should be independently verified. No warranties or representations of any kind are made with respect to the accuracy of such information. The information provided herein must only be used by consumers that have a bona fide interest in the purchase, sale, or lease of real estate and may not be used for any commercial purpose or any other purpose.