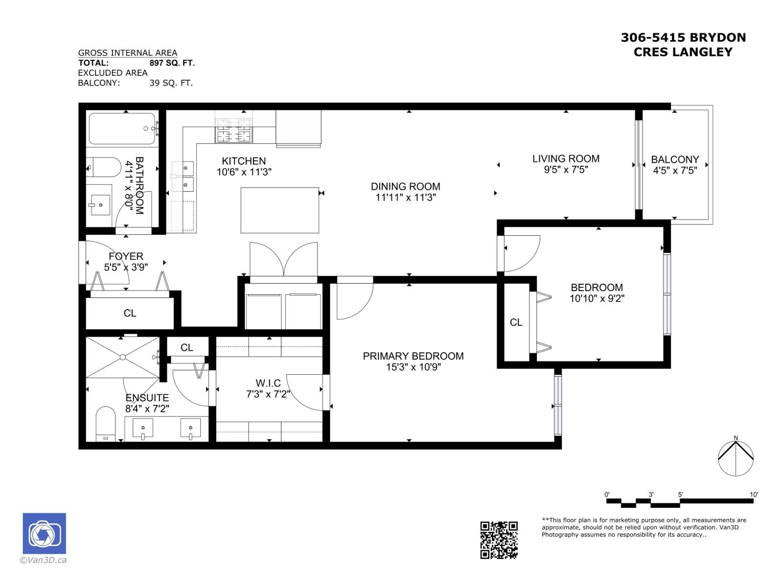
Welcome to The Audley by Reddale! This spacious 2 bed, 2 bath home features a Fisher & Paykel fridge, Samsung 5-burner gas range, quartz countertops, and a freestanding island. The primary suite boasts a frameless glass shower, double sinks, and a walk-in closet. Enjoy a large patio with access from the living and primary bedroom. Built with durable Hardi board siding, energy-efficient windows, and glass doors .Resort-style amenities include a fitness center, yoga room, library, guest suite, boardroom, dog wash, and bike storage. The stunning courtyard offers a BBQ area, firepit, play area, and community garden. Centrally located near transit, shopping, restaurants, recreation, and the future SkyTrain! (id:47421)
Interested in obtaining the full price history for this property? Contact us!Contact us! Our real estate professionals would be happy to provide a complete listing history with historical sold prices and dates.
Detailed Information
Bedrooms
2
Bathrooms
2
Community Features
Pets Allowed With Restrictions, Rentals Allowed
Listing Contract Date
2025-11-25
Maintenance Fee Payment Frequency
Monthly
Ownership Type
Strata
# of Parking Spaces
1
Property Type
Single Family
Structures
Playground
Transaction Type
For sale
Building
Age
4 years
Amenities
Clubhouse, Exercise Centre, Guest Suite
Appliances
Washer, Dryer, Refrigerator, Stove, Dishwasher
Architectural Style
Other
Basement Development
Unknown
Basement Features
Unknown
Basement Type
None (Unknown)
Construction Style (Attachment)
Attached
Heating Fuel
Electric
Heating Type
Baseboard heaters
Stories Total
4
Type
Apartment
Utility Water
Municipal water
Parking Spaces
Name
Spaces
Underground
Utilities
Type
Description
Electricity
Available
Natural Gas
Available
Water
Available
Land
Landscape Features
Garden Area
Sewer
Sanitary sewer, Storm sewer
Terms of Use
Please review and agree to the following terms of use to access the listing content:
REALTOR®, REALTORS®, and the REALTOR® logo are certification marks that are owned by REALTOR® Canada Inc. and licensed exclusively to The Canadian Real Estate Association (CREA). These certification marks identify real estate professionals who are members of CREA and who must abide by CREA's By-Laws, Rules, and the REALTOR® Code. The MLS® trademark and the MLS® logo are owned by CREA and identify the quality of services provided by real estate professionals who are members of CREA;
The information contained on this site is based in whole or in part on information that is provided by members of CREA, who are responsible for its accuracy. CREA reproduces and distributes this information as a service for its members and assumes no responsibility for its accuracy;
This website is operated by a brokerage or salesperson who is a member of CREA;
The listing content on this website is protected by copyright and other laws, and is intended solely for the private, non-commercial use by individuals. Any other reproduction, distribution or use of the content, in whole or in part, is specifically forbidden. The prohibited uses include commercial use, "screen scraping", "database scraping", and any other activity intended to collect, store, reorganize or manipulate data on the pages produced by or displayed on this website.
The information contained on this site is based in whole or in part on information that is provided under copyright by the Toronto Regional Real Estate Board (TRREB) or by members of The Canadian Real Estate Association (CREA), who are responsible for its accuracy. TRREB and CREA reproduce and distribute this information as a service for their members and assume no responsibility for its accuracy. All information displayed is believed to be accurate but is not guaranteed and should be independently verified. No warranties or representations of any kind are made with respect to the accuracy of such information. The information provided herein must only be used by consumers that have a bona fide interest in the purchase, sale, or lease of real estate and may not be used for any commercial purpose or any other purpose.