Rare investment opportunity — Legal 2-bedroom basement suite included. Buy with confidence in a growing community with increasing housing demand. Located in close proximity to the BHP Jansen Mine Project and the Aspen Power Station development, this property offers strong appeal for those working in the area as well as investors seeking long-term rental stability. Welcome to 13 Clement Road in Lanigan — a 1520 sq. ft. 2-storey home offering a functional and modern layout. The primary residence includes 3 bedrooms and 2.5 bathrooms, along with convenient second-floor laundry. The main floor features LVP flooring, and the second floor has carpet throughout except for tile flooring in the laundry and bathrooms. The kitchen includes soft-close cabinetry, quartz countertops with backsplash, and LED lighting throughout. A fully developed legal basement suite adds 2 additional bedrooms and a 4-piece bathroom, providing excellent suitability for rental accommodation or multi-generational living. The suite features LVP flooring, laminate countertops, a separate HRV and hot water tank, and electric baseboard heating. Home Features: • Total 5 Bedrooms and 3.5 Bathrooms (3 + 2 configuration) • Triple-pane windows • LED lighting throughout Exterior: Concrete walkway to front and side entries, a large lot with alley access offering room to customize landscaping. Attached front elevation image is a conceptual rendering only and may not reflect the final finished home. Progressive New Home Warranty included. Buyers may be eligible to apply for the Saskatchewan Secondary Suite Incentive (SSI) program; the builder will provide required docs. for the buyer’s application. Upgrades and Add-Ons Available: Garage package, deck, and landscaping options. Now available for Pre-Sale with an estimated completion of Spring/Summer 2026. Contact your preferred REALTOR® for details. (id:47421)
Interested in obtaining the full price history for this property? Contact us!Contact us! Our real estate professionals would be happy to provide a complete listing history with historical sold prices and dates.
Detailed Information
Bedrooms
5
Bathrooms
4
Lot
60 x 0 ft
Features
Rectangular
Listing Contract Date
2025-10-30
Location Description
13 Clement Road Lanigan SK
Ownership Type
Freehold
Property Type
Single Family
Transaction Type
For sale
Building
Appliances
Dishwasher, Microwave, Humidifier, Hood Fan
Architectural Style
2 Level
Basement Type
Full
Constructed Date
2026
Construction Style (Attachment)
Detached
Heating Fuel
Electric, Natural gas
Heating Type
Baseboard heaters, Forced air
Stories Total
2
Type
House
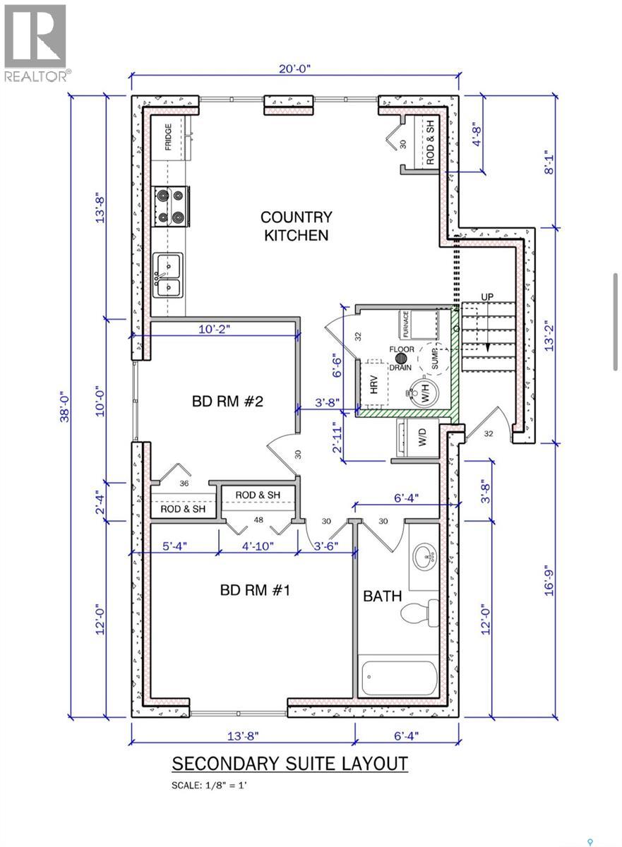
Rooms
Room
Level
Dimensions
Notes
Primary Bedroom
Second level
13' 8" x 13' 8"
Bedroom
Second level
11' 1" x 9' 4"
Bedroom
Second level
11' 1" x 9' 4"
Laundry room
Second level
5' x 6'
4pc Bathroom
Second level
8' 4" x 5'
4pc Ensuite bath
Second level
8' 9" x 5'
Kitchen/Dining room
Basement
11' 6" x 17' 8"
4pc Bathroom
Basement
10' 8" x 5'
Bedroom
Basement
9' 6" x 8' 10"
Bedroom
Basement
10' 8" x 12' 4"
Other
Basement
Measurements not available
Living room
Main level
15' 8" x 12' 5"
Foyer
Main level
6' x 6' 6"
Kitchen
Main level
14' 6" x 10' 3"
Dining room
Main level
13' 6" x 8' 6"
2pc Bathroom
Main level
5' 6" x 6' 4"
Other
Main level
Measurements not available
Parking Spaces
Name
Spaces
None
Parking Space(s)
2
Land
Total Size
7200 square feet
Size of Irregular Land
7200.00
Terms of Use
Please review and agree to the following terms of use to access the listing content:
REALTOR®, REALTORS®, and the REALTOR® logo are certification marks that are owned by REALTOR® Canada Inc. and licensed exclusively to The Canadian Real Estate Association (CREA). These certification marks identify real estate professionals who are members of CREA and who must abide by CREA's By-Laws, Rules, and the REALTOR® Code. The MLS® trademark and the MLS® logo are owned by CREA and identify the quality of services provided by real estate professionals who are members of CREA;
The information contained on this site is based in whole or in part on information that is provided by members of CREA, who are responsible for its accuracy. CREA reproduces and distributes this information as a service for its members and assumes no responsibility for its accuracy;
This website is operated by a brokerage or salesperson who is a member of CREA;
The listing content on this website is protected by copyright and other laws, and is intended solely for the private, non-commercial use by individuals. Any other reproduction, distribution or use of the content, in whole or in part, is specifically forbidden. The prohibited uses include commercial use, "screen scraping", "database scraping", and any other activity intended to collect, store, reorganize or manipulate data on the pages produced by or displayed on this website.
The information contained on this site is based in whole or in part on information that is provided under copyright by the Toronto Regional Real Estate Board (TRREB) or by members of The Canadian Real Estate Association (CREA), who are responsible for its accuracy. TRREB and CREA reproduce and distribute this information as a service for their members and assume no responsibility for its accuracy. All information displayed is believed to be accurate but is not guaranteed and should be independently verified. No warranties or representations of any kind are made with respect to the accuracy of such information. The information provided herein must only be used by consumers that have a bona fide interest in the purchase, sale, or lease of real estate and may not be used for any commercial purpose or any other purpose.