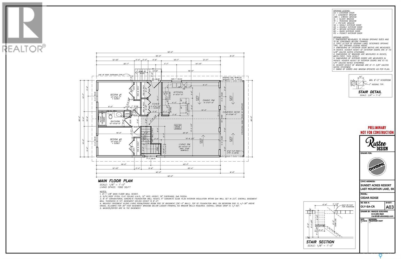
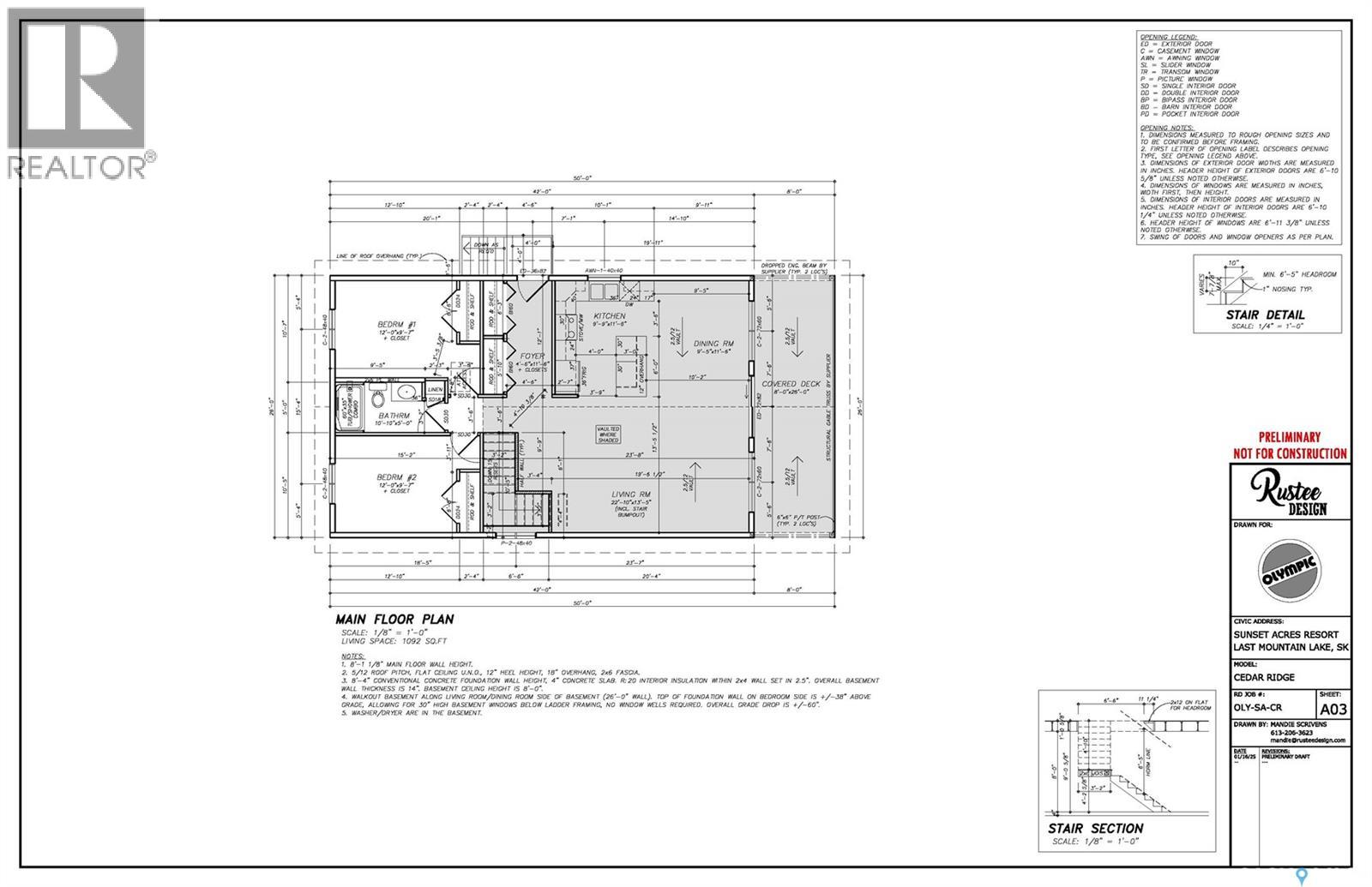
This four-season marina lot bungalow is now ready for immediate possession. Located at Sunset Acres Resort on the East shore of Last Mountain Lake, this development features a marina, 120’ concrete boat launch, and a large beach area. The 1092 sq. ft. main floor features 2 bedrooms, 1 bathroom, and a huge open living space. The kitchen provides plenty of storage space. An appliance package is negotiable. The waterfront side of the home features an impressive covered deck for a deck off of the main living space. Large windows provide sweeping views of the lake and beyond. This home sits on a full concrete walk-out basement, with rough-in plumbing and ready for your personal development touch. There is plenty of space for additional bedrooms, a games room, office space, movie room, or whatever your lifestyle requires. A hi-efficient forced air natural gas furnace and natural gas water heater complete this level. With a large lot, 75’ x 269’ in size, there is plenty of room for a future garage. https://sunsetacres.com/ Contact your REALTOR® today for more information. (id:47421)
Interested in obtaining the full price history for this property? Contact us!Contact us! Our real estate professionals would be happy to provide a complete listing history with historical sold prices and dates.
Detailed Information
Bedrooms
2
Bathrooms
1
Lot
75 x 0 ft
Features
Rectangular, Recreational
Listing Contract Date
2026-01-02
Ownership Type
Freehold
Property Type
Single Family
Structures
Deck
Transaction Type
For sale
Waterfront Type
Waterfront
Waterfront Name
Last Mountain Lake
Building
Architectural Style
Bungalow
Basement Development
Unfinished
Basement Features
Walk out
Basement Type
Full (Unfinished)
Constructed Date
2025
Construction Style (Attachment)
Detached
Heating Fuel
Natural gas
Heating Type
Forced air
Stories Total
1
Type
House
Rooms
Room
Level
Dimensions
Notes
Other
Basement
41 ft x 25 ft
Foyer
Main level
11 ft 6 in x 4 ft 6 in
Kitchen
Main level
11 ft 6 in x 9 ft 9 in
Dining room
Main level
11 ft 6 in x 9 ft 5 in
Living room
Main level
22 ft 1 in x 13 ft 5 in
Bedroom
Main level
12 ft x 9 ft 7 in
Bedroom
Main level
12 ft x 9 ft 7 in
4pc Bathroom
Main level
10 ft 1 in x 5 ft
Parking Spaces
Name
Spaces
None
Gravel
Parking Space(s)
4
Land
Total Size
0.46 acres
Size of Irregular Land
0.46
Terms of Use
Please review and agree to the following terms of use to access the listing content:
REALTOR®, REALTORS®, and the REALTOR® logo are certification marks that are owned by REALTOR® Canada Inc. and licensed exclusively to The Canadian Real Estate Association (CREA). These certification marks identify real estate professionals who are members of CREA and who must abide by CREA's By-Laws, Rules, and the REALTOR® Code. The MLS® trademark and the MLS® logo are owned by CREA and identify the quality of services provided by real estate professionals who are members of CREA;
The information contained on this site is based in whole or in part on information that is provided by members of CREA, who are responsible for its accuracy. CREA reproduces and distributes this information as a service for its members and assumes no responsibility for its accuracy;
This website is operated by a brokerage or salesperson who is a member of CREA;
The listing content on this website is protected by copyright and other laws, and is intended solely for the private, non-commercial use by individuals. Any other reproduction, distribution or use of the content, in whole or in part, is specifically forbidden. The prohibited uses include commercial use, "screen scraping", "database scraping", and any other activity intended to collect, store, reorganize or manipulate data on the pages produced by or displayed on this website.
The information contained on this site is based in whole or in part on information that is provided under copyright by the Toronto Regional Real Estate Board (TRREB) or by members of The Canadian Real Estate Association (CREA), who are responsible for its accuracy. TRREB and CREA reproduce and distribute this information as a service for their members and assume no responsibility for its accuracy. All information displayed is believed to be accurate but is not guaranteed and should be independently verified. No warranties or representations of any kind are made with respect to the accuracy of such information. The information provided herein must only be used by consumers that have a bona fide interest in the purchase, sale, or lease of real estate and may not be used for any commercial purpose or any other purpose.