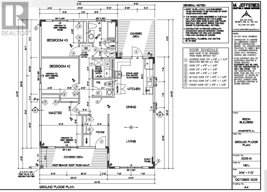
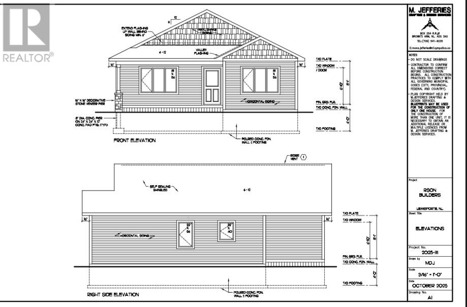
Check out this gorgeous new build that's just getting underway at 4 Reid Street in Lewisporte, NL. If you're in the market for a new build, then this is the home and location for you. This is an efficient 1255 SFT home, all on one level. It consists of a very large open concept Living/Dining/Kitchen area. There are 2 spacious bedrooms plus a very large primary bedroom, and a modern 3 piece bath, plus an additional half bath. The laundry room and utility room are neatly tied in together to utilize the space. The back and front entrances of the house will have conveniently covered decks so you can enjoy the outside, even when it's raining. This home will be heated by electric baseboard heaters and a HEAT PUMP, with a 200AMP service. The crawl space will be fully insulated with heaters and a concrete floor. This is a very quiet street with very minimal traffic and it's close to schools, clinics, stadium, baseball field, soccer fields, splash pad, college, shopping and more. Appliances not included. Atlantic Home Warranty available. Don't delay, if you get in on this one early there's still time to pick out your choice of flooring, paint colours, siding colour and much more. Come check it out today!! Cover photo is a Sample-Subject to changes. (id:47421)
Interested in obtaining the full price history for this property? Contact us!Contact us! Our real estate professionals would be happy to provide a complete listing history with historical sold prices and dates.
Detailed Information
Bedrooms
3
Bathrooms
2
Amenities Nearby
Recreation
Listing Contract Date
2025-10-23
Ownership Type
Freehold
Property Type
Single Family
Transaction Type
For sale
Zoning Description
Residential
Building
Appliances
See remarks
Architectural Style
Bungalow
Constructed Date
2025
Cooling Type
Air exchanger
Exterior Finish
Vinyl siding
Flooring Type
Other
Foundation Type
Concrete
# of Half Bathrooms
1
Heating Fuel
Electric
Heating Type
Baseboard heaters, Heat Pump
Stories Total
1
Type
House
Utility Water
Municipal water
Rooms
Room
Level
Dimensions
Notes
Living room
Main level
13x13.6
Porch
Main level
5x9.6
Bath (# pieces 1-6)
Main level
5x5.7
Laundry room
Main level
5.9x5.10
Bath (# pieces 1-6)
Main level
8.4x10.8
Primary Bedroom
Main level
12x13
Bedroom
Main level
11x10.6
Bedroom
Main level
11x10.6
Dining room
Main level
13x8
Kitchen
Main level
11.6x10.6
Land
Total Size
56x86x97x50 | 4,051 - 7,250 sqft
Amenities
Recreation
Sewer
Municipal sewage system
Size of Irregular Land
56x86x97x50
Terms of Use
Please review and agree to the following terms of use to access the listing content:
REALTOR®, REALTORS®, and the REALTOR® logo are certification marks that are owned by REALTOR® Canada Inc. and licensed exclusively to The Canadian Real Estate Association (CREA). These certification marks identify real estate professionals who are members of CREA and who must abide by CREA's By-Laws, Rules, and the REALTOR® Code. The MLS® trademark and the MLS® logo are owned by CREA and identify the quality of services provided by real estate professionals who are members of CREA;
The information contained on this site is based in whole or in part on information that is provided by members of CREA, who are responsible for its accuracy. CREA reproduces and distributes this information as a service for its members and assumes no responsibility for its accuracy;
This website is operated by a brokerage or salesperson who is a member of CREA;
The listing content on this website is protected by copyright and other laws, and is intended solely for the private, non-commercial use by individuals. Any other reproduction, distribution or use of the content, in whole or in part, is specifically forbidden. The prohibited uses include commercial use, "screen scraping", "database scraping", and any other activity intended to collect, store, reorganize or manipulate data on the pages produced by or displayed on this website.
The information contained on this site is based in whole or in part on information that is provided under copyright by the Toronto Regional Real Estate Board (TRREB) or by members of The Canadian Real Estate Association (CREA), who are responsible for its accuracy. TRREB and CREA reproduce and distribute this information as a service for their members and assume no responsibility for its accuracy. All information displayed is believed to be accurate but is not guaranteed and should be independently verified. No warranties or representations of any kind are made with respect to the accuracy of such information. The information provided herein must only be used by consumers that have a bona fide interest in the purchase, sale, or lease of real estate and may not be used for any commercial purpose or any other purpose.