Updated 2-bedroom condo in North London, featuring numerous upgrades such as crown moldings, French doors, ceramic floors, and an energy-efficient toilet. Tastefully decorated, this unit includes six appliances, in-suite laundry with storage, spacious bedrooms, and a full bathroom. With no carpets, it's easy to maintain and ideal for modern living.Conveniently located just steps from shopping, with easy access to Masonville Mall and Highbury Ave for commuters. The property is within the Stoney Creek Elementary School district-one of London's top-rated elementary schools-with school bus service available. It also falls within the A.B. Lucas Secondary School catchment, ranked among the top 25% of public high schools in Ontario.Only minutes away from London's largest YMCA, offering a fitness centre, swimming pool, multi-sport gymnasium, and library-perfect for active families.Currently occupied by a reliable family tenant, leased at $2,050/month until August 1, 2026.A great investment opportunity in a prime North London location-easy to view and a pleasure to show. (id:47421)
Interested in obtaining the full price history for this property? Contact us!Contact us! Our real estate professionals would be happy to provide a complete listing history with historical sold prices and dates.
Detailed Information
Bedrooms
2
Bathrooms
1
Community Features
Pets Allowed With Restrictions, Community Centre
Equipment
Water Heater
Features
Irregular lot size, Carpet Free
Listing Contract Date
2025-10-24
Location Description
Adelaide North and Fanshawe Park
Maintenance Fee Payment Frequency
Monthly
Maintenance Fee Type
Water, Parking, Insurance, Common Area Maintenance
Management Company
Throne Property Management
Ownership Type
Condominium/Strata
# of Parking Spaces
1
Property Type
Single Family
Rental Equipment
Water Heater
Transaction Type
For sale
Zoning Description
R9-5
Building
Age
31 to 50 years
Basement Type
None
Cooling Type
Central air conditioning
Exterior Finish
Concrete
Heating Fuel
Electric
Heating Type
Forced air
Type
Apartment
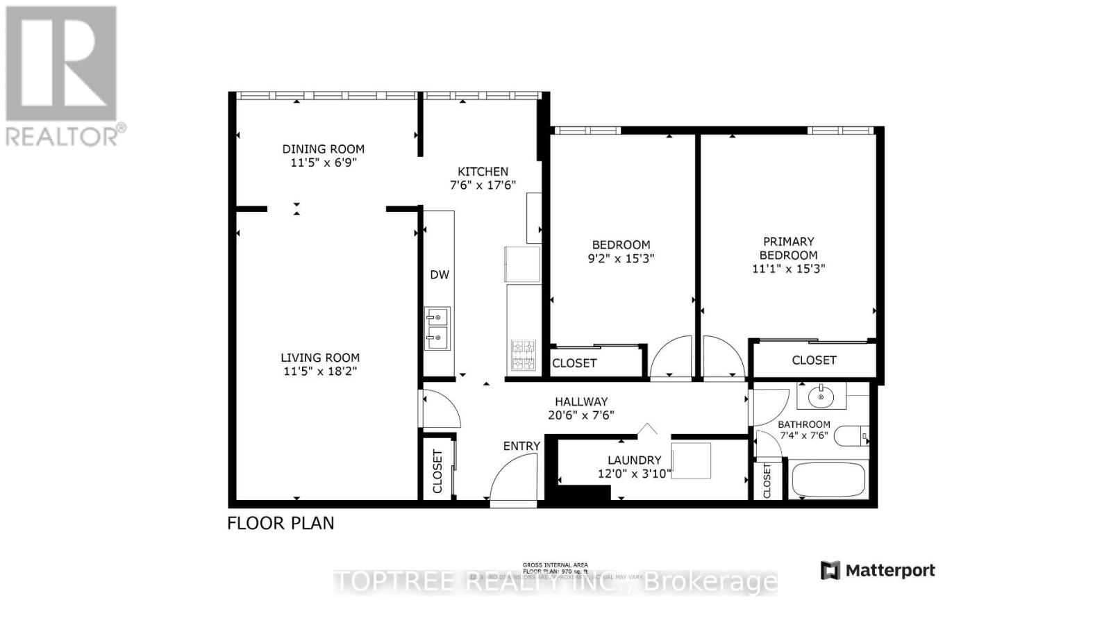
Rooms
Room
Level
Dimensions
Notes
Living room
Main level
5.54 m x 3.5 m
Kitchen
Main level
5.33 m x 2.28 m
Dining room
Main level
3.48 m x 2.25 m
Primary Bedroom
Main level
4.65 m x 3.38 m
Bedroom 2
Main level
4.65 m x 2.8 m
Laundry room
Main level
3.66 m x 1.17 m
Bathroom
Main level
2.24 m x 2.29 m
Parking Spaces
Name
Spaces
No Garage
Terms of Use
Please review and agree to the following terms of use to access the listing content:
REALTOR®, REALTORS®, and the REALTOR® logo are certification marks that are owned by REALTOR® Canada Inc. and licensed exclusively to The Canadian Real Estate Association (CREA). These certification marks identify real estate professionals who are members of CREA and who must abide by CREA's By-Laws, Rules, and the REALTOR® Code. The MLS® trademark and the MLS® logo are owned by CREA and identify the quality of services provided by real estate professionals who are members of CREA;
The information contained on this site is based in whole or in part on information that is provided by members of CREA, who are responsible for its accuracy. CREA reproduces and distributes this information as a service for its members and assumes no responsibility for its accuracy;
This website is operated by a brokerage or salesperson who is a member of CREA;
The listing content on this website is protected by copyright and other laws, and is intended solely for the private, non-commercial use by individuals. Any other reproduction, distribution or use of the content, in whole or in part, is specifically forbidden. The prohibited uses include commercial use, "screen scraping", "database scraping", and any other activity intended to collect, store, reorganize or manipulate data on the pages produced by or displayed on this website.
The information contained on this site is based in whole or in part on information that is provided under copyright by the Toronto Regional Real Estate Board (TRREB) or by members of The Canadian Real Estate Association (CREA), who are responsible for its accuracy. TRREB and CREA reproduce and distribute this information as a service for their members and assume no responsibility for its accuracy. All information displayed is believed to be accurate but is not guaranteed and should be independently verified. No warranties or representations of any kind are made with respect to the accuracy of such information. The information provided herein must only be used by consumers that have a bona fide interest in the purchase, sale, or lease of real estate and may not be used for any commercial purpose or any other purpose.