Looking for a unique home in Oakridge Acres? here it is, with 5 Levels there's room for everyone! Main floor boasts with space, Livingroom with fireplace , Dinning area , kitchen and oversized familyroom with gas fireplace and a walkout to your summer oasis, fully fenced rear private yard with heated inground pool to enjoy year round if you wish, and fenced side yard with playset for the little ones, 5 bedrooms , master bedtoom on the 3rd level with walkin closet , 4 piece ensuite and patio doors overlooking the back yard, and patio awaiting your finishing touches .Ground level also has a walkout to the pool! lower level boasts with family room and tons of storage space ! all in a fantastic neighbourhood, New 50 year shingles 10 years ago with transferable warranty available . why wait come and take a look and see what this home has to offer. (id:47421)
Share
Listed By
TEAM GLASSER REAL ESTATE Brokerage INC., LONDON LIVING REAL ESTATE LTD.
Interested in obtaining the full price history for this property? Contact us!Contact us! Our real estate professionals would be happy to provide a complete listing history with historical sold prices and dates.
Garage door opener remote(s), Water Heater, Dryer, Stove, Washer, Refrigerator
Basement Development
Partially finished
Basement Type
N/A (Partially finished)
Construction Style (Attachment)
Detached
Construction Style (Split Level)
Sidesplit
Cooling Type
Central air conditioning
Exterior Finish
Aluminum siding, Brick
Fire Protection
Smoke Detectors
Fireplace Present
Yes
# of Fireplaces
2
Fireplace Type
Insert
Foundation Type
Poured Concrete
Heating Fuel
Natural gas
Heating Type
Forced air
Type
House
Utility Water
Municipal water
Rooms
Room
Level
Dimensions
Notes
Bedroom
Second level
4.09 m x 4.47 m
Bedroom 2
Second level
2.84 m x 3.35 m
Bedroom
Third level
3.19 m x 3.74 m
Bedroom
Third level
4.9 m x 4.29 m
Primary Bedroom
Third level
3.96 m x 4.09 m
Other
Lower level
2.43 m x 2.46 m
Furnace
Lower level
4.73 m x 4.13 m
Den
Lower level
4.1 m x 4.39 m
Recreational, Games room
Lower level
7.62 m x 3.62 m
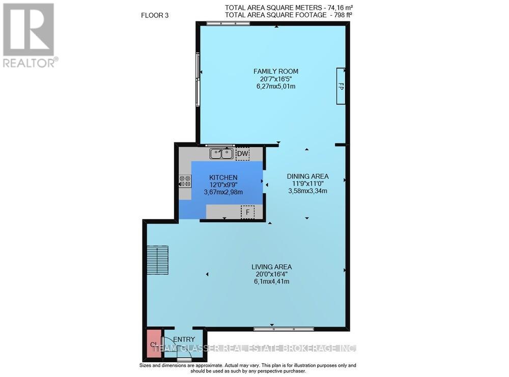
Living room
Main level
6.1 m x 4.41 m
Dining room
Main level
3.58 m x 3.34 m
Family room
Main level
6.27 m x 5.01 m
Kitchen
Main level
3.67 m x 2.98 m
Laundry room
Ground level
4.28 m x 2.15 m
Parking Spaces
Name
Spaces
Attached Garage
Garage
Inside Entry
Utilities
Type
Description
Cable
Installed
Electricity
Installed
Sewer
Installed
Land
Total Size
80.2 x 177 FT ; 80 X 177 X 182 X 80 FT
Amenities
Golf Nearby, Place of Worship, Schools
Fence Type
Fenced yard
Sewer
Sanitary sewer
Size of Irregular Land
80.2 x 177 FT ; 80 X 177 X 182 X 80 FT
Terms of Use
Please review and agree to the following terms of use to access the listing content:
REALTOR®, REALTORS®, and the REALTOR® logo are certification marks that are owned by REALTOR® Canada Inc. and licensed exclusively to The Canadian Real Estate Association (CREA). These certification marks identify real estate professionals who are members of CREA and who must abide by CREA's By-Laws, Rules, and the REALTOR® Code. The MLS® trademark and the MLS® logo are owned by CREA and identify the quality of services provided by real estate professionals who are members of CREA;
The information contained on this site is based in whole or in part on information that is provided by members of CREA, who are responsible for its accuracy. CREA reproduces and distributes this information as a service for its members and assumes no responsibility for its accuracy;
This website is operated by a brokerage or salesperson who is a member of CREA;
The listing content on this website is protected by copyright and other laws, and is intended solely for the private, non-commercial use by individuals. Any other reproduction, distribution or use of the content, in whole or in part, is specifically forbidden. The prohibited uses include commercial use, "screen scraping", "database scraping", and any other activity intended to collect, store, reorganize or manipulate data on the pages produced by or displayed on this website.
The information contained on this site is based in whole or in part on information that is provided under copyright by the Toronto Regional Real Estate Board (TRREB) or by members of The Canadian Real Estate Association (CREA), who are responsible for its accuracy. TRREB and CREA reproduce and distribute this information as a service for their members and assume no responsibility for its accuracy. All information displayed is believed to be accurate but is not guaranteed and should be independently verified. No warranties or representations of any kind are made with respect to the accuracy of such information. The information provided herein must only be used by consumers that have a bona fide interest in the purchase, sale, or lease of real estate and may not be used for any commercial purpose or any other purpose.