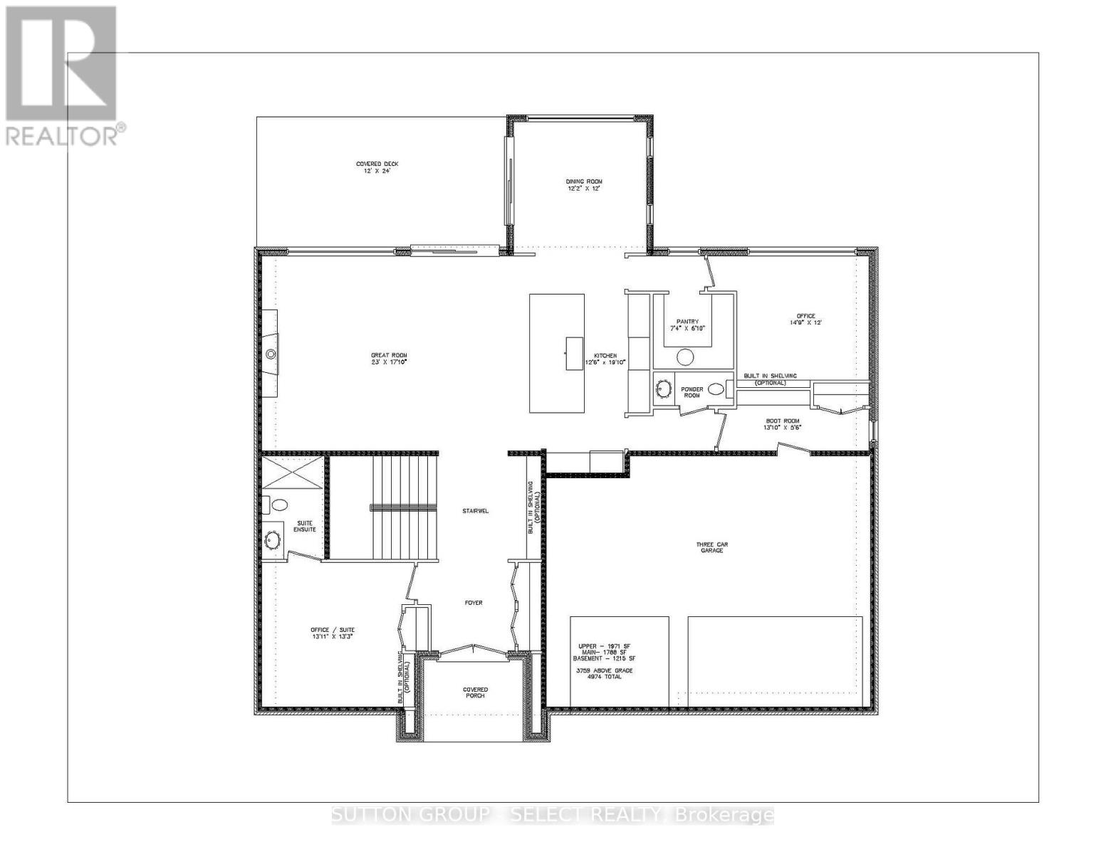
A rare opportunity to secure a Westhaven Homes luxury haven on our last full walk-out ravine lot, set against the protected Medway Valley Heritage Forest. A dramatic stucco exterior, architectural windows, and a curated front-yard landscape package create immediate presence. A covered front porch leads inside.10 ft ceilings, expansive windows, and hardwood floors define the main level with sightlines into the treetops. The great room with gas fireplace opens to an oversized 12 ft x 24 ft covered terrace overlooking the ravine. The gourmet kitchen is refined and crafted for performance, with quartz surfaces, contrast island, designer tilework, and a walk-in pantry with prep sink. The window-wrapped dining area connects naturally to the terrace.A quiet private office is thoughtfully positioned to the back away from principal living areas for minimal distractions. Nearby, the main-floor in-law suite includes a private bath and its own exterior entry, offering flexibility for guests, multi-generational living, or a home-based office with a private client entry. A broad, turn-back staircase with a generous landing creates a distinctive architectural rhythm between levels.The primary suite becomes a private retreat with a 10.5' x 10.9' dressing room and a 16' x 11.4' ensuite featuring heated floors, double vanities, soaker tub, glass/tile shower, and separate water closet. Three more spacious bedrooms each have a walk-in closet and private ensuite. A quartz-appointed second-floor laundry with sink and built-ins adds convenience.The walk-out lower level also features 9 ft ceilings, substantial above-grade windows, and over 1,200 sq. ft. of finished space extending above-grade living with a large recreation area, bright sunroom, full bath, 6th bedroom, walk-out access to the yard, plus storage and a cold room.A 3-car garage with lift-ready height completes the home.Westhaven Homes' elevated craftsmanship, delivers an exclusive, architectural, and deeply refined residence. (id:47421)
Interested in obtaining the full price history for this property? Contact us!Contact us! Our real estate professionals would be happy to provide a complete listing history with historical sold prices and dates.
Detailed Information
Bedrooms
6
Bathrooms
6
Lot
65.08 x 125 ft
Amenities Nearby
Golf Nearby, Hospital
Equipment
Water Heater
Features
Wooded area, Sloping, Ravine, Backs on greenbelt, Conservation/green belt, Carpet Free, In-Law Suite
Listing Contract Date
2025-12-03
Location Description
Cross Streets: Robbies Way. ** Directions: Sunningdale West of Wonderland Road turn right on Robbies Way & left on Creekview Chase.
Ownership Type
Freehold
# of Parking Spaces
6
Property Type
Single Family
Rental Equipment
Water Heater
Structures
Deck
Transaction Type
For sale
Building
Age
New building
Amenities
Fireplace(s)
Appliances
Garage door opener remote(s), Water meter, Garage door opener
Basement Development
Finished
Basement Features
Walk out
Basement Type
N/A (Finished)
Construction Style (Attachment)
Detached
Cooling Type
Central air conditioning, Air exchanger
Exterior Finish
Stucco, Concrete Block
Fire Protection
Smoke Detectors
Fireplace Present
Yes
# of Fireplaces
1
Flooring Type
Hardwood
Foundation Type
Poured Concrete
# of Half Bathrooms
1
Heating Fuel
Natural gas
Heating Type
Forced air
Stories Total
2
Type
House
Utility Water
Municipal water
Rooms
Room
Level
Dimensions
Notes
Bedroom
Second level
12.1 m x 12.8 m
Bedroom 3
Second level
13.3 m x 13 m
Primary Bedroom
Second level
16.5 m x 16.8 m
Laundry room
Second level
13.3 m x 11 m
Bedroom 2
Second level
12.1 m x 12.8 m
Sunroom
Lower level
12.2 m x 12.3 m
Recreational, Games room
Lower level
39.1 m x 17.1 m
Kitchen
Main level
20.2 m x 11.9 m
Pantry
Main level
7.4 m x 6.1 m
Bedroom
Main level
14 m x 11.6 m
Dining room
Main level
12.1 m x 12 m
Great room
Main level
23.8 m x 17.1 m
Bedroom
Main level
14.9 m x 12 m
Mud room
Main level
13.1 m x 5.6 m
Parking Spaces
Name
Spaces
Attached Garage
Garage
Utilities
Type
Description
Cable
Installed
Electricity
Installed
Sewer
Installed
Land
Total Size
65.1 x 125 FT
Amenities
Golf Nearby, Hospital
Landscape Features
Landscaped
Sewer
Sanitary sewer
Size of Irregular Land
65.1 x 125 FT
Surface Water
River/Stream
Terms of Use
Please review and agree to the following terms of use to access the listing content:
REALTOR®, REALTORS®, and the REALTOR® logo are certification marks that are owned by REALTOR® Canada Inc. and licensed exclusively to The Canadian Real Estate Association (CREA). These certification marks identify real estate professionals who are members of CREA and who must abide by CREA's By-Laws, Rules, and the REALTOR® Code. The MLS® trademark and the MLS® logo are owned by CREA and identify the quality of services provided by real estate professionals who are members of CREA;
The information contained on this site is based in whole or in part on information that is provided by members of CREA, who are responsible for its accuracy. CREA reproduces and distributes this information as a service for its members and assumes no responsibility for its accuracy;
This website is operated by a brokerage or salesperson who is a member of CREA;
The listing content on this website is protected by copyright and other laws, and is intended solely for the private, non-commercial use by individuals. Any other reproduction, distribution or use of the content, in whole or in part, is specifically forbidden. The prohibited uses include commercial use, "screen scraping", "database scraping", and any other activity intended to collect, store, reorganize or manipulate data on the pages produced by or displayed on this website.
The information contained on this site is based in whole or in part on information that is provided under copyright by the Toronto Regional Real Estate Board (TRREB) or by members of The Canadian Real Estate Association (CREA), who are responsible for its accuracy. TRREB and CREA reproduce and distribute this information as a service for their members and assume no responsibility for its accuracy. All information displayed is believed to be accurate but is not guaranteed and should be independently verified. No warranties or representations of any kind are made with respect to the accuracy of such information. The information provided herein must only be used by consumers that have a bona fide interest in the purchase, sale, or lease of real estate and may not be used for any commercial purpose or any other purpose.