Welcome to The Brimley, an exceptional two-storey residence thoughtfully designed by award-winning Legacy Homes, located in the highly sought-after community of Warbler Woods. Offering 2466 sq ft of beautifully curated living space, this home seamlessly blends timeless elegance with modern functionality. The open-concept main floor showcases 9' ceilings, 8' doors, large windows, engineered hardwood, custom millwork, linear gas fireplace and private study. A contemporary kitchen impresses with quartz countertops, custom cabinetry, a generous island with seating and walk-in pantry. Step outside to the covered patio, perfect for hosting gatherings or relaxing evenings. Upstairs, you'll find 4 spacious bedrooms, 2 full bathrooms, and a conveniently located laundry room. The unfinished basement offers future development potential to suit your lifestyle. Situated close to top-rated schools, shopping, dining, parks and trails. The Brimley will be ready to welcome its new owners this Spring! (id:47421)
Interested in obtaining the full price history for this property? Contact us!Contact us! Our real estate professionals would be happy to provide a complete listing history with historical sold prices and dates.
Detailed Information
Bedrooms
4
Bathrooms
3
Lot
40 x 109 ft
Amenities Nearby
Golf Nearby, Park, Schools
Community Features
Community Centre, School Bus
Equipment
Water Heater
Listing Contract Date
2026-01-07
Location Description
Oxford St W. & Westdel Bourne.
Ownership Type
Freehold
# of Parking Spaces
4
Property Type
Single Family
Rental Equipment
Water Heater
Transaction Type
For sale
Building
Age
New building
Amenities
Fireplace(s)
Basement Development
Unfinished
Basement Type
Full (Unfinished)
Construction Style (Attachment)
Detached
Cooling Type
Central air conditioning
Exterior Finish
Brick, Vinyl siding
Fireplace Present
Yes
Foundation Type
Poured Concrete
# of Half Bathrooms
1
Heating Fuel
Natural gas
Heating Type
Forced air
Stories Total
2
Type
House
Utility Water
Municipal water
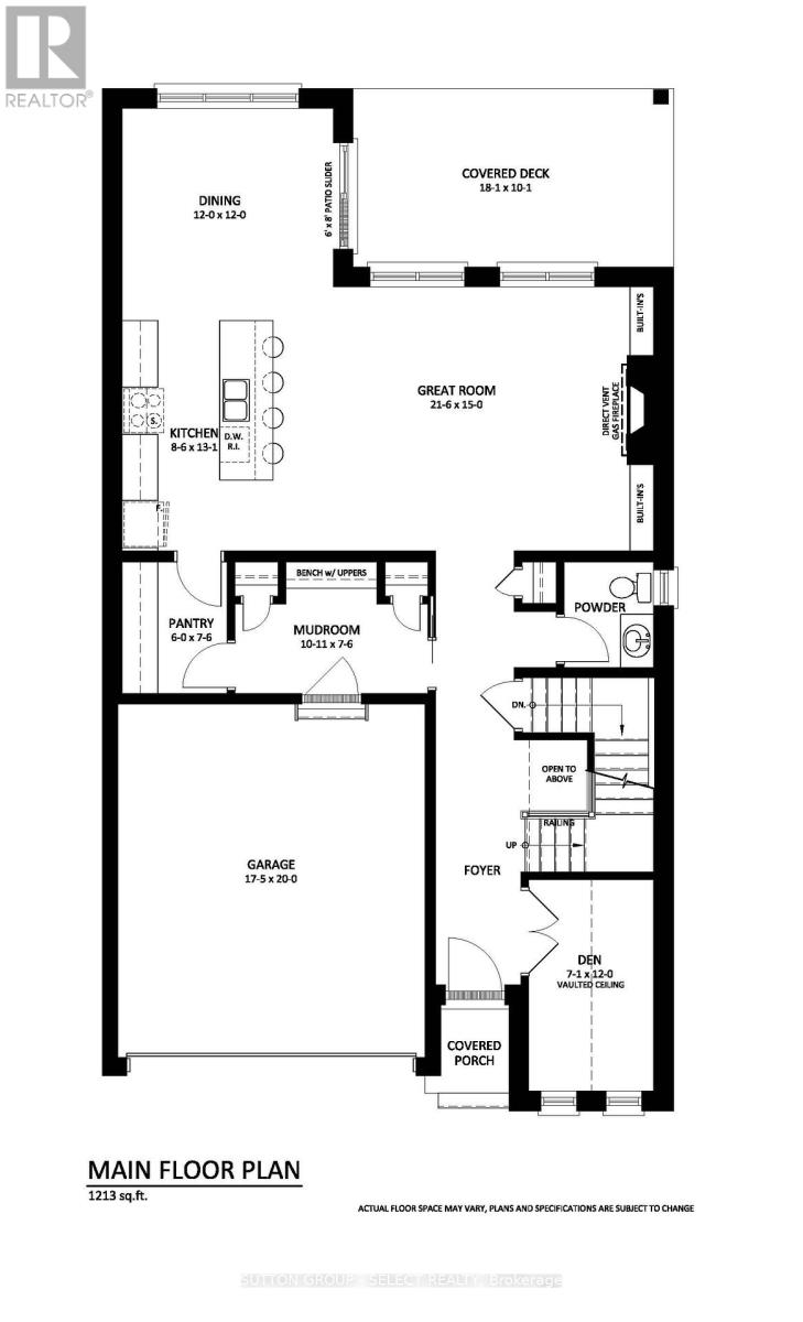
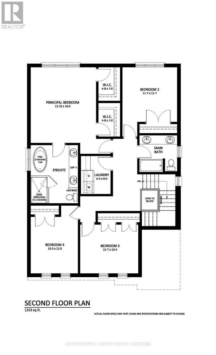
Rooms
Room
Level
Dimensions
Notes
Laundry room
Second level
2.44 m x 1.91 m
Primary Bedroom
Second level
4.88 m x 4.22 m
Bedroom 2
Second level
3.53 m x 3.53 m
Bedroom 3
Second level
3.15 m x 3.84 m
Bedroom 4
Second level
3.66 m x 3.05 m
Kitchen
Ground level
3.99 m x 2.59 m
Pantry
Ground level
2.29 m x 1.83 m
Dining room
Ground level
3.66 m x 3.66 m
Great room
Ground level
4.57 m x 6.55 m
Mud room
Ground level
2.29 m x 3.33 m
Den
Ground level
3.66 m x 2.16 m
Parking Spaces
Name
Spaces
Attached Garage
Garage
Land
Total Size
40 x 109 FT | under 1/2 acre
Amenities
Golf Nearby, Park, Schools
Sewer
Sanitary sewer
Size of Irregular Land
40 x 109 FT
Terms of Use
Please review and agree to the following terms of use to access the listing content:
REALTOR®, REALTORS®, and the REALTOR® logo are certification marks that are owned by REALTOR® Canada Inc. and licensed exclusively to The Canadian Real Estate Association (CREA). These certification marks identify real estate professionals who are members of CREA and who must abide by CREA's By-Laws, Rules, and the REALTOR® Code. The MLS® trademark and the MLS® logo are owned by CREA and identify the quality of services provided by real estate professionals who are members of CREA;
The information contained on this site is based in whole or in part on information that is provided by members of CREA, who are responsible for its accuracy. CREA reproduces and distributes this information as a service for its members and assumes no responsibility for its accuracy;
This website is operated by a brokerage or salesperson who is a member of CREA;
The listing content on this website is protected by copyright and other laws, and is intended solely for the private, non-commercial use by individuals. Any other reproduction, distribution or use of the content, in whole or in part, is specifically forbidden. The prohibited uses include commercial use, "screen scraping", "database scraping", and any other activity intended to collect, store, reorganize or manipulate data on the pages produced by or displayed on this website.
The information contained on this site is based in whole or in part on information that is provided under copyright by the Toronto Regional Real Estate Board (TRREB) or by members of The Canadian Real Estate Association (CREA), who are responsible for its accuracy. TRREB and CREA reproduce and distribute this information as a service for their members and assume no responsibility for its accuracy. All information displayed is believed to be accurate but is not guaranteed and should be independently verified. No warranties or representations of any kind are made with respect to the accuracy of such information. The information provided herein must only be used by consumers that have a bona fide interest in the purchase, sale, or lease of real estate and may not be used for any commercial purpose or any other purpose.