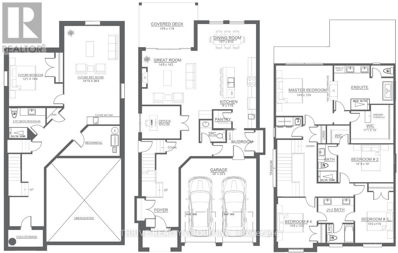
Introducing The Elm in Hidden Hills. An exceptional residence spanning 2,707 square feet. The central living area features a large great room, ideal for both entertaining and relaxation. The kitchen is designed with generous counter space, a central island, and high-end finishes.The Elm offers four bedrooms, each with abundant closet space and natural light. The primary suite is complete with a large, luxurious 5-piece ensuite bathroom. Three additional spacious bedrooms ensure plenty of room for everyone. With 3.5 bathrooms, this home is designed for maximum convenience. The upper floor also includes a well-placed laundry room. The full basement comes with rough-ins, giving you the opportunity to create additional living areas to suit your needs. A two-car garage provides ample parking and storage, along with easy access to the home. **Purchase price includes proposed 2026 HST rebates** More floorplan options available! (id:47421)
Interested in obtaining the full price history for this property? Contact us!Contact us! Our real estate professionals would be happy to provide a complete listing history with historical sold prices and dates.
Detailed Information
Bedrooms
4
Bathrooms
4
Lot
40 x 111.75 ft
Features
Sump Pump
Listing Contract Date
2025-04-22
Location Description
Cross Streets: Aurum. ** Directions: Head west on Oxford - past Westdel Bourne, to Aurum, onto Virtue Drive.
Ownership Type
Freehold
# of Parking Spaces
4
Property Type
Single Family
Transaction Type
For sale
Building
Age
New building
Appliances
Water Heater
Basement Development
Unfinished
Basement Type
Full (Unfinished)
Construction Status
Insulation upgraded
Construction Style (Attachment)
Detached
Cooling Type
Central air conditioning, Ventilation system
Exterior Finish
Brick, Stucco
Fireplace Present
Yes
Foundation Type
Poured Concrete
# of Half Bathrooms
1
Heating Fuel
Natural gas
Heating Type
Forced air
Stories Total
2
Type
House
Utility Water
Municipal water
Parking Spaces
Name
Spaces
Attached Garage
Garage
Utilities
Type
Description
Cable
Available
Electricity
Available
Sewer
Available
Land
Total Size
40 x 111.8 FT
Sewer
Sanitary sewer
Size of Irregular Land
40 x 111.8 FT
Terms of Use
Please review and agree to the following terms of use to access the listing content:
REALTOR®, REALTORS®, and the REALTOR® logo are certification marks that are owned by REALTOR® Canada Inc. and licensed exclusively to The Canadian Real Estate Association (CREA). These certification marks identify real estate professionals who are members of CREA and who must abide by CREA's By-Laws, Rules, and the REALTOR® Code. The MLS® trademark and the MLS® logo are owned by CREA and identify the quality of services provided by real estate professionals who are members of CREA;
The information contained on this site is based in whole or in part on information that is provided by members of CREA, who are responsible for its accuracy. CREA reproduces and distributes this information as a service for its members and assumes no responsibility for its accuracy;
This website is operated by a brokerage or salesperson who is a member of CREA;
The listing content on this website is protected by copyright and other laws, and is intended solely for the private, non-commercial use by individuals. Any other reproduction, distribution or use of the content, in whole or in part, is specifically forbidden. The prohibited uses include commercial use, "screen scraping", "database scraping", and any other activity intended to collect, store, reorganize or manipulate data on the pages produced by or displayed on this website.
The information contained on this site is based in whole or in part on information that is provided under copyright by the Toronto Regional Real Estate Board (TRREB) or by members of The Canadian Real Estate Association (CREA), who are responsible for its accuracy. TRREB and CREA reproduce and distribute this information as a service for their members and assume no responsibility for its accuracy. All information displayed is believed to be accurate but is not guaranteed and should be independently verified. No warranties or representations of any kind are made with respect to the accuracy of such information. The information provided herein must only be used by consumers that have a bona fide interest in the purchase, sale, or lease of real estate and may not be used for any commercial purpose or any other purpose.