$639,000
FOR SALE

Land


Maintenance Fees: $175

422 Old Wonderland Road
London South (South N), ON N6K 3R2

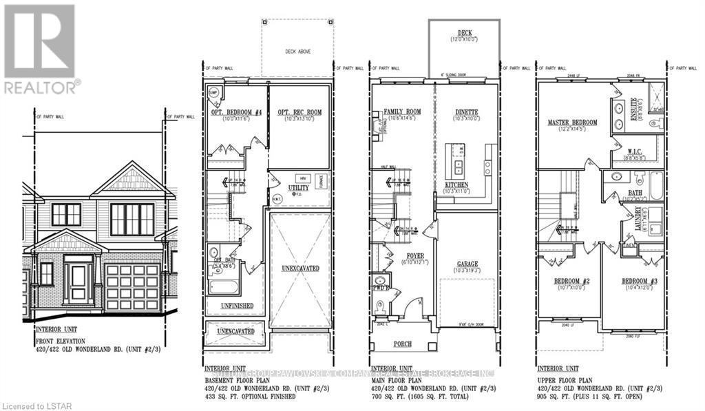
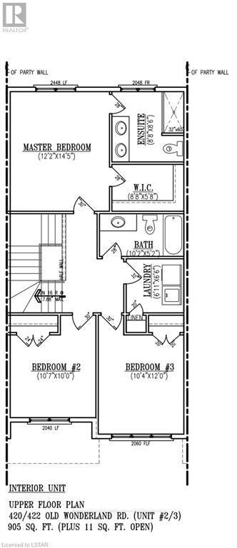
ACT NOW!! NEW Government HST Rebate + EXTRA $10,000 BUILDER BONUS FOR QUALIFYING BUYERS UNIT JUNE 1, 2026 ON FIRM DEAL. Exceptional limited-time savings on a brand-new home in one of Southwest London's most desirable communities. IMMEDIATE POSSESSION AVAILABLE. Experience modern luxury and low-maintenance living in this quality-built vacant land condo tucked in a quiet cul-de-sac in Southwest London. Offering approx. 1585 sq ft, this thoughtfully designed interior unit blends comfort, style, and everyday convenience.The main floor features engineered hardwood, 9 ft ceilings, and an open concept layout ideal for both relaxing and entertaining. The modern vintage kitchen showcases custom cabinetry, quartz countertops, a tile backsplash, and a large island, with all appliances included. A bright dinette with patio doors leads to the back deck, while the spacious family room offers generous natural light.Upstairs, three well-sized bedrooms include a primary suite with a large walk-in closet and a sleek ensuite with a porcelain and ceramic tile shower and quartz vanity. A convenient second-floor laundry room completes this level. Step outside to a 10' x 12' deck with a privacy screen-an inviting retreat for morning coffee or evening downtime. With its thoughtful finishes, open layout, and peaceful setting, this home delivers a lifestyle of ease and elegance just minutes from shopping, parks, schools, and city amenities. A rare chance to move into a brand new home without the wait. (id:47421)
Share
Listed By SUTTON GROUP PAWLOWSKI & COMPANY REAL ESTATE Brokerage INC., EXP REALTY
Data Provided By London and St. Thomas Association of REALTORS®
MLS® Listing Number X12575278
Last Updated May 31, 2026
Property Summary
Property Type Land

More like this:
Maintenance Fees $175
Community South N
Price History

Interested in obtaining the full price history for this property?
Contact us!Contact us! Our real estate professionals would be happy to provide a complete listing history with historical sold prices and dates.

Detailed Information
Bedrooms 3
Bathrooms 3
Amenities Nearby Park, Place of Worship, Public Transit
Community Features Pets Allowed With Restrictions, School Bus
Equipment Water Heater - Tankless, Water Heater
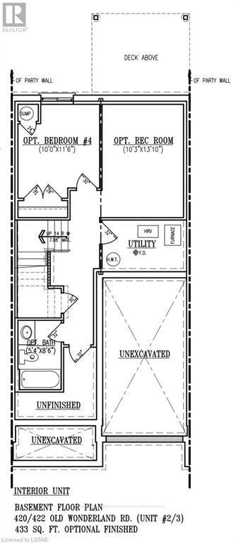
Features Cul-de-sac, Wooded area, Sump Pump
Listing Contract Date 2025-11-25
Location Description Cross Streets: Teeple Terrace. ** Directions: Wonderland Rd, east on Teeple Terrace, north on Old Wonderland Rd.
Maintenance Fee Payment Frequency Monthly
Maintenance Fee Type Common Area Maintenance, Parking
Management Company Arnsby Property Management
Ownership Type Condominium/Strata
# of Parking Spaces 2
Property Type Vacant Land
Rental Equipment Water Heater - Tankless, Water Heater
Structures Deck
Transaction Type For sale
Zoning Description R5-7
Building
Age New building
Amenities Visitor Parking
Appliances Garage door opener remote(s), Dishwasher, Dryer, Hood Fan, Stove, Washer, Refrigerator
Basement Development Unfinished
Basement Type Full (Unfinished)
Cooling Type Central air conditioning
Exterior Finish Brick, Vinyl siding
Foundation Type Poured Concrete
# of Half Bathrooms 1
Heating Fuel Natural gas
Heating Type Forced air
Stories Total 2
Rooms
Room Level Dimensions Notes
BathroomSecond levelMeasurements not available
Primary BedroomSecond level4.42 m x 3.66 m
Bedroom 2Second level3.05 m x 3.17 m
Bedroom 3Second level3.66 m x 3.17 m
Laundry roomSecond level2.01 m x 1.86 m
BathroomSecond levelMeasurements not available
FoyerMain level3.69 m x 1.86 m
KitchenMain level3.35 m x 3.14 m
Eating areaMain level3.05 m x 3.14 m
Family roomMain level4.75 m x 3.17 m
BathroomMain levelMeasurements not available
Parking Spaces
Name Spaces
Attached Garage
Garage
Land
Total Size .
Amenities Park, Place of Worship, Public Transit
Size of Irregular Land .
Open Houses
Date & Time Comments
31/05/2026 2:00 PM - 4:00 PM
06/06/2026 2:00 PM - 4:00 PM
07/06/2026 2:00 PM - 4:00 PM
13/06/2026 2:00 PM - 4:00 PM
14/06/2026 2:00 PM - 4:00 PM
20/06/2026 2:00 PM - 4:00 PM
21/06/2026 2:00 PM - 4:00 PM

The information contained on this site is based in whole or in part on information that is provided under copyright by the Toronto Regional Real Estate Board (TRREB) or by members of The Canadian Real Estate Association (CREA), who are responsible for its accuracy. TRREB and CREA reproduce and distribute this information as a service for their members and assume no responsibility for its accuracy. All information displayed is believed to be accurate but is not guaranteed and should be independently verified. No warranties or representations of any kind are made with respect to the accuracy of such information.
The information provided herein must only be used by consumers that have a bona fide interest in the purchase, sale, or lease of real estate and may not be used for any commercial purpose or any other purpose.

FREE ESTIMATES ARE COMING

Reserve Your Spot To Be Notified
or

Coming soon to select cities
in North America

(We'll never share your details)