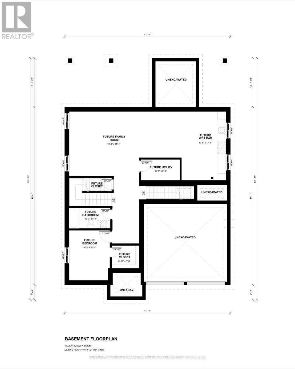
Bakervilla is a picturesque, tree-lined street filled with beautiful homes. Go for a walk and you will instantly feel the charm & sense of community that make this street special. Welcome to 2403 Bakervilla, a premium building lot waiting for your dream home. "TO BE BUILT" Graystone Homes is proud to offer this thoughtfully designed, approximately 2,825 sq. ft. masterpiece allowing you to personalize both the exterior & interior finishes to your taste. Outside, you'll be captivated by the soaring roof peaks & stunning stone-&-stucco façade that will be a showstopper on the street. Inside, an impressive foyer with a spacious 36 door leading to a front office featuring 18 vaulted ceilings perfect for working from home. Open-concept layout is ideal for modern family living. The grand great room with detailed ceiling and decorative buttresses flows seamlessly into the expansive kitchen. A rear-positioned dining area provides direct access to a 21x12 covered patio & a separate covered BBQ deck, both enjoying sun-filled southwest-facing windows. Designed with families in mind, this home includes a 6x6 walk-in pantry, a practical mudroom, & a side garage door that aligns with a secondary staircase ideal for creating a future basement suite. Upstairs, enjoy 9 ceilings throughout. Bedroom 3 includes its own private ensuite and walk-in closet. Bedrooms 2 & 4 also have walk-in closets & share a Jack & Jill bathroom with a separate water closet. The primary bedroom is a true retreat, with raised ceilings, a spacious walk-in closet, & a luxurious ensuite featuring a tiled shower and a freestanding soaker tub. A second-floor laundry room with a sink adds extra convenience. The basement offers endless potential to create a suite with separate entry or a fantastic family/games room with a full bath & 5th bedroom. The stunning curb appeal, thoughtful floor plan, & the quality craftsmanship of Graystone Homes, this is a one-of-a-kind opportunity for one lucky family. (id:47421)
Interested in obtaining the full price history for this property? Contact us!Contact us! Our real estate professionals would be happy to provide a complete listing history with historical sold prices and dates.
Detailed Information
Bedrooms
4
Bathrooms
4
Lot
49.17 x 115.08 ft
Equipment
Water Heater - Gas, Water Heater
Listing Contract Date
2025-08-26
Location Description
Cross Streets: Tripp Drive. ** Directions: Off Tripp.
Ownership Type
Freehold
# of Parking Spaces
4
Property Type
Single Family
Rental Equipment
Water Heater - Gas, Water Heater
Transaction Type
For sale
Building
Age
New building
Amenities
Fireplace(s)
Basement Features
Separate entrance
Basement Type
N/A
Construction Style (Attachment)
Detached
Cooling Type
Central air conditioning
Exterior Finish
Stone, Stucco
Fireplace Present
Yes
Foundation Type
Concrete
# of Half Bathrooms
1
Heating Fuel
Natural gas
Heating Type
Forced air
Stories Total
2
Type
House
Utility Water
Municipal water
Rooms
Room
Level
Dimensions
Notes
Bedroom 3
Second level
3.15 m x 4.27 m
Bedroom 4
Second level
3.2 m x 4.27 m
Laundry room
Second level
2.21 m x 2.13 m
Bathroom
Second level
3 m x 3.73 m
Bathroom
Second level
1.7 m x 2.03 m
Bathroom
Second level
1.63 m x 3.25 m
Bathroom
Second level
2.21 m x 2.44 m
Primary Bedroom
Second level
3.76 m x 5.11 m
Bedroom 2
Second level
3.33 m x 3.48 m
Foyer
Main level
2.18 m x 7.11 m
Office
Main level
3.23 m x 3.73 m
Family room
Main level
6.02 m x 5 m
Kitchen
Main level
3.48 m x 5.61 m
Dining room
Main level
3 m x 3.66 m
Mud room
Main level
1.91 m x 1.83 m
Pantry
Main level
1.91 m x 1.83 m
Bathroom
Main level
1.78 m x 1.83 m
Parking Spaces
Name
Spaces
Attached Garage
Garage
Land
Total Size
49.2 x 115.1 FT
Sewer
Sanitary sewer
Size of Irregular Land
49.2 x 115.1 FT
Terms of Use
Please review and agree to the following terms of use to access the listing content:
REALTOR®, REALTORS®, and the REALTOR® logo are certification marks that are owned by REALTOR® Canada Inc. and licensed exclusively to The Canadian Real Estate Association (CREA). These certification marks identify real estate professionals who are members of CREA and who must abide by CREA's By-Laws, Rules, and the REALTOR® Code. The MLS® trademark and the MLS® logo are owned by CREA and identify the quality of services provided by real estate professionals who are members of CREA;
The information contained on this site is based in whole or in part on information that is provided by members of CREA, who are responsible for its accuracy. CREA reproduces and distributes this information as a service for its members and assumes no responsibility for its accuracy;
This website is operated by a brokerage or salesperson who is a member of CREA;
The listing content on this website is protected by copyright and other laws, and is intended solely for the private, non-commercial use by individuals. Any other reproduction, distribution or use of the content, in whole or in part, is specifically forbidden. The prohibited uses include commercial use, "screen scraping", "database scraping", and any other activity intended to collect, store, reorganize or manipulate data on the pages produced by or displayed on this website.
The information contained on this site is based in whole or in part on information that is provided under copyright by the Toronto Regional Real Estate Board (TRREB) or by members of The Canadian Real Estate Association (CREA), who are responsible for its accuracy. TRREB and CREA reproduce and distribute this information as a service for their members and assume no responsibility for its accuracy. All information displayed is believed to be accurate but is not guaranteed and should be independently verified. No warranties or representations of any kind are made with respect to the accuracy of such information. The information provided herein must only be used by consumers that have a bona fide interest in the purchase, sale, or lease of real estate and may not be used for any commercial purpose or any other purpose.