This remarkable 91.5-acre estate in the Lumby area offers a rare opportunity for multi-generational living or income potential. The custom-built, 4100+ sq. ft. rancher-style main home features 7 spacious bedrooms + a den and 4 bathrooms, including a walk-out lower level with a 2000 sq. ft., 4-bed + den in-law suite—previously used as a care facility. With vaulted ceilings, woodwork, a stunning brick fireplace, and a wraparound deck with southern views, the home blends comfort with craftsmanship. The kitchen includes granite counters, timeless cabinetry and both a nook and formal dining area. Recent upgrades include new flooring (2025) and new furnace (2026). A bright 1-bedroom guest house with wood stove and laundry is perfect for family, guests, or rental income. The detached 23x13 heated gym includes commercial rubber flooring and Bluetooth ceiling speakers. Other features: detached garages, carport, domestic well, solar panels, and Telus fibre optic internet in both homes—ideal for remote work. With gently sloping hillside, and benches of flat south-facing land, the property enjoys full sun and expansive views. Ideal for large families, vacation rentals, or care-based business use, with highway frontage and strong long-term value. (id:47421)
Interested in obtaining the full price history for this property? Contact us!Contact us! Our real estate professionals would be happy to provide a complete listing history with historical sold prices and dates.
Detailed Information
Bedrooms
6
Bathrooms
4
Community Features
Pets Allowed
Features
Central island, Jacuzzi bath-tub, One Balcony
Listing Contract Date
2025-10-21
Municipal ID
005-213-959
Ownership Type
Freehold
# of Parking Spaces
9
Property Type
Single Family
Transaction Type
For sale
Views
Mountain view, Valley view, View (panoramic)
Building
Appliances
Refrigerator, Dishwasher, Dryer, Range - Electric, Microwave, Washer
Architectural Style
Ranch
Basement Type
Full
Constructed Date
1977
Construction Style (Attachment)
Detached
Cooling Type
Central air conditioning, Heat Pump
Exterior Finish
Brick, Other
Fireplace Present
Yes
# of Fireplaces
2
Fireplace Type
Insert
Flooring Type
Carpeted, Ceramic Tile, Hardwood, Laminate
# of Half Bathrooms
1
Heating Fuel
Electric
Heating Type
Forced air, Heat Pump, Other
Roof Material
Other
Roof Style
Unknown
Stories Total
2
Type
House
Utility Water
Well
Rooms
Room
Level
Dimensions
Notes
Partial bathroom
Basement
5'4'' x 7'3''
Full bathroom
Basement
8'5'' x 7'3''
Laundry room
Basement
6'3'' x 7'3''
Storage
Basement
4'8'' x 14'4''
Utility room
Basement
7'1'' x 13'3''
Bedroom
Basement
10'8'' x 9'11''
Bedroom
Basement
12'4'' x 13'3''
Bedroom
Basement
13'3'' x 12'2''
Bedroom
Basement
9'6'' x 13'8''
Storage
Basement
9'3'' x 13'7''
Kitchen
Basement
14'9'' x 30'5''
Family room
Basement
22'9'' x 14'9''
Other
Main level
6'3'' x 5'7''
5pc Ensuite bath
Main level
10'4'' x 8'7''
Full bathroom
Main level
10'4'' x 9'1''
Office
Main level
10'7'' x 10'4''
Bedroom
Main level
15'11'' x 9'7''
Primary Bedroom
Main level
14'10'' x 15'9''
Foyer
Main level
9'9'' x 27'2''
Dining room
Main level
11'11'' x 13'8''
Kitchen
Main level
20'1'' x 18'0''
Living room
Main level
23'11'' x 13'11''
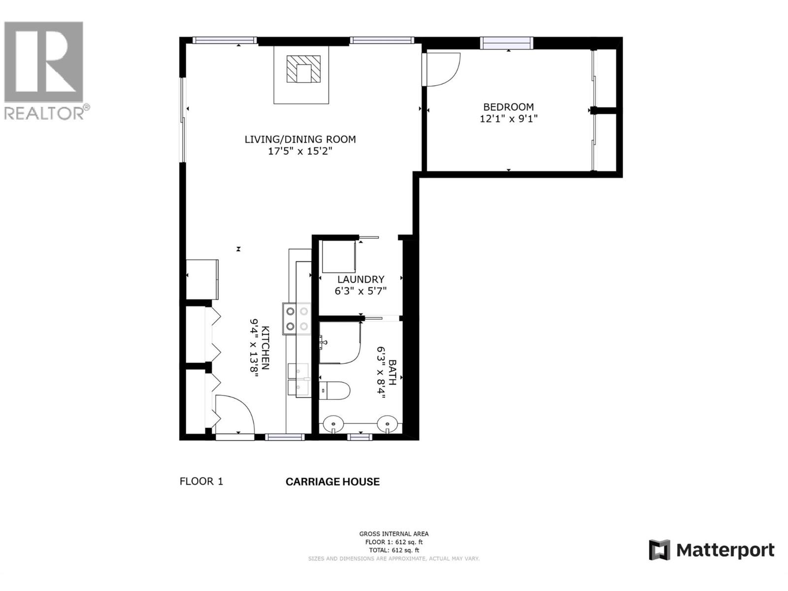
Kitchen
Secondary Dwelling Unit
9'4'' x 13'8''
Living room
Secondary Dwelling Unit
17'5'' x 15'2''
Full bathroom
Secondary Dwelling Unit
6'3'' x 8'4''
Bedroom
Secondary Dwelling Unit
12'1'' x 9'1''
Parking Spaces
Name
Spaces
See Remarks
Additional Parking
Detached Garage
2
Land
Total Size
91.5 acres
Acreage
Yes
Fence Type
Fence
Sewer
Septic tank
Size of Irregular Land
91.5
Terms of Use
Please review and agree to the following terms of use to access the listing content:
REALTOR®, REALTORS®, and the REALTOR® logo are certification marks that are owned by REALTOR® Canada Inc. and licensed exclusively to The Canadian Real Estate Association (CREA). These certification marks identify real estate professionals who are members of CREA and who must abide by CREA's By-Laws, Rules, and the REALTOR® Code. The MLS® trademark and the MLS® logo are owned by CREA and identify the quality of services provided by real estate professionals who are members of CREA;
The information contained on this site is based in whole or in part on information that is provided by members of CREA, who are responsible for its accuracy. CREA reproduces and distributes this information as a service for its members and assumes no responsibility for its accuracy;
This website is operated by a brokerage or salesperson who is a member of CREA;
The listing content on this website is protected by copyright and other laws, and is intended solely for the private, non-commercial use by individuals. Any other reproduction, distribution or use of the content, in whole or in part, is specifically forbidden. The prohibited uses include commercial use, "screen scraping", "database scraping", and any other activity intended to collect, store, reorganize or manipulate data on the pages produced by or displayed on this website.
The information contained on this site is based in whole or in part on information that is provided under copyright by the Toronto Regional Real Estate Board (TRREB) or by members of The Canadian Real Estate Association (CREA), who are responsible for its accuracy. TRREB and CREA reproduce and distribute this information as a service for their members and assume no responsibility for its accuracy. All information displayed is believed to be accurate but is not guaranteed and should be independently verified. No warranties or representations of any kind are made with respect to the accuracy of such information. The information provided herein must only be used by consumers that have a bona fide interest in the purchase, sale, or lease of real estate and may not be used for any commercial purpose or any other purpose.