Welcome home to this lovely rural 3 bedroom home in the quaint village of Lynden. This two story century home is set on a large fenced lot. The open concept main floor is filled with natural light, eat in kitchen, has a cozy fireplace, main floor laundry and views of the expansive yard which backs onto farmland. 3 nice sized bedrooms and a spacious bathroom with a soaker tub. Perfect for those who lovely rural life but conveniently located with walking distance to the community amentities. Loads of updates and a fabulous garage for hobbyists. EV charger, Greenhouse and shed along with a dog house complete this great property. (id:47421)
Interested in obtaining the full price history for this property? Contact us!Contact us! Our real estate professionals would be happy to provide a complete listing history with historical sold prices and dates.
Detailed Information
Bedrooms
3
Bathrooms
2
Lot
70 x 241 ft
Amenities Nearby
Park
Community Features
Community Centre
Equipment
Water Heater
Features
Country residential, Sump Pump
Listing Contract Date
2026-01-21
Ownership Type
Freehold
# of Parking Spaces
8
Property Type
Single Family
Rental Equipment
Water Heater
Structures
Greenhouse, Shed
Transaction Type
For sale
Zoning Description
S1
Building
Appliances
Dishwasher, Microwave Built-in, Window Coverings
Architectural Style
2 Level
Basement Development
Unfinished
Basement Type
Full (Unfinished)
Constructed Date
1871
Construction Style (Attachment)
Detached
Cooling Type
Central air conditioning
Exterior Finish
Vinyl siding
Fireplace Present
Yes
# of Fireplaces
1
Fixture
Ceiling fans
# of Half Bathrooms
1
Heating Fuel
Natural gas
Heating Type
Forced air
Stories Total
2
Type
House
Utility Water
Drilled Well
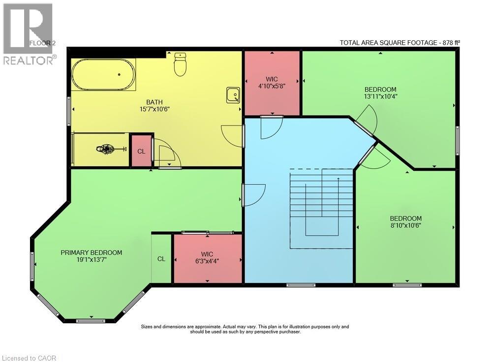
Rooms
Room
Level
Dimensions
Notes
4pc Bathroom
Second level
Measurements not available
Bedroom
Second level
13'11'' x 13'4''
Bedroom
Second level
10'6'' x 8'10''
Primary Bedroom
Second level
19'1'' x 13'7''
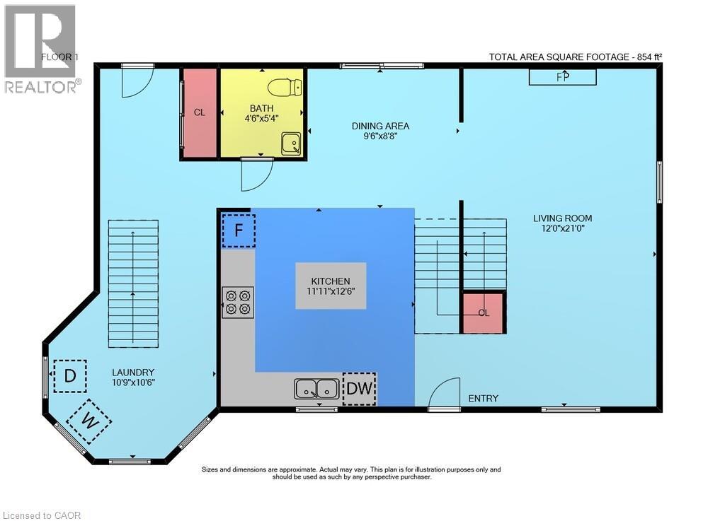
2pc Bathroom
Main level
Measurements not available
Laundry room
Main level
10'9'' x 10'6''
Living room
Main level
21'0'' x 12'0''
Dining room
Main level
9'6'' x 8'8''
Kitchen
Main level
11'11'' x 12'6''
Parking Spaces
Name
Spaces
Detached Garage
Land
Total Size
0.39 acres
Amenities
Park
Sewer
Septic System
Size of Irregular Land
0.39
Terms of Use
Please review and agree to the following terms of use to access the listing content:
REALTOR®, REALTORS®, and the REALTOR® logo are certification marks that are owned by REALTOR® Canada Inc. and licensed exclusively to The Canadian Real Estate Association (CREA). These certification marks identify real estate professionals who are members of CREA and who must abide by CREA's By-Laws, Rules, and the REALTOR® Code. The MLS® trademark and the MLS® logo are owned by CREA and identify the quality of services provided by real estate professionals who are members of CREA;
The information contained on this site is based in whole or in part on information that is provided by members of CREA, who are responsible for its accuracy. CREA reproduces and distributes this information as a service for its members and assumes no responsibility for its accuracy;
This website is operated by a brokerage or salesperson who is a member of CREA;
The listing content on this website is protected by copyright and other laws, and is intended solely for the private, non-commercial use by individuals. Any other reproduction, distribution or use of the content, in whole or in part, is specifically forbidden. The prohibited uses include commercial use, "screen scraping", "database scraping", and any other activity intended to collect, store, reorganize or manipulate data on the pages produced by or displayed on this website.
The information contained on this site is based in whole or in part on information that is provided under copyright by the Toronto Regional Real Estate Board (TRREB) or by members of The Canadian Real Estate Association (CREA), who are responsible for its accuracy. TRREB and CREA reproduce and distribute this information as a service for their members and assume no responsibility for its accuracy. All information displayed is believed to be accurate but is not guaranteed and should be independently verified. No warranties or representations of any kind are made with respect to the accuracy of such information. The information provided herein must only be used by consumers that have a bona fide interest in the purchase, sale, or lease of real estate and may not be used for any commercial purpose or any other purpose.