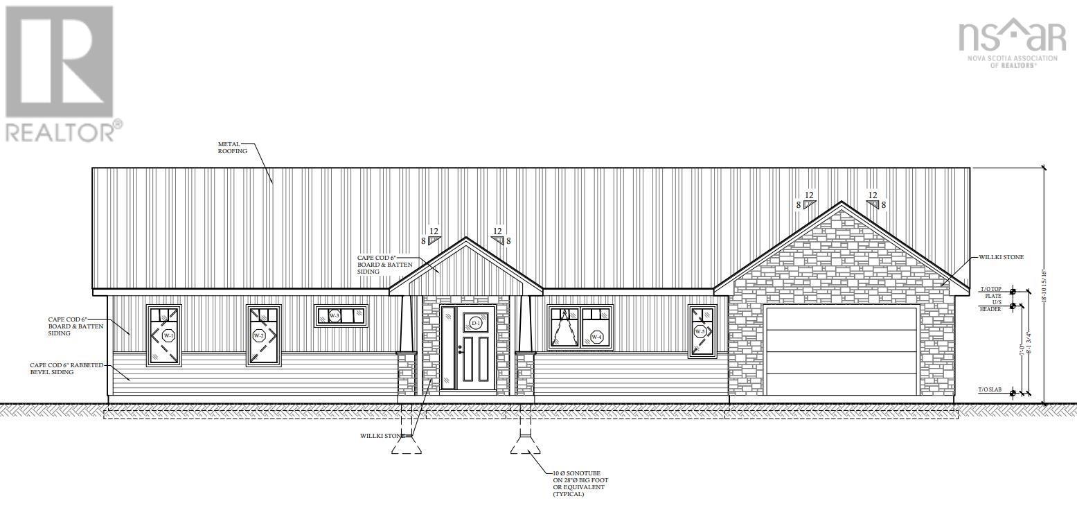
An exceptional opportunity to build your dream home in the newly developed Hawthorne Subdivision in Mahone Bay. This prime location offers stunning views and the perfect balance of natural beauty and a welcoming community atmosphere, all within a short walk to the town centre. This new construction, bungalow-style home features three bedrooms and is designed on a slab-on-grade foundation for convenient, low-maintenance living. At this stage, buyers have the opportunity to customize interior finishes, allowing you to tailor the home to your personal style. Residents will enjoy easy access to nearby tennis courts, walking trails, and the Mahone Bay Pool, making this an ideal location for an active lifestyle. This lot is considered one of the most desirable in the subdivision, offering a prime position with favourable sloping terrain that enhances both views and curb appeal. A newly dug well has already been installed, adding further value and convenience. Secure your place in this sought-after subdivision and enjoy the best of Mahone Bay living. Contact your REALTOR® today for further details. (id:47421)
Interested in obtaining the full price history for this property? Contact us!Contact us! Our real estate professionals would be happy to provide a complete listing history with historical sold prices and dates.
Detailed Information
Bedrooms
3
Bathrooms
2
Listing Contract Date
2026-01-26
Location Description
Main Street to Clairmont to Kinburn to Hawthorne
Municipal ID
60722543
Ownership Type
Freehold
Property Type
Single Family
Transaction Type
For sale
Building
Architectural Style
Bungalow
Basement Type
None
Construction Style (Attachment)
Detached
Flooring Type
Laminate
Foundation Type
Concrete Slab
Stories Total
1
Total Finished Area
1277 sqft
Type
House
Utility Water
Drilled Well
Parking Spaces
Name
Spaces
Garage
Attached Garage
Land
Total Size
0.4311 acres
Sewer
Municipal sewage system
Size of Irregular Land
0.4311
Terms of Use
Please review and agree to the following terms of use to access the listing content:
REALTOR®, REALTORS®, and the REALTOR® logo are certification marks that are owned by REALTOR® Canada Inc. and licensed exclusively to The Canadian Real Estate Association (CREA). These certification marks identify real estate professionals who are members of CREA and who must abide by CREA's By-Laws, Rules, and the REALTOR® Code. The MLS® trademark and the MLS® logo are owned by CREA and identify the quality of services provided by real estate professionals who are members of CREA;
The information contained on this site is based in whole or in part on information that is provided by members of CREA, who are responsible for its accuracy. CREA reproduces and distributes this information as a service for its members and assumes no responsibility for its accuracy;
This website is operated by a brokerage or salesperson who is a member of CREA;
The listing content on this website is protected by copyright and other laws, and is intended solely for the private, non-commercial use by individuals. Any other reproduction, distribution or use of the content, in whole or in part, is specifically forbidden. The prohibited uses include commercial use, "screen scraping", "database scraping", and any other activity intended to collect, store, reorganize or manipulate data on the pages produced by or displayed on this website.
The information contained on this site is based in whole or in part on information that is provided under copyright by the Toronto Regional Real Estate Board (TRREB) or by members of The Canadian Real Estate Association (CREA), who are responsible for its accuracy. TRREB and CREA reproduce and distribute this information as a service for their members and assume no responsibility for its accuracy. All information displayed is believed to be accurate but is not guaranteed and should be independently verified. No warranties or representations of any kind are made with respect to the accuracy of such information. The information provided herein must only be used by consumers that have a bona fide interest in the purchase, sale, or lease of real estate and may not be used for any commercial purpose or any other purpose.