Commercial/Retail
Lot: 92.1 x 55.8 m2026 Taxes: $19
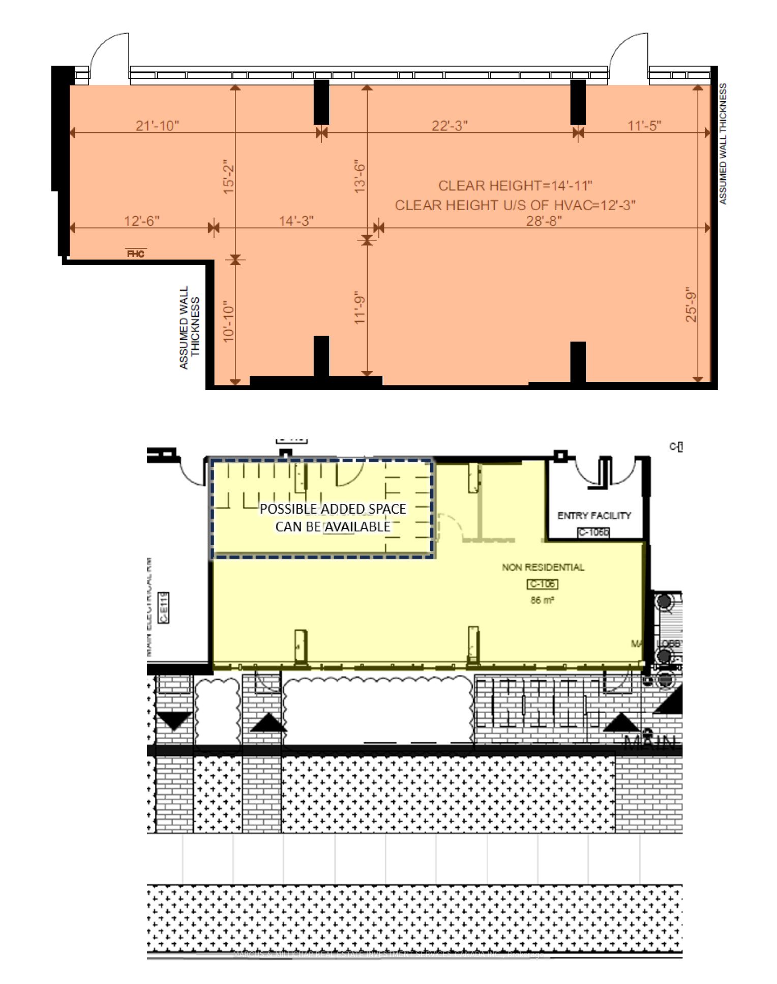
705 Mikinak Rd
Manor Park - Cardinal Glen And Area, ON
K1K 5B7 | 3104 - CFB Rockcliffe and Area | Ottawa
| Listed By | MARCUS & MILLICHAP REAL ESTATE INVESTMENT SERVICES CANADA INC. |
|---|---|
| Data Provided By | Toronto Regional Real Estate Board |
| MLS® Listing Number | X11823803 |
| Last Updated | Apr 29, 2026 |
| Property Type |
Commercial/Retail
More like this: |
|---|---|
| Taxes (2026) | $19 |
| Directions/Cross Streets | Mikinak Rd & Hemlock Rd |
| Neighbourhood | 3104 - CFB Rockcliffe and Area |
| Area | Ottawa |
Interested in obtaining the full price history for this property?
Contact us!Contact us! Our real estate professionals would be happy to provide a complete listing history with historical sold prices and dates.
| Lot | 92.1 x 55.8 m |
|---|---|
| Air Conditioning | Yes |
| Garage Type | None |
| Heat Type | Gas Forced Air Open |
The information contained on this site is based in whole or in part on information that is provided under copyright by the Toronto Regional Real Estate Board (TRREB) or by members of The Canadian Real Estate Association (CREA), who are responsible for its accuracy. TRREB and CREA reproduce and distribute this information as a service for their members and assume no responsibility for its accuracy. All information displayed is believed to be accurate but is not guaranteed and should be independently verified. No warranties or representations of any kind are made with respect to the accuracy of such information.
The information provided herein must only be used by consumers that have a bona fide interest in the purchase, sale, or lease of real estate and may not be used for any commercial purpose or any other purpose.
FREE ESTIMATES ARE COMING
Reserve Your Spot To Be Notified
Coming soon to select cities
in North America
(We'll never share your details)





