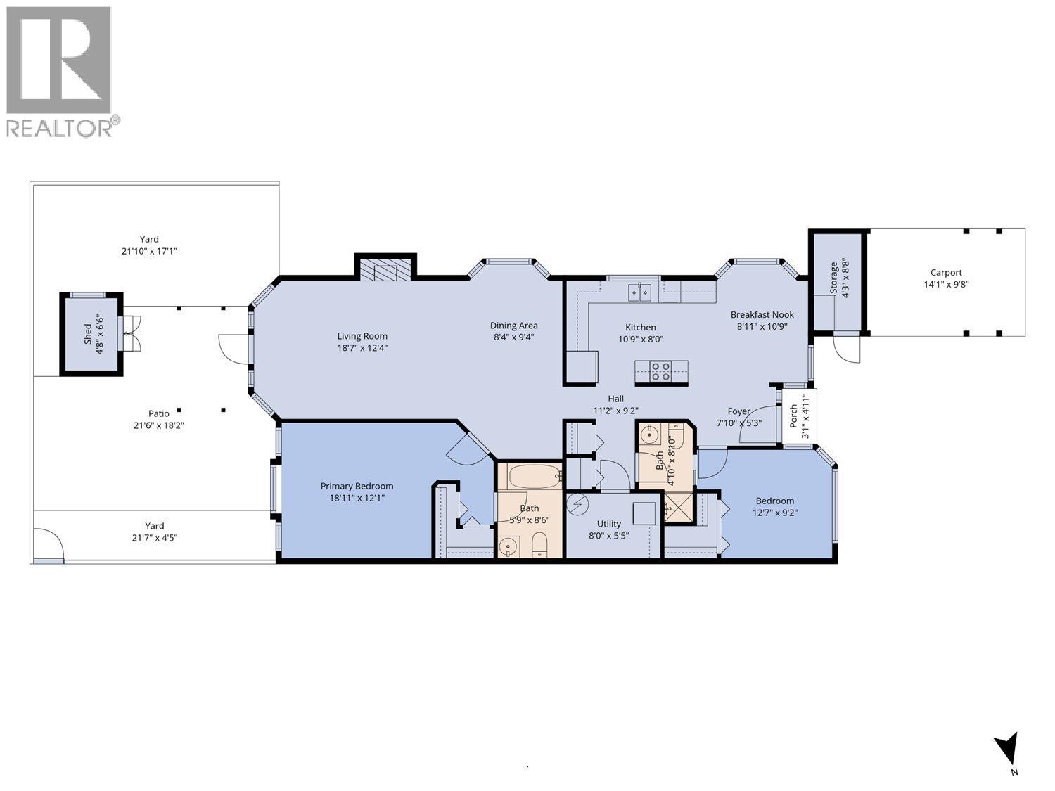
Welcome to The Maples-Where Serenity Meets Convenience! This beautifully updated 2 bed, 2 bath rancher-style townhome with loft in the heart of West Maple Ridge blends comfort, charm & lifestyle. Tucked in a quiet, park-like settng, you'll love the private fully fenced backyard with covered patio-perfect for year-round relax. Plus, enjoy the convenience of a new cedar storage shed-ideal for tools, bikes or décor. Inside: new flring, fresh paint & modern tones. Spacious living room with cozy gas fireplace flows to sunny eat-in kitchen-great for daily comfort or entertainment. Primary bed with 4-pc ensuite; 2nd bed near updated 3-pc bath. Large windows flood the home with light. Steps to shops, parks, rec, transit, hospital & more. Lifestyle upgd-rarely avail & move-in ready! 1 person has to be over55 (id:47421)
Interested in obtaining the full price history for this property? Contact us!Contact us! Our real estate professionals would be happy to provide a complete listing history with historical sold prices and dates.
Detailed Information
Bedrooms
2
Bathrooms
2
Amenities Nearby
Shopping
Community Features
Adult Oriented, Pets Allowed, Pets Allowed With Restrictions
Features
Central location, Private setting
Maintenance Fee Payment Frequency
Monthly
Municipal ID
016-393-643
Ownership Type
Strata
# of Parking Spaces
2
Property Type
Single Family
Storage
Storage Shed
Transaction Type
For sale
Building
Appliances
All, Central Vacuum
Architectural Style
Bungalow
Constructed Date
1992
Fire Protection
Security system, Sprinkler System-Fire
Fixture
Drapes/Window coverings
Heating Type
Radiant heat
Stories Total
1
Type
Row / Townhouse
Parking Spaces
Name
Spaces
Carport
Land
Total Size
0 square feet
Amenities
Shopping
Terms of Use
Please review and agree to the following terms of use to access the listing content:
REALTOR®, REALTORS®, and the REALTOR® logo are certification marks that are owned by REALTOR® Canada Inc. and licensed exclusively to The Canadian Real Estate Association (CREA). These certification marks identify real estate professionals who are members of CREA and who must abide by CREA's By-Laws, Rules, and the REALTOR® Code. The MLS® trademark and the MLS® logo are owned by CREA and identify the quality of services provided by real estate professionals who are members of CREA;
The information contained on this site is based in whole or in part on information that is provided by members of CREA, who are responsible for its accuracy. CREA reproduces and distributes this information as a service for its members and assumes no responsibility for its accuracy;
This website is operated by a brokerage or salesperson who is a member of CREA;
The listing content on this website is protected by copyright and other laws, and is intended solely for the private, non-commercial use by individuals. Any other reproduction, distribution or use of the content, in whole or in part, is specifically forbidden. The prohibited uses include commercial use, "screen scraping", "database scraping", and any other activity intended to collect, store, reorganize or manipulate data on the pages produced by or displayed on this website.
The information contained on this site is based in whole or in part on information that is provided under copyright by the Toronto Regional Real Estate Board (TRREB) or by members of The Canadian Real Estate Association (CREA), who are responsible for its accuracy. TRREB and CREA reproduce and distribute this information as a service for their members and assume no responsibility for its accuracy. All information displayed is believed to be accurate but is not guaranteed and should be independently verified. No warranties or representations of any kind are made with respect to the accuracy of such information. The information provided herein must only be used by consumers that have a bona fide interest in the purchase, sale, or lease of real estate and may not be used for any commercial purpose or any other purpose.