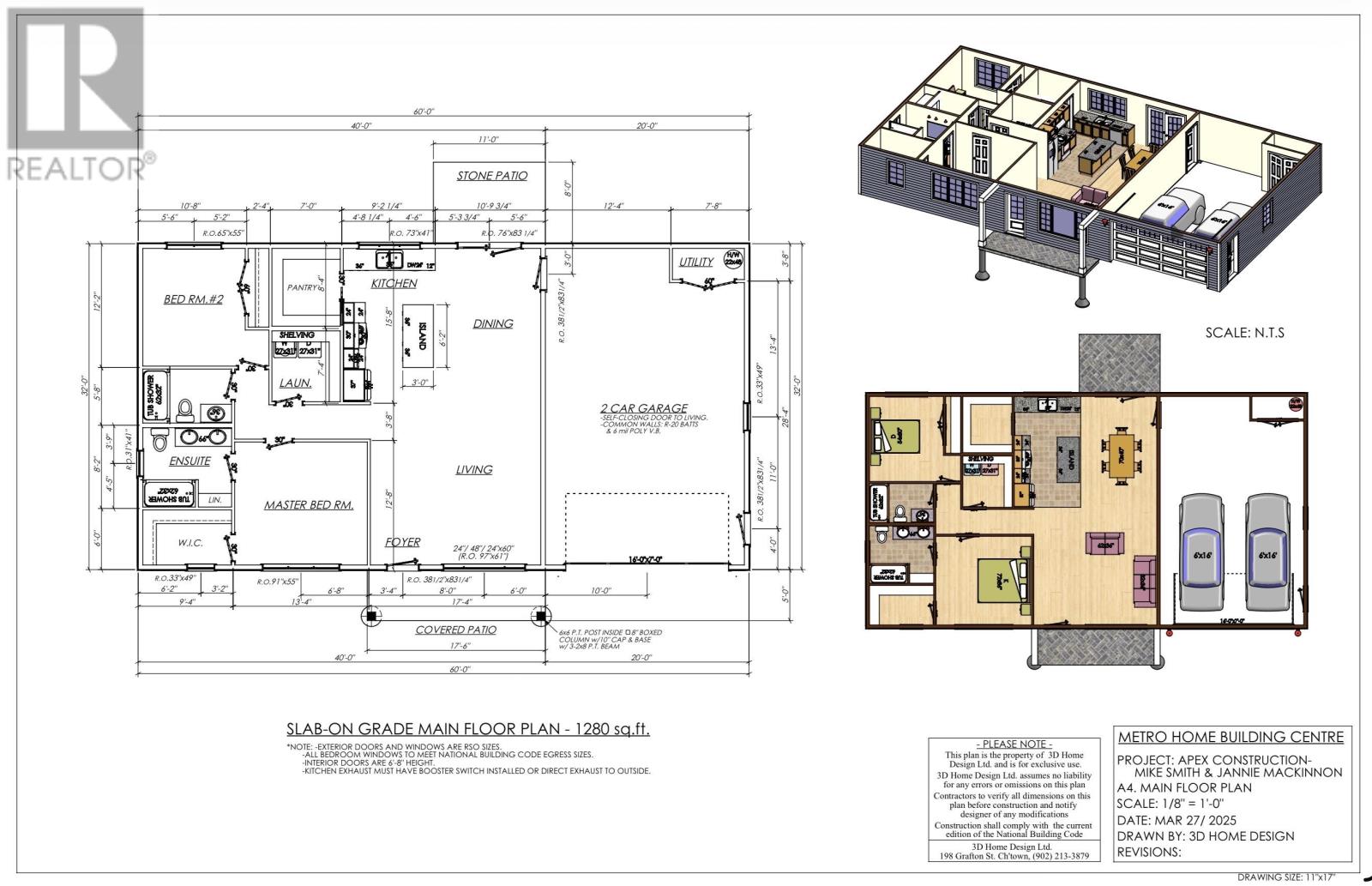
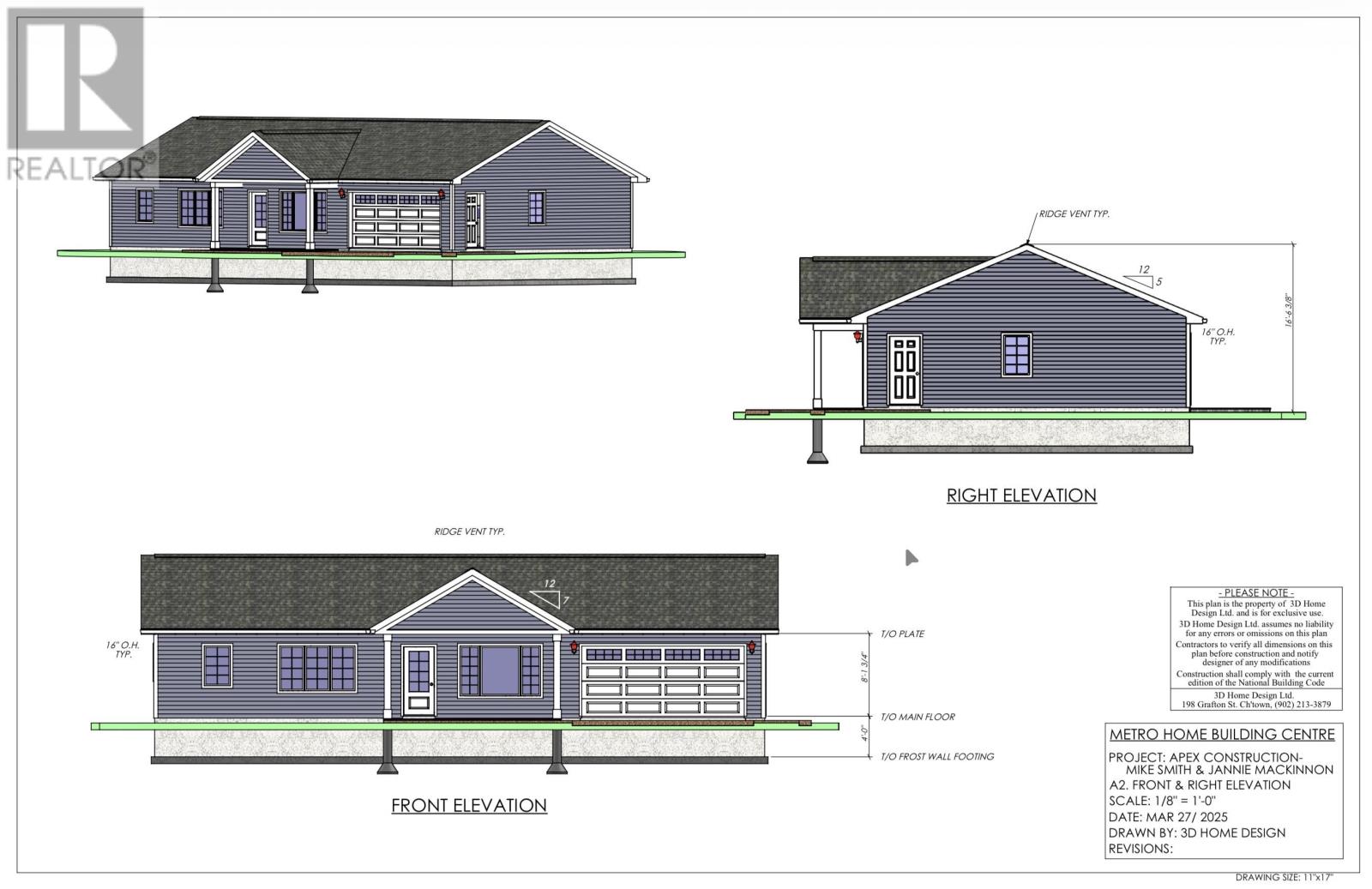
To-Be-Built! This 1.10-acre parcel with panoramic views of St. Peter?s Bay , this to-be-constructed 1,280 sq ft residence offers a rare opportunity for complete personalization. Featuring 2 bedrooms, 2 bathrooms, an attached two-car garage, and a bright open-concept design, the home will be built to modern standards with energy-efficient systems throughout. Construction has not yet commenced, allowing the buyer to collaborate directly with the builder to select all interior and exterior finishes, flooring, cabinetry, fixtures, appliances, paint colours, etc. Protected by the full 10-year Atlantic New Home Warrant plus located minutes from Morell and St. Peter?s, and approximately 35?40 minutes from Charlottetown. *The Seller is also a Realtor. (id:47421)
Interested in obtaining the full price history for this property? Contact us!Contact us! Our real estate professionals would be happy to provide a complete listing history with historical sold prices and dates.
Detailed Information
Bedrooms
2
Bathrooms
2
Features
Partially cleared
Listing Contract Date
2025-11-28
Municipal ID
780569
Ownership Type
Freehold
Property Type
Single Family
Transaction Type
For sale
Views
View of water
Building
Appliances
None
Basement Type
None
Constructed Date
2025
Construction Style (Attachment)
Detached
Exterior Finish
Vinyl
Flooring Type
Vinyl
Foundation Type
Concrete Slab
Heating Type
Baseboard heaters, Wall Mounted Heat Pump
Total Finished Area
1280 sqft
Type
House
Utility Water
None
Rooms
Room
Level
Dimensions
Notes
Kitchen
Main level
15’8” x 17’ 4”
Living room
Main level
12’ 8” x 17’ 4”
Primary Bedroom
Main level
12’ 8” x13’ 4”
Ensuite (# pieces 2-6)
Main level
8’ 2” x 9’ 4”
Bath (# pieces 1-6)
Main level
5’ 8” x 9’ 4”
Bedroom
Main level
12’ 2” x 10’ 8”
Laundry room
Main level
7’ 0” x 7’ 4”
Parking Spaces
Name
Spaces
Attached Garage
Land
Total Size
1 - 3 acres
Acreage
Yes
Sewer
No sewage system
Terms of Use
Please review and agree to the following terms of use to access the listing content:
REALTOR®, REALTORS®, and the REALTOR® logo are certification marks that are owned by REALTOR® Canada Inc. and licensed exclusively to The Canadian Real Estate Association (CREA). These certification marks identify real estate professionals who are members of CREA and who must abide by CREA's By-Laws, Rules, and the REALTOR® Code. The MLS® trademark and the MLS® logo are owned by CREA and identify the quality of services provided by real estate professionals who are members of CREA;
The information contained on this site is based in whole or in part on information that is provided by members of CREA, who are responsible for its accuracy. CREA reproduces and distributes this information as a service for its members and assumes no responsibility for its accuracy;
This website is operated by a brokerage or salesperson who is a member of CREA;
The listing content on this website is protected by copyright and other laws, and is intended solely for the private, non-commercial use by individuals. Any other reproduction, distribution or use of the content, in whole or in part, is specifically forbidden. The prohibited uses include commercial use, "screen scraping", "database scraping", and any other activity intended to collect, store, reorganize or manipulate data on the pages produced by or displayed on this website.
The information contained on this site is based in whole or in part on information that is provided under copyright by the Toronto Regional Real Estate Board (TRREB) or by members of The Canadian Real Estate Association (CREA), who are responsible for its accuracy. TRREB and CREA reproduce and distribute this information as a service for their members and assume no responsibility for its accuracy. All information displayed is believed to be accurate but is not guaranteed and should be independently verified. No warranties or representations of any kind are made with respect to the accuracy of such information. The information provided herein must only be used by consumers that have a bona fide interest in the purchase, sale, or lease of real estate and may not be used for any commercial purpose or any other purpose.