*To-Be-Built?This to-be-constructed 1,334 sq ft, 3-bedroom, 2-bathroom home is a rare chance to customize everything before a single shovel hits the ground. On a spacious 1.10-acre lot with gorgeous views over St. Peter?s Bay. Because construction has not yet begun, you?ll work hand-in-hand with the builder/contractor (essentially having your own dedicated contractor at your disposal) to choose finishes, flooring, cabinetry, fixtures, paint colours, appliances, etc. Featuring a bright open-concept design, modern styling, and energy-efficient construction, this home is perfect for families, retirees, or anyone seeking a personalized coastal retreat. Every detail will be brand new and backed by the full 10-year Atlantic New Home Warranty for total peace of mind. All while remaining within easy reach of St. Peter?s, Morell, and Charlottetown (just 35-40 minutes away). ?Secure this prime view lot now and construction can begin as soon as you?re ready! * The Seller is also a Realtor. (id:47421)
Interested in obtaining the full price history for this property? Contact us!Contact us! Our real estate professionals would be happy to provide a complete listing history with historical sold prices and dates.
Detailed Information
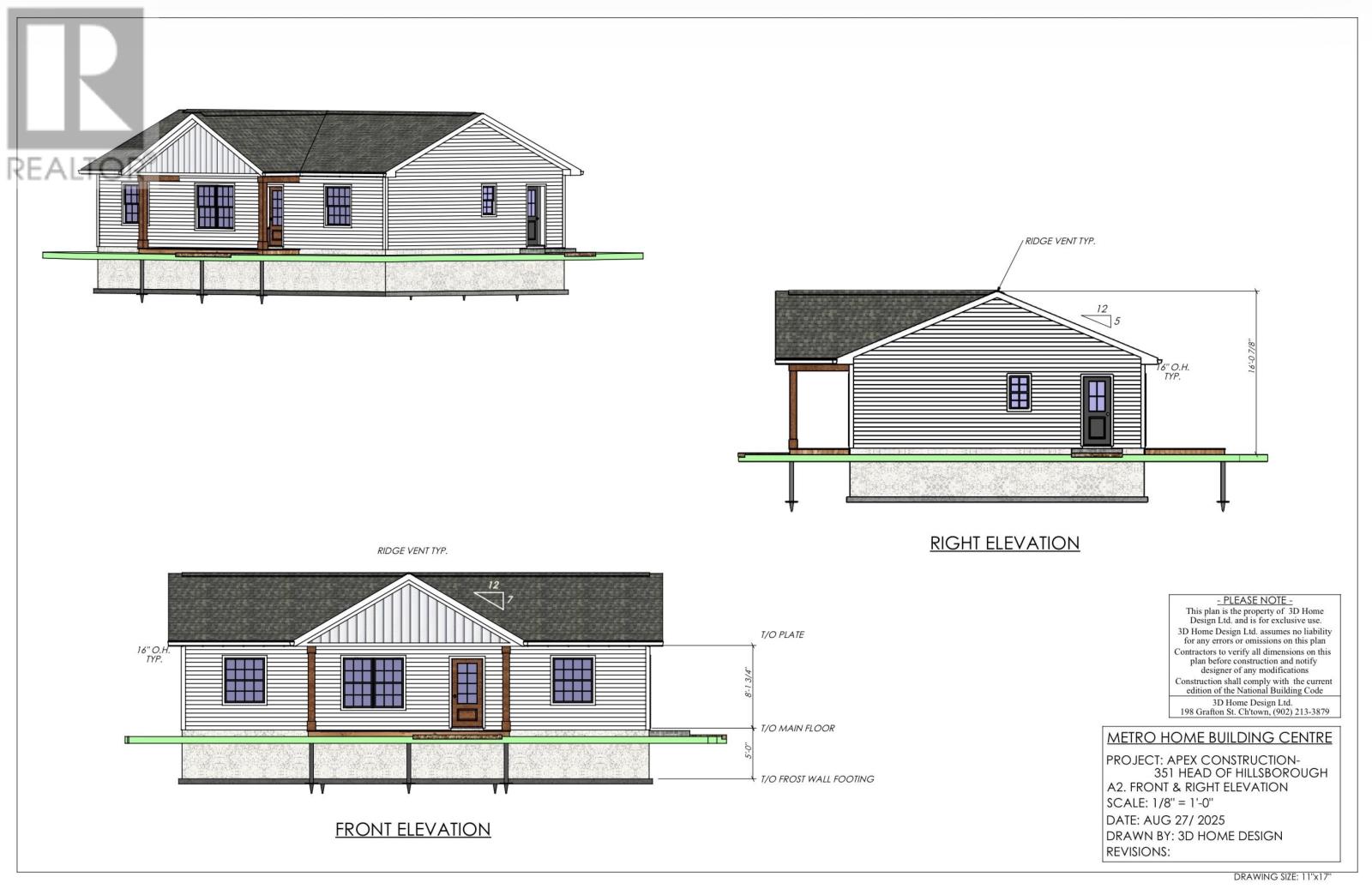
Bedrooms
3
Bathrooms
2
Listing Contract Date
2025-11-27
Municipal ID
780569
Ownership Type
Freehold
Property Type
Single Family
Transaction Type
For sale
Views
View of water
Building
Appliances
None
Basement Type
None
Construction Style (Attachment)
Detached
Exterior Finish
Vinyl
Flooring Type
Vinyl
Foundation Type
Concrete Slab
Heating Type
Baseboard heaters, Wall Mounted Heat Pump
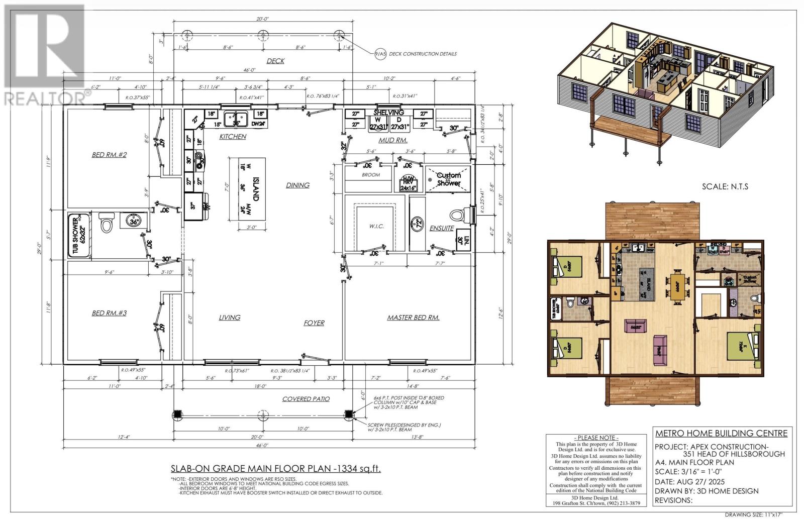
Total Finished Area
1334 sqft
Type
House
Utility Water
None
Rooms
Room
Level
Dimensions
Notes
Kitchen
Main level
17’ 8” x 13’ 2”
Great room
Main level
17’ 8” x 15’ 10”
Ensuite (# pieces 2-6)
Main level
8’ x 9’ 10”
Bath (# pieces 1-6)
Main level
5’ x 7’
Primary Bedroom
Main level
14’ x 12’ 6”
Bedroom
Main level
12’ x 11’ 9”
Bedroom
Main level
12’ x 11’ 9”
Laundry room
Main level
14’ x 6’ 8”
Land
Total Size
1.1 acres
Acreage
Yes
Sewer
No sewage system
Size of Irregular Land
1.1
Terms of Use
Please review and agree to the following terms of use to access the listing content:
REALTOR®, REALTORS®, and the REALTOR® logo are certification marks that are owned by REALTOR® Canada Inc. and licensed exclusively to The Canadian Real Estate Association (CREA). These certification marks identify real estate professionals who are members of CREA and who must abide by CREA's By-Laws, Rules, and the REALTOR® Code. The MLS® trademark and the MLS® logo are owned by CREA and identify the quality of services provided by real estate professionals who are members of CREA;
The information contained on this site is based in whole or in part on information that is provided by members of CREA, who are responsible for its accuracy. CREA reproduces and distributes this information as a service for its members and assumes no responsibility for its accuracy;
This website is operated by a brokerage or salesperson who is a member of CREA;
The listing content on this website is protected by copyright and other laws, and is intended solely for the private, non-commercial use by individuals. Any other reproduction, distribution or use of the content, in whole or in part, is specifically forbidden. The prohibited uses include commercial use, "screen scraping", "database scraping", and any other activity intended to collect, store, reorganize or manipulate data on the pages produced by or displayed on this website.
The information contained on this site is based in whole or in part on information that is provided under copyright by the Toronto Regional Real Estate Board (TRREB) or by members of The Canadian Real Estate Association (CREA), who are responsible for its accuracy. TRREB and CREA reproduce and distribute this information as a service for their members and assume no responsibility for its accuracy. All information displayed is believed to be accurate but is not guaranteed and should be independently verified. No warranties or representations of any kind are made with respect to the accuracy of such information. The information provided herein must only be used by consumers that have a bona fide interest in the purchase, sale, or lease of real estate and may not be used for any commercial purpose or any other purpose.